|
|
|
| Larry Stein Oklahoma County Assessor (405) 713-1200 - Public Access System |
|
|
|
|
|
|
| Real Property Display - Screen Produced 4/3/2026 11:01:14 PM | ||||
|---|---|---|---|---|
| Account: R109672100 | Type: Residential | Location: |
2225 NW 115TH ST |
|
| Building Name/Occupant: |
|
OKLAHOMA CITY |
||
| Owner Name 1: | LEMIEUX RACHEL K |
Parcel PIN#: |
3674-10-967-2100 |
|
| Owner Name 2: | 1/4 section #: |
3674 |
||
| Owner Name 3: | Parent Acct: |
|
||
| Billing Address: | 2225 NW 115TH ST | Tax District: |
|
|
| City, State, Zip | OKLAHOMA CITY, OK 73120-7712 | School System: |
Oklahoma City #89 |
|
|
Country: (If noted) |
Land Size: |
0.2410 Acres |
||
|
Land Value: 42,000 |
|
|||
|
Sect 19-T13N-R3W Qtr SE |
PENN PARK
Block
006
Lot
002
|
|||
| Full Legal Description: PENN PARK 006 002 |
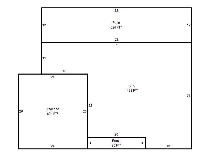
| Photo & Sketch (if available) | Comp Sales (ordered by relevancy) |
|
||||||||||||||||||
|
||||||||||||||||||||
| Value History (*The County Treasurer 405-713-1300 posts & collects actual tax amounts. Contact information HERE) | |||||||||||||
|---|---|---|---|---|---|---|---|---|---|---|---|---|---|
| Year | Market Value | Taxable Mkt Value | Gross Assessed | Exemption | Net Assessed | Millage | Est. Tax | Tax Savings | |||||
|
2026 |
193,000 |
193,000 |
21,230 |
1,000 |
20,230 |
122.90 |
$2,486 |
$123 |
|||||
|
2025 |
191,000 |
82,915 |
9,120 |
1,000 |
8,120 |
122.90 |
$998 |
$1,584 |
|||||
|
2024 |
186,000 |
82,915 |
9,120 |
1,000 |
8,120 |
123.89 |
$1,006 |
$1,529 |
|||||
|
2023 |
176,000 |
82,915 |
9,120 |
1,000 |
8,120 |
122.82 |
$997 |
$1,380 |
|||||
|
2022 |
160,500 |
82,915 |
9,120 |
1,000 |
8,120 |
117.63 |
$955 |
$1,122 |
|||||
| Property Account Status/Adjustments/Exemptions | ||
|---|---|---|
| Account # | Exemption Description | Amount |
|
R109672100 |
Homestead |
1,000 |
| Property Deed Transaction History (Recorded in the County Clerk's Office) | |||||||
|---|---|---|---|---|---|---|---|
| Date | Type | Book | Page | Price | Grantor | Grantee | |
|
8/22/2025 |
|
Deeds |
$0 |
MCINTIRE HARBON H & VIRGINIA L |
VIRGINA L MCINTIRE |
||
|
8/22/2025 |
|
Deeds |
$145,000 |
VIRGINA L MCINTIRE |
LEMIEUX RACHEL K |
||
|
6/1/1975 |
|
Historical |
$0 |
|
MCINTIRE HARBON H & VIRGINIA L |
||
| Last Mailed Notice of Value (N.O.V.) Information/History | ||||||||
|---|---|---|---|---|---|---|---|---|
| Year | Date | Market Value | Taxable Market Value | Gross Assessed | Exemption | Net Assessed | ||
|
2026 |
02/23/2026 |
193,000 |
193,000 |
21,230 |
0 |
21,230 |
||
|
2025 |
02/14/2025 |
191,000 |
82,915 |
9,120 |
1,000 |
8,120 |
||
|
2024 |
02/13/2024 |
186,000 |
82,915 |
9,120 |
1,000 |
8,120 |
||
|
2023 |
02/14/2023 |
176,000 |
82,915 |
9,120 |
1,000 |
8,120 |
||
|
2022 |
03/15/2022 |
160,500 |
82,915 |
9,120 |
1,000 |
8,120 |
||
| Property Building Permit History | |||||||||||
|---|---|---|---|---|---|---|---|---|---|---|---|
| Issued | Permit # | Provided by | Bldg # | Description | Est Construction Cost | Status | |||||
| No Building Permit records returned. | |||||||||||
| Click button on building number to access detailed information: | ||||||
|---|---|---|---|---|---|---|
| Bldg # | Vacant/Improved Land | Bldg Description | Year Built | SqFt | # Stories | |
|
1 |
Improved |
Ranch 1 Story |
1970 |
1,428 |
1 Stories |
|