|
|
|
| Larry Stein Oklahoma County Assessor (405) 713-1200 - Public Access System |
|
|
|
|
|
|
| Real Property Display - Screen Produced 4/4/2026 2:32:00 AM | ||||
|---|---|---|---|---|
| Account: R109791915 | Type: Residential | Location: |
11004 N MILLER AVE |
|
| Building Name/Occupant: |
|
OKLAHOMA CITY |
||
| Owner Name 1: | LIVE OAK FUNDING LLC |
Parcel PIN#: |
3675-10-979-1915 |
|
| Owner Name 2: | 1/4 section #: |
3675 |
||
| Owner Name 3: | Parent Acct: |
|
||
| Billing Address: | 11004 N MILLER AVE | Tax District: |
|
|
| City, State, Zip | OKLAHOMA CITY, OK 73120-6425 | School System: |
Oklahoma City #89 |
|
|
Country: (If noted) |
Land Size: |
0.2314 Acres |
||
|
Land Value: 31,790 |
|
|||
|
Sect 19-T13N-R3W Qtr SW |
STONEGATE
Block
016
Lot
011
|
|||
| Full Legal Description: STONEGATE 016 011 |
| Photo & Sketch (if available) | Comp Sales (ordered by relevancy) |
|
||||||||||||||||||
|
||||||||||||||||||||
| Value History (*The County Treasurer 405-713-1300 posts & collects actual tax amounts. Contact information HERE) | |||||||||||||
|---|---|---|---|---|---|---|---|---|---|---|---|---|---|
| Year | Market Value | Taxable Mkt Value | Gross Assessed | Exemption | Net Assessed | Millage | Est. Tax | Tax Savings | |||||
|
2026 |
224,000 |
224,000 |
24,640 |
0 |
24,640 |
122.90 |
$3,028 |
$0 |
|||||
|
2025 |
221,000 |
90,554 |
9,960 |
0 |
9,960 |
122.90 |
$1,224 |
$1,763 |
|||||
|
2024 |
217,500 |
86,242 |
9,485 |
0 |
9,485 |
123.89 |
$1,175 |
$1,789 |
|||||
|
2023 |
199,500 |
82,136 |
9,034 |
0 |
9,034 |
122.82 |
$1,110 |
$1,586 |
|||||
|
2022 |
178,000 |
78,225 |
8,604 |
0 |
8,604 |
117.63 |
$1,012 |
$1,291 |
|||||
| Property Account Status/Adjustments/Exemptions | ||||||
|---|---|---|---|---|---|---|
| Account # | Exemption Description | Amount | ||||
| No adjustment/exemption records returned. | ||||||
| Property Deed Transaction History (Recorded in the County Clerk's Office) | |||||||
|---|---|---|---|---|---|---|---|
| Date | Type | Book | Page | Price | Grantor | Grantee | |
|
7/16/2025 |
|
Deeds |
$188,000 |
HEMLEY RICHARD |
LIVE OAK FUNDING LLC |
||
|
10/6/2021 |
|
Hmstd Off & |
$0 |
HELMEY BETTY J |
HELMEY RICHARD |
||
|
10/6/2021 |
|
Deeds |
$0 |
HELMEY DAVID & BETTY |
HELMEY BETTY J |
||
|
11/11/1911 |
|
Historical |
$0 |
|
HELMEY DAVID & BETTY |
||
| Last Mailed Notice of Value (N.O.V.) Information/History | ||||||||
|---|---|---|---|---|---|---|---|---|
| Year | Date | Market Value | Taxable Market Value | Gross Assessed | Exemption | Net Assessed | ||
|
2026 |
02/23/2026 |
224,000 |
224,000 |
24,640 |
0 |
24,640 |
||
|
2025 |
02/14/2025 |
221,000 |
90,554 |
9,960 |
0 |
9,960 |
||
|
2024 |
02/13/2024 |
217,500 |
86,242 |
9,485 |
0 |
9,485 |
||
|
2023 |
02/14/2023 |
199,500 |
82,136 |
9,034 |
0 |
9,034 |
||
|
2022 |
03/15/2022 |
178,000 |
78,225 |
8,604 |
0 |
8,604 |
||
| Property Building Permit History | |||||||||||
|---|---|---|---|---|---|---|---|---|---|---|---|
| Issued | Permit # | Provided by | Bldg # | Description | Est Construction Cost | Status | |||||
| No Building Permit records returned. | |||||||||||
| Click button on building number to access detailed information: | ||||||
|---|---|---|---|---|---|---|
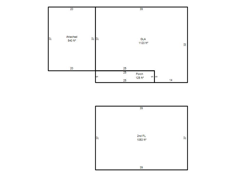
| Bldg # | Vacant/Improved Land | Bldg Description | Year Built | SqFt | # Stories | |
|
1 |
Improved |
2 Story |
1962 |
2,176 |
2 Stories |
|