|
|
|
| Larry Stein Oklahoma County Assessor (405) 713-1200 - Public Access System |
|
|
|
|
|
|
| Real Property Display - Screen Produced 4/4/2026 2:32:00 AM | ||||
|---|---|---|---|---|
| Account: R109793545 | Type: Residential | Location: |
2700 NW 115TH ST |
|
| Building Name/Occupant: |
|
OKLAHOMA CITY |
||
| Owner Name 1: | ESQUIVEL ELI LUIS & MARGARET A |
Parcel PIN#: |
3675-10-979-3545 |
|
| Owner Name 2: | 1/4 section #: |
3675 |
||
| Owner Name 3: | Parent Acct: |
|
||
| Billing Address: | 2700 NW 115TH ST | Tax District: |
|
|
| City, State, Zip | OKLAHOMA CITY, OK 73120-6613 | School System: |
Oklahoma City #89 |
|
|
Country: (If noted) |
Land Size: |
0.2094 Acres |
||
|
Land Value: 33,288 |
|
|||
|
Sect 19-T13N-R3W Qtr SW |
STONEGATE
Block
029
Lot
008
|
|||
| Full Legal Description: STONEGATE 029 008 |
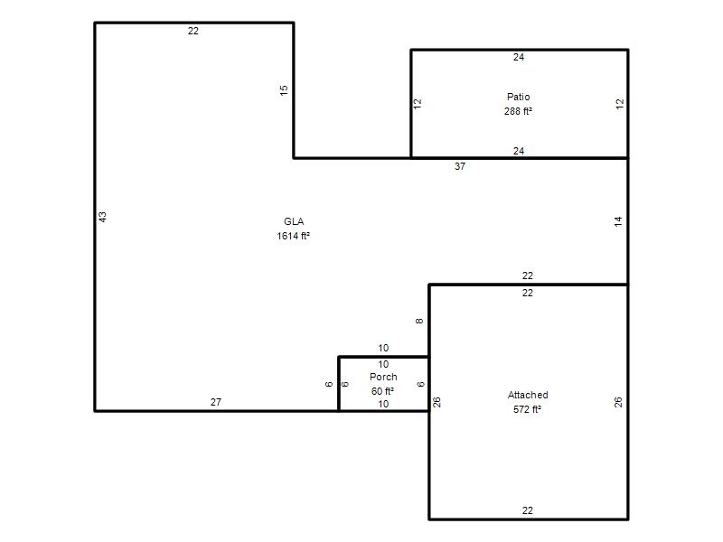
| Photo & Sketch (if available) | Comp Sales (ordered by relevancy) |
|
||||||||||||||||||
|
||||||||||||||||||||
| Value History (*The County Treasurer 405-713-1300 posts & collects actual tax amounts. Contact information HERE) | |||||||||||||
|---|---|---|---|---|---|---|---|---|---|---|---|---|---|
| Year | Market Value | Taxable Mkt Value | Gross Assessed | Exemption | Net Assessed | Millage | Est. Tax | Tax Savings | |||||
|
2026 |
257,000 |
257,000 |
28,270 |
0 |
28,270 |
122.90 |
$3,474 |
$0 |
|||||
|
2025 |
207,000 |
153,022 |
16,832 |
1,000 |
15,832 |
122.90 |
$1,946 |
$853 |
|||||
|
2024 |
200,500 |
148,566 |
16,341 |
1,000 |
15,341 |
123.89 |
$1,901 |
$832 |
|||||
|
2023 |
185,500 |
144,239 |
15,866 |
1,000 |
14,866 |
122.82 |
$1,826 |
$680 |
|||||
|
2022 |
170,000 |
140,038 |
15,403 |
1,000 |
14,403 |
117.63 |
$1,694 |
$505 |
|||||
| Property Account Status/Adjustments/Exemptions | ||||||
|---|---|---|---|---|---|---|
| Account # | Exemption Description | Amount | ||||
| No adjustment/exemption records returned. | ||||||
| Property Deed Transaction History (Recorded in the County Clerk's Office) | |||||||
|---|---|---|---|---|---|---|---|
| Date | Type | Book | Page | Price | Grantor | Grantee | |
|
10/17/2025 |
|
Deeds |
$270,000 |
GALLAVAN ROBERT H III & DEANNA B |
ESQUIVEL ELI LUIS & MARGARET A |
||
|
9/15/2017 |
|
Deeds |
$0 |
GALLAVAN ROBERT H III & DEANNA |
GALLAVAN ROBERT H III & DEANNA B |
||
|
8/12/2011 |
|
Deeds |
$102,000 |
MILLER MARGARET HELEN |
GALLAVAN ROBERT H III & DEANNA |
||
|
5/12/1993 |
|
Historical |
$0 |
MILLER J RODNEY & MARGARET H |
MILLER MARGARET HELEN |
||
|
11/11/1911 |
|
Historical |
$0 |
|
MILLER J RODNEY & MARGARET H |
||
| Last Mailed Notice of Value (N.O.V.) Information/History | ||||||||
|---|---|---|---|---|---|---|---|---|
| Year | Date | Market Value | Taxable Market Value | Gross Assessed | Exemption | Net Assessed | ||
|
2026 |
02/23/2026 |
257,000 |
257,000 |
28,270 |
0 |
28,270 |
||
|
2025 |
02/14/2025 |
207,000 |
153,022 |
16,832 |
1,000 |
15,832 |
||
|
2024 |
02/13/2024 |
200,500 |
148,566 |
16,341 |
1,000 |
15,341 |
||
|
2023 |
02/14/2023 |
185,500 |
144,239 |
15,866 |
1,000 |
14,866 |
||
|
2022 |
03/15/2022 |
170,000 |
140,038 |
15,403 |
1,000 |
14,403 |
||
| Property Building Permit History | |||||||||||
|---|---|---|---|---|---|---|---|---|---|---|---|
| Issued | Permit # | Provided by | Bldg # | Description | Est Construction Cost | Status | |||||
| No Building Permit records returned. | |||||||||||
| Click button on building number to access detailed information: | ||||||
|---|---|---|---|---|---|---|
| Bldg # | Vacant/Improved Land | Bldg Description | Year Built | SqFt | # Stories | |
|
1 |
Improved |
Ranch 1 Story |
1973 |
1,614 |
1 Stories |
|