|
|
|
| Larry Stein Oklahoma County Assessor (405) 713-1200 - Public Access System |
|
|
|
|
|
|
| Real Property Display - Screen Produced 4/4/2026 5:45:31 PM | ||||
|---|---|---|---|---|
| Account: R130202410 | Type: Residential | Location: |
625 NW 94TH ST |
|
| Building Name/Occupant: |
|
OKLAHOMA CITY |
||
| Owner Name 1: | BRN PROPERTIES LLC |
Parcel PIN#: |
3711-13-020-2410 |
|
| Owner Name 2: | 1/4 section #: |
3711 |
||
| Owner Name 3: | Parent Acct: |
|
||
| Billing Address: | 19 W 5TH ST | Tax District: |
|
|
| City, State, Zip | EDMOND, OK 73003-5562 | School System: |
Oklahoma City #89 |
|
|
Country: (If noted) |
Land Size: |
0.1109 Acres |
||
|
Land Value: 8,211 |
|
|||
|
Sect 28-T13N-R3W Qtr SW |
EAST BRITTON ADD
Block
023
Lot
000
|
|||
| Full Legal Description: EAST BRITTON ADD 023 000 S 1/2 LOTS 31 & 32 SUBJ TO EASEMENTS OF RECORD |
| Photo & Sketch (if available) | Comp Sales (ordered by relevancy) |
|
||||||||||||||||||
|
||||||||||||||||||||
| Value History (*The County Treasurer 405-713-1300 posts & collects actual tax amounts. Contact information HERE) | |||||||||||||
|---|---|---|---|---|---|---|---|---|---|---|---|---|---|
| Year | Market Value | Taxable Mkt Value | Gross Assessed | Exemption | Net Assessed | Millage | Est. Tax | Tax Savings | |||||
|
2026 |
98,000 |
98,000 |
10,780 |
0 |
10,780 |
122.90 |
$1,325 |
$0 |
|||||
|
2025 |
100,000 |
95,025 |
10,452 |
0 |
10,452 |
122.90 |
$1,285 |
$67 |
|||||
|
2024 |
90,500 |
90,500 |
9,955 |
0 |
9,955 |
123.89 |
$1,233 |
$0 |
|||||
|
2023 |
87,500 |
51,187 |
5,630 |
0 |
5,630 |
122.82 |
$692 |
$491 |
|||||
|
2022 |
70,000 |
48,750 |
5,362 |
0 |
5,362 |
117.63 |
$631 |
$275 |
|||||
| Property Account Status/Adjustments/Exemptions | ||
|---|---|---|
| Account # | Exemption Description | Amount |
|
R130202410 |
5% Capped Account |
0 |
| Property Deed Transaction History (Recorded in the County Clerk's Office) | |||||||
|---|---|---|---|---|---|---|---|
| Date | Type | Book | Page | Price | Grantor | Grantee | |
|
12/11/2023 |
|
Deeds |
$80,000 |
HALL WARD |
KINGDOM HOMES LLC |
||
|
12/6/2023 |
|
Deeds |
$89,000 |
KINGDOM HOMES LLC |
BRN PROPERTIES LLC |
||
|
7/30/1992 |
|
Historical |
$1,400 |
RESOLUTION TRUST CORPORATION |
HALL WARD |
||
|
8/5/1991 |
|
Historical |
$0 |
KHAMTHANSY ANAN & SAMLOUY K |
RESOLUTION TRUST CORPORATION |
||
|
5/1/1983 |
|
Historical |
$0 |
|
KHAMTHANSY ANAN & SAMLOUY K |
||
| Last Mailed Notice of Value (N.O.V.) Information/History | ||||||||
|---|---|---|---|---|---|---|---|---|
| Year | Date | Market Value | Taxable Market Value | Gross Assessed | Exemption | Net Assessed | ||
|
2026 |
02/23/2026 |
98,000 |
98,000 |
10,780 |
0 |
10,780 |
||
|
2025 |
02/14/2025 |
100,000 |
95,025 |
10,452 |
0 |
10,452 |
||
|
2024 |
02/13/2024 |
90,500 |
90,500 |
9,955 |
0 |
9,955 |
||
|
2023 |
02/14/2023 |
87,500 |
51,187 |
5,630 |
0 |
5,630 |
||
|
2022 |
03/15/2022 |
70,000 |
48,750 |
5,362 |
0 |
5,362 |
||
| Property Building Permit History | |||||||||||
|---|---|---|---|---|---|---|---|---|---|---|---|
| Issued | Permit # | Provided by | Bldg # | Description | Est Construction Cost | Status | |||||
| No Building Permit records returned. | |||||||||||
| Click button on building number to access detailed information: | ||||||
|---|---|---|---|---|---|---|
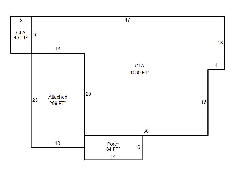
| Bldg # | Vacant/Improved Land | Bldg Description | Year Built | SqFt | # Stories | |
|
1 |
Improved |
Ranch 1 Story |
1951 |
1,084 |
1 Stories |
|