|
|
|
| Larry Stein Oklahoma County Assessor (405) 713-1200 - Public Access System |
|
|
|
|
|
|
| Real Property Display - Screen Produced 4/5/2026 6:28:28 AM | ||||
|---|---|---|---|---|
| Account: R130521020 | Type: Residential | Location: |
727 NW 99TH ST |
|
| Building Name/Occupant: |
|
OKLAHOMA CITY |
||
| Owner Name 1: | BOYDSTON CONNER |
Parcel PIN#: |
3711-13-052-1020 |
|
| Owner Name 2: | 1/4 section #: |
3711 |
||
| Owner Name 3: | Parent Acct: |
|
||
| Billing Address: | 727 NW 99TH ST | Tax District: |
|
|
| City, State, Zip | OKLAHOMA CITY, OK 73114-5601 | School System: |
Oklahoma City #89 |
|
|
Country: (If noted) |
Land Size: |
0.1607 Acres |
||
|
Land Value: 11,900 |
|
|||
|
Sect 28-T13N-R3W Qtr SW |
BRITTON PARK ADD
Block
004
Lot
000
|
|||
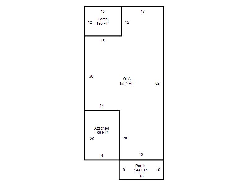
| Full Legal Description: BRITTON PARK ADD 004 000 LOTS 41 & 42 |
| Photo & Sketch (if available) | Comp Sales (ordered by relevancy) |
|
||||||||||||||||||
|
||||||||||||||||||||
| Value History (*The County Treasurer 405-713-1300 posts & collects actual tax amounts. Contact information HERE) | |||||||||||||
|---|---|---|---|---|---|---|---|---|---|---|---|---|---|
| Year | Market Value | Taxable Mkt Value | Gross Assessed | Exemption | Net Assessed | Millage | Est. Tax | Tax Savings | |||||
|
2026 |
237,500 |
237,500 |
26,125 |
1,000 |
25,125 |
122.90 |
$3,088 |
$123 |
|||||
|
2025 |
232,000 |
232,000 |
25,520 |
1,000 |
24,520 |
122.90 |
$3,014 |
$123 |
|||||
|
2024 |
5,000 |
5,000 |
550 |
0 |
550 |
123.89 |
$68 |
$0 |
|||||
|
2023 |
11,900 |
1,401 |
153 |
0 |
153 |
122.82 |
$19 |
$142 |
|||||
|
2022 |
4,340 |
1,335 |
145 |
0 |
145 |
117.63 |
$17 |
$39 |
|||||
| Property Account Status/Adjustments/Exemptions | ||
|---|---|---|
| Account # | Exemption Description | Amount |
|
R130521020 |
3% Cap Homestead |
0 |
|
R130521020 |
Homestead |
1,000 |
| Property Deed Transaction History (Recorded in the County Clerk's Office) | ||||||||||
|---|---|---|---|---|---|---|---|---|---|---|
| Date | Type | Book | Page | Price | Grantor | Grantee | ||||
|
12/2/2024 |
|
Deeds |
$250,000 |
URIARTE CONSTRUCTION LLC |
BOYDSTON CONNER |
|||||
|
7/23/2023 |
|
Deeds |
$5,000 |
ENGLISH DANIEL L & JIMMIE M |
URIARTE CONSTRUCTION LLC |
|||||
|
12/13/1995 |
|
Historical |
$0 |
ENGLISH ROBERT W JR |
ENGLISH DANIEL L & JIMMIE M |
|||||
|
7/18/1989 |
|
Historical |
$0 |
ENGLISH CLAUDE J |
ENGLISH ROBERT W JR |
|||||
|
2/12/1988 |
|
Historical |
$0 |
ENGLISH ROBERT W |
ENGLISH CLAUDE J |
|||||
| Last Mailed Notice of Value (N.O.V.) Information/History | ||||||||
|---|---|---|---|---|---|---|---|---|
| Year | Date | Market Value | Taxable Market Value | Gross Assessed | Exemption | Net Assessed | ||
|
2026 |
02/23/2026 |
237,500 |
237,500 |
26,125 |
1,000 |
25,125 |
||
|
2025 |
03/28/2025 |
232,000 |
232,000 |
25,520 |
1,000 |
24,520 |
||
|
2024 |
02/13/2024 |
5,000 |
5,000 |
550 |
0 |
550 |
||
|
2023 |
02/14/2023 |
11,900 |
1,401 |
153 |
0 |
153 |
||
|
2022 |
03/15/2022 |
4,340 |
1,335 |
145 |
0 |
145 |
||
| Property Building Permit History | ||||||
|---|---|---|---|---|---|---|
| Issued | Permit # | Provided by | Bldg # | Description | Est Construction Cost | Status |
|
6/21/2024 |
BLDR-2024-00690 |
|
|
Main Dwellin |
140,000 |
Inactive |
|
2/26/2002 |
10228369 |
OKLAHOMA CITY |
|
Demolish |
2,815 |
Inactive |
|
4/26/2001 |
10228368 |
OKLAHOMA CITY |
|
Demolish |
0 |
Inactive |
| Click button on building number to access detailed information: | ||||||
|---|---|---|---|---|---|---|
| Bldg # | Vacant/Improved Land | Bldg Description | Year Built | SqFt | # Stories | |
|
1 |
Improved |
Ranch 1 Story |
2024 |
1,524 |
1 Stories |
|