|
|
|
| Larry Stein Oklahoma County Assessor (405) 713-1200 - Public Access System |
|
|
|
|
|
|
| Real Property Display - Screen Produced 4/4/2026 5:45:31 PM | ||||
|---|---|---|---|---|
| Account: R130526450 | Type: Residential | Location: |
808 NW 97TH ST |
|
| Building Name/Occupant: |
|
OKLAHOMA CITY |
||
| Owner Name 1: | HUDSON HOMES LLC |
Parcel PIN#: |
3711-13-052-6450 |
|
| Owner Name 2: | 1/4 section #: |
3711 |
||
| Owner Name 3: | Parent Acct: |
|
||
| Billing Address: | 3212 WATERSTONE AVE | Tax District: |
|
|
| City, State, Zip | HENDERSON, NV 89044-1867 | School System: |
Oklahoma City #89 |
|
|
Country: (If noted) |
Land Size: |
0.1607 Acres |
||
|
Land Value: 11,900 |
|
|||
|
Sect 28-T13N-R3W Qtr SW |
BRITTON PARK ADD
Block
014
Lot
000
|
|||
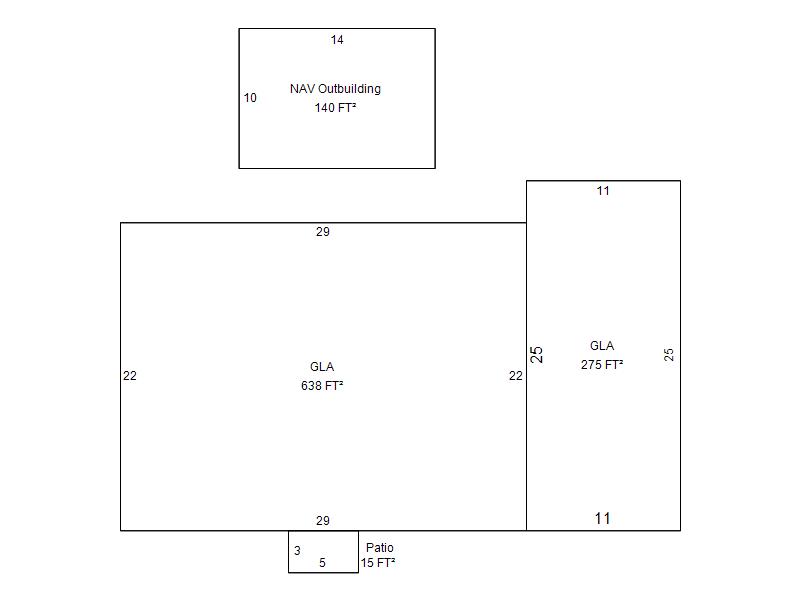
| Full Legal Description: BRITTON PARK ADD 014 000 LOTS 45 & 46 |
| Photo & Sketch (if available) | Comp Sales (ordered by relevancy) |
|
||||||||||||||||||
|
||||||||||||||||||||
| Value History (*The County Treasurer 405-713-1300 posts & collects actual tax amounts. Contact information HERE) | |||||||||||||
|---|---|---|---|---|---|---|---|---|---|---|---|---|---|
| Year | Market Value | Taxable Mkt Value | Gross Assessed | Exemption | Net Assessed | Millage | Est. Tax | Tax Savings | |||||
|
2026 |
76,000 |
76,000 |
8,360 |
0 |
8,360 |
122.90 |
$1,027 |
$0 |
|||||
|
2025 |
73,500 |
73,500 |
8,085 |
0 |
8,085 |
122.90 |
$994 |
$0 |
|||||
|
2024 |
67,500 |
47,407 |
5,214 |
0 |
5,214 |
123.89 |
$646 |
$274 |
|||||
|
2023 |
67,500 |
45,150 |
4,966 |
0 |
4,966 |
122.82 |
$610 |
$302 |
|||||
|
2022 |
43,000 |
43,000 |
4,730 |
0 |
4,730 |
117.63 |
$556 |
$0 |
|||||
| Property Account Status/Adjustments/Exemptions | ||
|---|---|---|
| Account # | Exemption Description | Amount |
|
R130526450 |
5% Capped Account |
0 |
| Property Deed Transaction History (Recorded in the County Clerk's Office) | ||||||||||
|---|---|---|---|---|---|---|---|---|---|---|
| Date | Type | Book | Page | Price | Grantor | Grantee | ||||
|
9/20/2024 |
|
Deeds |
$85,000 |
NOLEN PROPERTIES LLC |
HUDSON HOMES LLC |
|||||
|
12/14/2022 |
|
Hmstd Off & |
$0 |
NOLEN PROPERTIES LLC |
NOLEN PROPERTIES LLC |
|||||
|
2/8/2021 |
|
Deeds |
$42,000 |
MARSON JIMMY D |
NOLEN PROPERTIES LLC |
|||||
|
1/14/2021 |
|
Deeds |
$0 |
MARSON JIMMY D & THERSIA E |
MARSON JIMMY D |
|||||
|
12/6/2007 |
|
Deeds |
$20,000 |
CANYON ROAD CORPORATION |
MARSON JIMMY D & THERSIA E |
|||||
| Last Mailed Notice of Value (N.O.V.) Information/History | ||||||||
|---|---|---|---|---|---|---|---|---|
| Year | Date | Market Value | Taxable Market Value | Gross Assessed | Exemption | Net Assessed | ||
|
2026 |
02/23/2026 |
76,000 |
76,000 |
8,360 |
0 |
8,360 |
||
|
2025 |
02/14/2025 |
73,500 |
73,500 |
8,085 |
0 |
8,085 |
||
|
2024 |
02/13/2024 |
67,500 |
47,407 |
5,214 |
0 |
5,214 |
||
|
2023 |
02/14/2023 |
67,500 |
45,150 |
4,966 |
0 |
4,966 |
||
|
2022 |
03/15/2022 |
43,000 |
43,000 |
4,730 |
0 |
4,730 |
||
| Property Building Permit History | |||||||||||
|---|---|---|---|---|---|---|---|---|---|---|---|
| Issued | Permit # | Provided by | Bldg # | Description | Est Construction Cost | Status | |||||
| No Building Permit records returned. | |||||||||||
| Click button on building number to access detailed information: | ||||||
|---|---|---|---|---|---|---|
| Bldg # | Vacant/Improved Land | Bldg Description | Year Built | SqFt | # Stories | |
|
1 |
Improved |
1½ Story Unfin |
1955 |
913 |
1.5 Stories |
|