|
|
|
| Larry Stein Oklahoma County Assessor (405) 713-1200 - Public Access System |
|
|
|
|
|
|
| Real Property Display - Screen Produced 4/4/2026 10:44:35 AM | ||||
|---|---|---|---|---|
| Account: R130564500 | Type: Residential | Location: |
1005 NW 98TH ST |
|
| Building Name/Occupant: |
|
OKLAHOMA CITY |
||
| Owner Name 1: | MCDERMID JAYCEE |
Parcel PIN#: |
3711-13-056-4500 |
|
| Owner Name 2: | LOVETT COLTON | 1/4 section #: |
3711 |
|
| Owner Name 3: | Parent Acct: |
|
||
| Billing Address: | 1005 NW 98TH ST | Tax District: |
|
|
| City, State, Zip | OKLAHOMA CITY, OK 73114-5505 | School System: |
Oklahoma City #89 |
|
|
Country: (If noted) |
Land Size: |
0.1607 Acres |
||
|
Land Value: 11,900 |
|
|||
|
Sect 28-T13N-R3W Qtr SW |
CENTRAL VIEW HEIGHTS
Block
003
Lot
000
|
|||
| Full Legal Description: CENTRAL VIEW HEIGHTS 003 000 LOTS 41 & 42 |
| Photo & Sketch (if available) | Comp Sales (ordered by relevancy) |
|
||||||||||||||||||
|
||||||||||||||||||||
| Value History (*The County Treasurer 405-713-1300 posts & collects actual tax amounts. Contact information HERE) | |||||||||||||
|---|---|---|---|---|---|---|---|---|---|---|---|---|---|
| Year | Market Value | Taxable Mkt Value | Gross Assessed | Exemption | Net Assessed | Millage | Est. Tax | Tax Savings | |||||
|
2026 |
139,500 |
139,500 |
15,345 |
1,000 |
14,345 |
122.90 |
$1,763 |
$123 |
|||||
|
2025 |
98,500 |
98,500 |
10,835 |
0 |
10,835 |
122.90 |
$1,332 |
$0 |
|||||
|
2024 |
88,000 |
37,476 |
4,122 |
0 |
4,122 |
123.89 |
$511 |
$689 |
|||||
|
2023 |
84,500 |
35,692 |
3,925 |
0 |
3,925 |
122.82 |
$482 |
$659 |
|||||
|
2022 |
66,500 |
33,993 |
3,738 |
0 |
3,738 |
117.63 |
$440 |
$421 |
|||||
| Property Account Status/Adjustments/Exemptions | ||
|---|---|---|
| Account # | Exemption Description | Amount |
|
R130564500 |
Homestead |
1,000 |
| Property Deed Transaction History (Recorded in the County Clerk's Office) | ||||||||||
|---|---|---|---|---|---|---|---|---|---|---|
| Date | Type | Book | Page | Price | Grantor | Grantee | ||||
|
2/20/2025 |
|
Deeds |
$160,000 |
GINSTERBLUM KRISTIAN |
MCDERMID JAYCEE |
|||||
|
8/19/2024 |
|
Deeds |
$106,000 |
LEDFORD PATTY |
GINSTERBLUM KRISTIAN |
|||||
|
7/21/2003 |
|
Hmstd Off & |
$0 |
PRICHARD SAMUEL J |
LEDFORD PATTY |
|||||
|
12/10/1998 |
|
Deeds |
$0 |
PRICHARD SAMUEL J & CARRIE D |
PRICHARD SAMUEL J |
|||||
|
9/26/1997 |
|
Historical |
$10,000 |
MCKENZIE KELLY J |
PRICHARD SAMUEL J & CARRIE D |
|||||
| Last Mailed Notice of Value (N.O.V.) Information/History | ||||||||
|---|---|---|---|---|---|---|---|---|
| Year | Date | Market Value | Taxable Market Value | Gross Assessed | Exemption | Net Assessed | ||
|
2026 |
02/23/2026 |
139,500 |
139,500 |
15,345 |
1,000 |
14,345 |
||
|
2025 |
02/14/2025 |
98,500 |
98,500 |
10,835 |
0 |
10,835 |
||
|
2025 |
03/28/2025 |
98,500 |
98,500 |
10,835 |
0 |
10,835 |
||
|
2024 |
02/13/2024 |
88,000 |
37,476 |
4,122 |
0 |
4,122 |
||
|
2023 |
02/14/2023 |
84,500 |
35,692 |
3,925 |
0 |
3,925 |
||
| Property Building Permit History | |||||||||||
|---|---|---|---|---|---|---|---|---|---|---|---|
| Issued | Permit # | Provided by | Bldg # | Description | Est Construction Cost | Status | |||||
| No Building Permit records returned. | |||||||||||
| Click button on building number to access detailed information: | ||||||
|---|---|---|---|---|---|---|
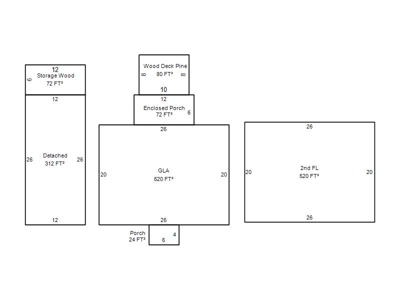
| Bldg # | Vacant/Improved Land | Bldg Description | Year Built | SqFt | # Stories | |
|
1 |
Improved |
2 Story |
1947 |
1,040 |
2 Stories |
|