|
|
|
| Larry Stein Oklahoma County Assessor (405) 713-1200 - Public Access System |
|
|
|
|
|
|
| Real Property Display - Screen Produced 4/4/2026 1:23:31 PM | ||||
|---|---|---|---|---|
| Account: R130642375 | Type: Residential | Location: |
1106 NW 99TH ST |
|
| Building Name/Occupant: |
|
OKLAHOMA CITY |
||
| Owner Name 1: | SHOCK RYKER |
Parcel PIN#: |
3714-13-064-2375 |
|
| Owner Name 2: | 1/4 section #: |
3714 |
||
| Owner Name 3: | Parent Acct: |
|
||
| Billing Address: | 1106 NW 99TH ST | Tax District: |
|
|
| City, State, Zip | OKLAHOMA CITY, OK 73114-4904 | School System: |
Oklahoma City #89 |
|
|
Country: (If noted) |
Land Size: |
0.1584 Acres |
||
|
Land Value: 17,940 |
|
|||
|
Sect 29-T13N-R3W Qtr SE |
ALTAVUE ADDITION
Block
006
Lot
000
|
|||
| Full Legal Description: ALTAVUE ADDITION 006 000 W69.35FT OF LOTS 1 THRU 4 |
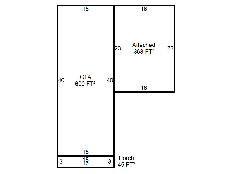
| Photo & Sketch (if available) | Comp Sales (ordered by relevancy) |
|
||||||||||||||||||
|
||||||||||||||||||||
| Value History (*The County Treasurer 405-713-1300 posts & collects actual tax amounts. Contact information HERE) | |||||||||||||
|---|---|---|---|---|---|---|---|---|---|---|---|---|---|
| Year | Market Value | Taxable Mkt Value | Gross Assessed | Exemption | Net Assessed | Millage | Est. Tax | Tax Savings | |||||
|
2026 |
133,000 |
133,000 |
14,630 |
0 |
14,630 |
122.90 |
$1,798 |
$0 |
|||||
|
2025 |
134,000 |
134,000 |
14,740 |
0 |
14,740 |
122.90 |
$1,812 |
$0 |
|||||
|
2024 |
130,000 |
86,269 |
9,488 |
0 |
9,488 |
123.89 |
$1,176 |
$596 |
|||||
|
2023 |
123,500 |
82,161 |
9,037 |
1,000 |
8,037 |
122.82 |
$987 |
$681 |
|||||
|
2022 |
98,500 |
79,768 |
8,773 |
1,000 |
7,773 |
117.63 |
$915 |
$360 |
|||||
| Property Account Status/Adjustments/Exemptions | ||
|---|---|---|
| Account # | Exemption Description | Amount |
|
R130642375 |
5% Capped Account |
0 |
| Property Deed Transaction History (Recorded in the County Clerk's Office) | ||||||||||
|---|---|---|---|---|---|---|---|---|---|---|
| Date | Type | Book | Page | Price | Grantor | Grantee | ||||
|
3/1/2024 |
|
Deeds |
$139,500 |
HANCOCK LAURA |
SHOCK RYKER |
|||||
|
3/1/2024 |
|
Deeds |
$120,000 |
HANCOCK LAURA |
SHOCK RYKER |
|||||
|
4/18/2018 |
|
Deeds |
$0 |
LEIGHTON MARVIN R |
LEIGHTON CAROLYN S |
|||||
|
4/18/2018 |
|
Deeds |
$0 |
LEIGHTON MARVIN R & CAROLYN S |
LEIGHTON MARVIN R & CAROLYN S |
|||||
|
4/18/2018 |
|
Deeds |
$75,000 |
LEIGHTON CAROLYN S |
HANCOCK LAURA |
|||||
| Last Mailed Notice of Value (N.O.V.) Information/History | ||||||||
|---|---|---|---|---|---|---|---|---|
| Year | Date | Market Value | Taxable Market Value | Gross Assessed | Exemption | Net Assessed | ||
|
2025 |
02/14/2025 |
134,000 |
134,000 |
14,740 |
0 |
14,740 |
||
|
2024 |
02/13/2024 |
130,000 |
86,269 |
9,488 |
0 |
9,488 |
||
|
2024 |
04/05/2024 |
130,000 |
86,269 |
9,488 |
0 |
9,488 |
||
|
2023 |
02/14/2023 |
123,500 |
82,161 |
9,037 |
1,000 |
8,037 |
||
|
2022 |
03/15/2022 |
98,500 |
79,768 |
8,773 |
1,000 |
7,773 |
||
| Property Building Permit History | ||||||
|---|---|---|---|---|---|---|
| Issued | Permit # | Provided by | Bldg # | Description | Est Construction Cost | Status |
|
4/13/2017 |
10495015 |
OKLAHOMA CITY |
1 |
Main Dwellin |
70,000 |
Inactive |
|
4/13/2016 |
10484244 |
OKLAHOMA CITY |
1 |
Demolish |
0 |
Inactive |
|
3/8/1999 |
10228455 |
OKLAHOMA CITY |
1 |
Demolish |
0 |
Inactive |
| Click button on building number to access detailed information: | ||||||
|---|---|---|---|---|---|---|
| Bldg # | Vacant/Improved Land | Bldg Description | Year Built | SqFt | # Stories | |
|
1 |
Improved |
Ranch 1 Story |
2017 |
600 |
1 Stories |
|