|
|
|
| Larry Stein Oklahoma County Assessor (405) 713-1200 - Public Access System |
|
|
|
|
|
|
| Real Property Display - Screen Produced 4/1/2026 6:44:57 PM | ||||
|---|---|---|---|---|
| Account: R130289391 | Type: Residential | Location: |
320 NW 86TH ST |
|
| Building Name/Occupant: |
|
OKLAHOMA CITY |
||
| Owner Name 1: | LANDRUN INVESTMENT PROPERTIES LLC |
Parcel PIN#: |
3729-13-028-9391 |
|
| Owner Name 2: | 1/4 section #: |
3729 |
||
| Owner Name 3: | Parent Acct: |
|
||
| Billing Address: | 18608 DIEGO PL | Tax District: |
|
|
| City, State, Zip | EDMOND, OK 73012 | School System: |
Oklahoma City #89 |
|
|
Country: (If noted) |
Land Size: |
0.1515 Acres |
||
|
Land Value: 20,790 |
|
|||
|
Sect 33-T13N-R3W Qtr NE |
ESTES ACRES ADDITION
Block
018
Lot
000
|
|||
| Full Legal Description: ESTES ACRES ADDITION 018 000 W50FT OF E300FT |
| Photo & Sketch (if available) | Comp Sales (ordered by relevancy) |
|
||||||||||||||||||
|
||||||||||||||||||||
| Value History (*The County Treasurer 405-713-1300 posts & collects actual tax amounts. Contact information HERE) | |||||||||||||
|---|---|---|---|---|---|---|---|---|---|---|---|---|---|
| Year | Market Value | Taxable Mkt Value | Gross Assessed | Exemption | Net Assessed | Millage | Est. Tax | Tax Savings | |||||
|
2026 |
103,000 |
103,000 |
11,330 |
0 |
11,330 |
122.90 |
$1,392 |
$0 |
|||||
|
2025 |
99,000 |
99,000 |
10,890 |
0 |
10,890 |
122.90 |
$1,338 |
$0 |
|||||
|
2024 |
94,500 |
94,500 |
10,395 |
0 |
10,395 |
123.89 |
$1,288 |
$0 |
|||||
|
2023 |
89,500 |
47,528 |
5,227 |
1,000 |
4,227 |
122.82 |
$519 |
$690 |
|||||
|
2022 |
68,000 |
46,144 |
5,074 |
1,000 |
4,074 |
117.63 |
$479 |
$400 |
|||||
| Property Account Status/Adjustments/Exemptions | ||
|---|---|---|
| Account # | Exemption Description | Amount |
|
R130289391 |
5% Capped Account |
0 |
| Property Deed Transaction History (Recorded in the County Clerk's Office) | |||||||
|---|---|---|---|---|---|---|---|
| Date | Type | Book | Page | Price | Grantor | Grantee | |
|
2/21/2023 |
|
Deeds |
$85,000 |
KYATEREKERA OLIVIA |
ATLAS ACQUISITIONS LLC |
||
|
2/21/2023 |
|
Deeds |
$111,000 |
ATLAS ACQUISITIONS LLC |
LANDRUN INVESTMENT PROPERTIES LLC |
||
|
6/12/2009 |
|
Deeds |
$45,000 |
MCGUIRE JOHN E & SHERRYL M |
KYATEREKERA OLIVIA |
||
|
1/15/1988 |
|
Historical |
$9,159 |
SECRETARY OF HOUSING |
MCGUIRE JOHN E & SHERRYL M |
||
|
4/1/1986 |
|
Historical |
$0 |
|
SECRETARY OF HOUSING |
||
| Last Mailed Notice of Value (N.O.V.) Information/History | ||||||||
|---|---|---|---|---|---|---|---|---|
| Year | Date | Market Value | Taxable Market Value | Gross Assessed | Exemption | Net Assessed | ||
|
2026 |
02/23/2026 |
103,000 |
103,000 |
11,330 |
0 |
11,330 |
||
|
2025 |
02/14/2025 |
99,000 |
99,000 |
10,890 |
0 |
10,890 |
||
|
2024 |
02/13/2024 |
94,500 |
94,500 |
10,395 |
0 |
10,395 |
||
|
2023 |
02/14/2023 |
89,500 |
47,528 |
5,227 |
1,000 |
4,227 |
||
|
2022 |
03/15/2022 |
68,000 |
46,144 |
5,074 |
1,000 |
4,074 |
||
| Property Building Permit History | |||||||||||
|---|---|---|---|---|---|---|---|---|---|---|---|
| Issued | Permit # | Provided by | Bldg # | Description | Est Construction Cost | Status | |||||
| No Building Permit records returned. | |||||||||||
| Click button on building number to access detailed information: | ||||||
|---|---|---|---|---|---|---|
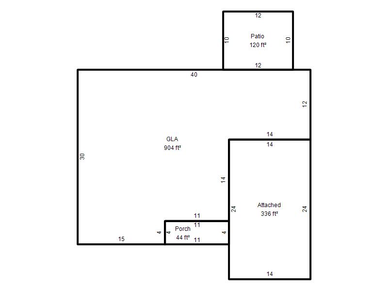
| Bldg # | Vacant/Improved Land | Bldg Description | Year Built | SqFt | # Stories | |
|
1 |
Improved |
Ranch 1 Story |
1963 |
904 |
1 Stories |
|