|
|
|
| Larry Stein Oklahoma County Assessor (405) 713-1200 - Public Access System |
|
|
|
|
|
|
| Real Property Display - Screen Produced 4/3/2026 5:39:47 AM | ||||
|---|---|---|---|---|
| Account: R120481180 | Type: Residential | Location: |
4600 VAL VERDE DR |
|
| Building Name/Occupant: |
|
OKLAHOMA CITY |
||
| Owner Name 1: | DUFFY TYLER |
Parcel PIN#: |
3858-12-048-1180 |
|
| Owner Name 2: | CAVALCANTE GIOVANA | 1/4 section #: |
3858 |
|
| Owner Name 3: | Parent Acct: |
|
||
| Billing Address: | 4600 VAL VERDE DR | Tax District: |
|
|
| City, State, Zip | OKLAHOMA CITY, OK 73142-5153 | School System: |
Oklahoma City #89 |
|
|
Country: (If noted) |
Land Size: |
0.3985 Acres |
||
|
Land Value: 111,104 |
|
|||
|
Sect 15-T13N-R4W Qtr SE |
THE GREENS SEC 8
Block
037
Lot
019
|
|||
| Full Legal Description: THE GREENS SEC 8 037 019 |
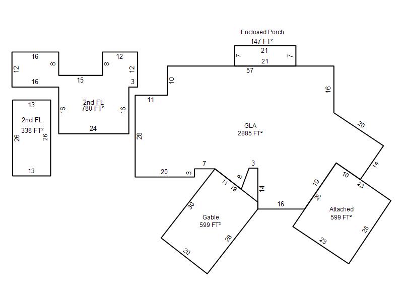
| Photo & Sketch (if available) | Comp Sales (ordered by relevancy) |
|
||||||||||||||||||
|
||||||||||||||||||||
| Value History (*The County Treasurer 405-713-1300 posts & collects actual tax amounts. Contact information HERE) | |||||||||||||
|---|---|---|---|---|---|---|---|---|---|---|---|---|---|
| Year | Market Value | Taxable Mkt Value | Gross Assessed | Exemption | Net Assessed | Millage | Est. Tax | Tax Savings | |||||
|
2026 |
657,500 |
657,500 |
72,325 |
0 |
72,325 |
122.90 |
$8,889 |
$0 |
|||||
|
2025 |
646,500 |
646,500 |
71,115 |
0 |
71,115 |
122.90 |
$8,740 |
$0 |
|||||
|
2024 |
551,000 |
499,683 |
54,964 |
1,000 |
53,964 |
123.89 |
$6,686 |
$823 |
|||||
|
2023 |
514,500 |
485,130 |
53,364 |
1,000 |
52,364 |
122.82 |
$6,431 |
$520 |
|||||
|
2022 |
471,000 |
471,000 |
51,810 |
1,000 |
50,810 |
117.63 |
$5,977 |
$118 |
|||||
| Property Account Status/Adjustments/Exemptions | ||
|---|---|---|
| Account # | Exemption Description | Amount |
|
R120481180 |
5% Capped Account |
0 |
| Property Deed Transaction History (Recorded in the County Clerk's Office) | ||||||||||
|---|---|---|---|---|---|---|---|---|---|---|
| Date | Type | Book | Page | Price | Grantor | Grantee | ||||
|
2/21/2024 |
|
Deeds |
$690,000 |
MAREK KATHLEEN A |
DUFFY TYLER |
|||||
|
1/12/2021 |
|
Deeds |
$476,000 |
ASONG MERCY M |
MAREK KATHLEEN A |
|||||
|
11/13/2019 |
|
Deeds |
$450,000 |
UNDERWOOD GARY R |
ASONG MERCY M |
|||||
|
6/7/2013 |
|
Deeds |
$445,000 |
JOHNSON AARON D |
UNDERWOOD GARY R |
|||||
|
11/5/2007 |
|
Deeds |
$390,000 |
BECERRA RAY V & SHERAL B |
JOHNSON AARON D |
|||||
| Last Mailed Notice of Value (N.O.V.) Information/History | ||||||||
|---|---|---|---|---|---|---|---|---|
| Year | Date | Market Value | Taxable Market Value | Gross Assessed | Exemption | Net Assessed | ||
|
2026 |
02/23/2026 |
657,500 |
657,500 |
72,325 |
0 |
72,325 |
||
|
2025 |
02/14/2025 |
646,500 |
646,500 |
71,115 |
0 |
71,115 |
||
|
2024 |
02/13/2024 |
551,000 |
499,683 |
54,964 |
1,000 |
53,964 |
||
|
2024 |
04/05/2024 |
551,000 |
499,683 |
54,964 |
1,000 |
53,964 |
||
|
2023 |
02/14/2023 |
514,500 |
485,130 |
53,364 |
1,000 |
52,364 |
||
| Property Building Permit History | |||||||||||
|---|---|---|---|---|---|---|---|---|---|---|---|
| Issued | Permit # | Provided by | Bldg # | Description | Est Construction Cost | Status | |||||
| No Building Permit records returned. | |||||||||||
| Click button on building number to access detailed information: | ||||||
|---|---|---|---|---|---|---|
| Bldg # | Vacant/Improved Land | Bldg Description | Year Built | SqFt | # Stories | |
|
1 |
Improved |
1½ Story Fin |
1982 |
4,003 |
1.5 Stories |
|