|
|
|
| Larry Stein Oklahoma County Assessor (405) 713-1200 - Public Access System |
|
|
|
|
|
|
| Real Property Display - Screen Produced 4/1/2026 12:12:04 PM | ||||
|---|---|---|---|---|
| Account: R101462150 | Type: Residential | Location: |
3036 ROCK RIDGE PL |
|
| Building Name/Occupant: |
|
OKLAHOMA CITY |
||
| Owner Name 1: | OWEN ANTHONY |
Parcel PIN#: |
3894-10-146-2150 |
|
| Owner Name 2: | OWEN ALEXANDRA | 1/4 section #: |
3894 |
|
| Owner Name 3: | Parent Acct: |
|
||
| Billing Address: | 3036 ROCK RIDGE PL | Tax District: |
|
|
| City, State, Zip | OKLAHOMA CITY, OK 73120-5714 | School System: |
Oklahoma City #89 |
|
|
Country: (If noted) |
Land Size: |
0.2674 Acres |
||
|
Land Value: 76,294 |
|
|||
|
Sect 24-T13N-R4W Qtr SE |
QUAIL CREEK SEC 27
Block
119
Lot
008
|
|||
| Full Legal Description: QUAIL CREEK SEC 27 119 008 |
| Photo & Sketch (if available) | Comp Sales (ordered by relevancy) |
|
||||||||||||||||||
|
||||||||||||||||||||
| Value History (*The County Treasurer 405-713-1300 posts & collects actual tax amounts. Contact information HERE) | |||||||||||||
|---|---|---|---|---|---|---|---|---|---|---|---|---|---|
| Year | Market Value | Taxable Mkt Value | Gross Assessed | Exemption | Net Assessed | Millage | Est. Tax | Tax Savings | |||||
|
2026 |
658,000 |
658,000 |
72,380 |
0 |
72,380 |
122.90 |
$8,896 |
$0 |
|||||
|
2025 |
443,000 |
284,183 |
31,259 |
1,000 |
30,259 |
122.90 |
$3,719 |
$2,270 |
|||||
|
2024 |
420,500 |
275,906 |
30,348 |
1,000 |
29,348 |
123.89 |
$3,636 |
$2,094 |
|||||
|
2023 |
385,000 |
267,870 |
29,465 |
1,000 |
28,465 |
122.82 |
$3,496 |
$1,705 |
|||||
|
2022 |
330,500 |
260,068 |
28,606 |
1,000 |
27,606 |
117.63 |
$3,247 |
$1,029 |
|||||
| Property Account Status/Adjustments/Exemptions | ||||||
|---|---|---|---|---|---|---|
| Account # | Exemption Description | Amount | ||||
| No adjustment/exemption records returned. | ||||||
| Property Deed Transaction History (Recorded in the County Clerk's Office) | ||||||||||
|---|---|---|---|---|---|---|---|---|---|---|
| Date | Type | Book | Page | Price | Grantor | Grantee | ||||
|
12/18/2025 |
|
Deeds |
$659,000 |
BEAVERS JESSICA S TRS |
OWEN ANTHONY |
|||||
|
3/12/2021 |
|
Deeds |
$0 |
BEAVERS BRYAN & JESSICA |
BEAVERS JESSICA S TRS |
|||||
|
11/29/2018 |
|
Deeds |
$228,000 |
SUMMERS MARILYN S TRS |
BEAVERS BRYAN & JESSICA |
|||||
|
1/14/2014 |
|
Deeds |
$0 |
SUMMERS MARILYN |
SUMMERS MARILYN S TRS |
|||||
|
1/11/2013 |
|
Deeds |
$0 |
SUMMERS HARDY & MARILYN |
SUMMERS MARILYN |
|||||
| Last Mailed Notice of Value (N.O.V.) Information/History | ||||||||
|---|---|---|---|---|---|---|---|---|
| Year | Date | Market Value | Taxable Market Value | Gross Assessed | Exemption | Net Assessed | ||
|
2026 |
02/23/2026 |
658,000 |
658,000 |
72,380 |
0 |
72,380 |
||
|
2025 |
02/14/2025 |
443,000 |
284,183 |
31,259 |
1,000 |
30,259 |
||
|
2024 |
02/13/2024 |
420,500 |
275,906 |
30,348 |
1,000 |
29,348 |
||
|
2023 |
02/14/2023 |
385,000 |
267,870 |
29,465 |
1,000 |
28,465 |
||
|
2022 |
03/15/2022 |
330,500 |
260,068 |
28,606 |
1,000 |
27,606 |
||
| Property Building Permit History | |||||||||||
|---|---|---|---|---|---|---|---|---|---|---|---|
| Issued | Permit # | Provided by | Bldg # | Description | Est Construction Cost | Status | |||||
| No Building Permit records returned. | |||||||||||
| Click button on building number to access detailed information: | ||||||
|---|---|---|---|---|---|---|
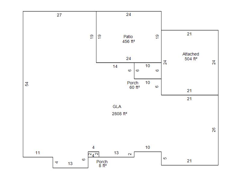
| Bldg # | Vacant/Improved Land | Bldg Description | Year Built | SqFt | # Stories | |
|
1 |
Improved |
Ranch 1 Story |
1974 |
2,808 |
1 Stories |
|