|
|
|
| Larry Stein Oklahoma County Assessor (405) 713-1200 - Public Access System |
|
|
|
|
|
|
| Real Property Display - Screen Produced 4/4/2026 5:16:50 PM | ||||
|---|---|---|---|---|
| Account: R106151120 | Type: Residential | Location: |
11218 BLUE SAGE RD |
|
| Building Name/Occupant: |
|
OKLAHOMA CITY |
||
| Owner Name 1: | FLOYD ROBERT |
Parcel PIN#: |
3894-10-615-1120 |
|
| Owner Name 2: | FLOYD MARLENE | 1/4 section #: |
3894 |
|
| Owner Name 3: | Parent Acct: |
|
||
| Billing Address: | 11218 BLUE SAGE RD | Tax District: |
|
|
| City, State, Zip | OKLAHOMA CITY, OK 73120 | School System: |
Oklahoma City #89 |
|
|
Country: (If noted) |
Land Size: |
0.2556 Acres |
||
|
Land Value: 72,941 |
|
|||
|
Sect 24-T13N-R4W Qtr SE |
QUAIL CREEK SEC 37
Block
121
Lot
011
|
|||
| Full Legal Description: QUAIL CREEK SEC 37 121 011 |
| Photo & Sketch (if available) | Comp Sales (ordered by relevancy) |
|
||||||||||||||||||
|
||||||||||||||||||||
| Value History (*The County Treasurer 405-713-1300 posts & collects actual tax amounts. Contact information HERE) | |||||||||||||
|---|---|---|---|---|---|---|---|---|---|---|---|---|---|
| Year | Market Value | Taxable Mkt Value | Gross Assessed | Exemption | Net Assessed | Millage | Est. Tax | Tax Savings | |||||
|
2026 |
551,500 |
551,500 |
60,665 |
1,000 |
59,665 |
122.90 |
$7,333 |
$123 |
|||||
|
2025 |
545,500 |
535,600 |
58,916 |
1,000 |
57,916 |
122.90 |
$7,118 |
$257 |
|||||
|
2024 |
520,000 |
520,000 |
57,200 |
1,000 |
56,200 |
123.89 |
$6,963 |
$124 |
|||||
|
2023 |
496,000 |
407,484 |
44,822 |
0 |
44,822 |
122.82 |
$5,505 |
$1,196 |
|||||
|
2022 |
413,000 |
388,080 |
42,688 |
0 |
42,688 |
117.63 |
$5,021 |
$322 |
|||||
| Property Account Status/Adjustments/Exemptions | ||
|---|---|---|
| Account # | Exemption Description | Amount |
|
R106151120 |
3% Cap Homestead |
0 |
|
R106151120 |
Homestead |
1,000 |
| Property Deed Transaction History (Recorded in the County Clerk's Office) | ||||||||||
|---|---|---|---|---|---|---|---|---|---|---|
| Date | Type | Book | Page | Price | Grantor | Grantee | ||||
|
7/19/2023 |
|
Deeds |
$468,000 |
HOGAN MICHAEL C |
FLOYD ROBERT |
|||||
|
12/3/2019 |
|
Deeds |
$365,000 |
HALLIBURTON REAL ESTATE SERVICES INC |
HOGAN MICHAEL C |
|||||
|
10/17/2019 |
|
Deeds |
$365,000 |
ROSS DAVID |
HALLIBURTON REAL ESTATE SERVICES INC |
|||||
|
2/23/2018 |
|
Deeds |
$389,500 |
BOWMAN ROBERT R & JUDITH L TRS |
ROSS DAVID |
|||||
|
2/25/2014 |
|
Deeds |
$0 |
BOWMAN ROBERT R & JUDITH P |
BOWMAN ROBERT R & JUDITH L TRS |
|||||
| Last Mailed Notice of Value (N.O.V.) Information/History | ||||||||
|---|---|---|---|---|---|---|---|---|
| Year | Date | Market Value | Taxable Market Value | Gross Assessed | Exemption | Net Assessed | ||
|
2026 |
02/23/2026 |
551,500 |
551,500 |
60,665 |
1,000 |
59,665 |
||
|
2025 |
02/14/2025 |
545,500 |
535,600 |
58,916 |
1,000 |
57,916 |
||
|
2024 |
02/13/2024 |
520,000 |
520,000 |
57,200 |
1,000 |
56,200 |
||
|
2023 |
02/14/2023 |
496,000 |
407,484 |
44,822 |
0 |
44,822 |
||
|
2022 |
03/15/2022 |
413,000 |
388,080 |
42,688 |
0 |
42,688 |
||
| Property Building Permit History | |||||||||||
|---|---|---|---|---|---|---|---|---|---|---|---|
| Issued | Permit # | Provided by | Bldg # | Description | Est Construction Cost | Status | |||||
| No Building Permit records returned. | |||||||||||
| Click button on building number to access detailed information: | ||||||
|---|---|---|---|---|---|---|
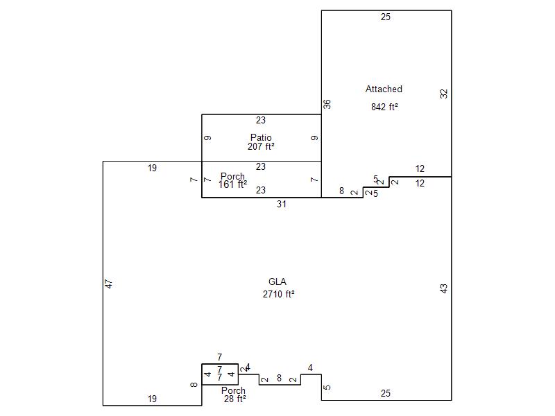
| Bldg # | Vacant/Improved Land | Bldg Description | Year Built | SqFt | # Stories | |
|
1 |
Improved |
Ranch 1 Story |
1977 |
2,710 |
1 Stories |
|