|
|
|
| Larry Stein Oklahoma County Assessor (405) 713-1200 - Public Access System |
|
|
|
|
|
|
| Real Property Display - Screen Produced 4/3/2026 5:39:42 AM | ||||
|---|---|---|---|---|
| Account: R179021045 | Type: Residential | Location: |
10405 MAJOR AVE |
|
| Building Name/Occupant: |
|
VILLAGE |
||
| Owner Name 1: | RABBITS BUNNY LLC |
Parcel PIN#: |
3897-17-902-1045 |
|
| Owner Name 2: | 1/4 section #: |
3897 |
||
| Owner Name 3: | Parent Acct: |
|
||
| Billing Address: | 2817 HUNTLEIGH DR | Tax District: |
|
|
| City, State, Zip | OKLAHOMA CITY, OK 73120-2807 | School System: |
Oklahoma City #89 |
|
|
Country: (If noted) |
Land Size: |
0.2457 Acres |
||
|
Land Value: 60,996 |
|
|||
|
Sect 25-T13N-R4W Qtr NE |
CASADY LAKESIDE EST 2ND
Block
007
Lot
005
|
|||
| Full Legal Description: CASADY LAKESIDE EST 2ND 007 005 |
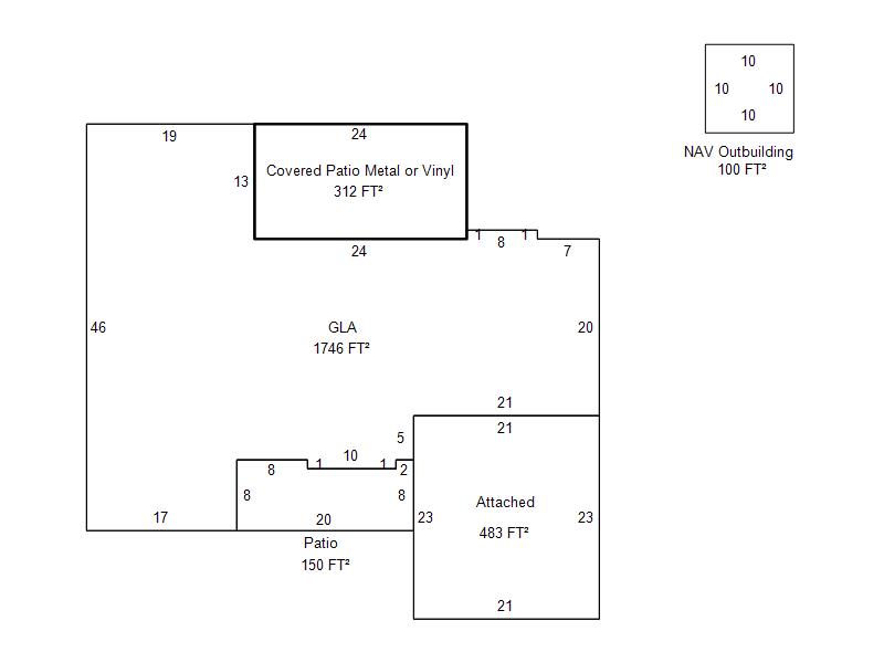
| Photo & Sketch (if available) | Comp Sales (ordered by relevancy) |
|
||||||||||||||||||
|
||||||||||||||||||||
| Value History (*The County Treasurer 405-713-1300 posts & collects actual tax amounts. Contact information HERE) | |||||||||||||
|---|---|---|---|---|---|---|---|---|---|---|---|---|---|
| Year | Market Value | Taxable Mkt Value | Gross Assessed | Exemption | Net Assessed | Millage | Est. Tax | Tax Savings | |||||
|
2026 |
247,000 |
247,000 |
27,170 |
0 |
27,170 |
122.45 |
$3,327 |
$0 |
|||||
|
2025 |
245,500 |
102,400 |
11,264 |
2,000 |
9,264 |
122.45 |
$1,134 |
$2,172 |
|||||
|
2024 |
245,000 |
102,400 |
11,264 |
2,000 |
9,264 |
124.97 |
$1,158 |
$2,210 |
|||||
|
2023 |
233,000 |
102,400 |
11,264 |
2,000 |
9,264 |
120.11 |
$1,113 |
$1,966 |
|||||
|
2022 |
182,000 |
102,400 |
11,264 |
2,000 |
9,264 |
115.25 |
$1,068 |
$1,240 |
|||||
| Property Account Status/Adjustments/Exemptions | ||||||
|---|---|---|---|---|---|---|
| Account # | Exemption Description | Amount | ||||
| No adjustment/exemption records returned. | ||||||
| Property Deed Transaction History (Recorded in the County Clerk's Office) | ||||||||||
|---|---|---|---|---|---|---|---|---|---|---|
| Date | Type | Book | Page | Price | Grantor | Grantee | ||||
|
12/19/2025 |
|
Deeds |
$250,000 |
RUFFIN OLGA |
RABBITS BUNNY LLC |
|||||
|
4/12/2017 |
|
Deeds |
$0 |
RUFFIN OLGA RUFFIN MARY RENE |
RUFFIN OLGA |
|||||
|
11/4/2003 |
|
Deeds |
$0 |
JENKINS OLGA RUFFIN RUFFIN MARY RENE |
RUFFIN OLGA RUFFIN MARY RENE |
|||||
|
2/20/2003 |
|
Deeds |
$0 |
JENKINS OLGA RUFFIN |
JENKINS OLGA RUFFIN RUFFIN MARY RENE |
|||||
|
2/10/2003 |
|
Deeds |
$102,500 |
SHEPHERD GEORGE H & SONDRA L |
JENKINS OLGA RUFFIN |
|||||
| Last Mailed Notice of Value (N.O.V.) Information/History | ||||||||
|---|---|---|---|---|---|---|---|---|
| Year | Date | Market Value | Taxable Market Value | Gross Assessed | Exemption | Net Assessed | ||
|
2026 |
02/23/2026 |
247,000 |
247,000 |
27,170 |
0 |
27,170 |
||
|
2025 |
02/14/2025 |
245,500 |
102,400 |
11,264 |
2,000 |
9,264 |
||
|
2024 |
02/13/2024 |
245,000 |
102,400 |
11,264 |
2,000 |
9,264 |
||
|
2023 |
02/14/2023 |
233,000 |
102,400 |
11,264 |
2,000 |
9,264 |
||
|
2022 |
03/15/2022 |
182,000 |
102,400 |
11,264 |
2,000 |
9,264 |
||
| Property Building Permit History | |||||||||||
|---|---|---|---|---|---|---|---|---|---|---|---|
| Issued | Permit # | Provided by | Bldg # | Description | Est Construction Cost | Status | |||||
| No Building Permit records returned. | |||||||||||
| Click button on building number to access detailed information: | ||||||
|---|---|---|---|---|---|---|
| Bldg # | Vacant/Improved Land | Bldg Description | Year Built | SqFt | # Stories | |
|
1 |
Improved |
Ranch 1 Story |
1961 |
1,746 |
1 Stories |
|