|
|
|
| Larry Stein Oklahoma County Assessor (405) 713-1200 - Public Access System |
|
|
|
|
|
|
| Real Property Display - Screen Produced 4/3/2026 1:44:48 AM | ||||
|---|---|---|---|---|
| Account: R178953625 | Type: Residential | Location: |
3025 CARLTON WAY |
|
| Building Name/Occupant: |
|
VILLAGE |
||
| Owner Name 1: | NAIFEH ANNISSA E 1999 IRREV TRUST |
Parcel PIN#: |
3898-17-895-3625 |
|
| Owner Name 2: | 1/4 section #: |
3898 |
||
| Owner Name 3: | Parent Acct: |
|
||
| Billing Address: | 3025 CARLTON WAY | Tax District: |
|
|
| City, State, Zip | THE VILLAGE, OK 73120 | School System: |
Oklahoma City #89 |
|
|
Country: (If noted) |
UNITED STATES |
Land Size: |
0.2736 Acres |
|
|
Land Value: 51,852 |
|
|||
|
Sect 25-T13N-R4W Qtr SE |
BURKE NORTHRIDGE MANOR
Block
011
Lot
016
|
|||
| Full Legal Description: BURKE NORTHRIDGE MANOR 011 016 |
| Photo & Sketch (if available) | Comp Sales (ordered by relevancy) |
|
||||||||||||||||||
|
||||||||||||||||||||
| Value History (*The County Treasurer 405-713-1300 posts & collects actual tax amounts. Contact information HERE) | |||||||||||||
|---|---|---|---|---|---|---|---|---|---|---|---|---|---|
| Year | Market Value | Taxable Mkt Value | Gross Assessed | Exemption | Net Assessed | Millage | Est. Tax | Tax Savings | |||||
|
2026 |
331,500 |
331,500 |
36,465 |
0 |
36,465 |
122.45 |
$4,465 |
$0 |
|||||
|
2025 |
327,500 |
327,500 |
36,025 |
0 |
36,025 |
122.45 |
$4,411 |
$0 |
|||||
|
2024 |
321,500 |
321,500 |
35,365 |
0 |
35,365 |
124.97 |
$4,420 |
$0 |
|||||
|
2023 |
312,000 |
248,613 |
27,347 |
0 |
27,347 |
120.11 |
$3,285 |
$837 |
|||||
|
2022 |
279,500 |
236,775 |
26,045 |
0 |
26,045 |
115.25 |
$3,002 |
$542 |
|||||
| Property Account Status/Adjustments/Exemptions | ||
|---|---|---|
| Account # | Exemption Description | Amount |
|
R178953625 |
5% Capped Account |
0 |
| Property Deed Transaction History (Recorded in the County Clerk's Office) | ||||||||||
|---|---|---|---|---|---|---|---|---|---|---|
| Date | Type | Book | Page | Price | Grantor | Grantee | ||||
|
7/28/2023 |
|
Deeds |
$350,000 |
STEINKIRCHNER SHELBY KATHLEEN |
NAIFEH ANNISSA E 1999 IRREV TRUST |
|||||
|
9/18/2017 |
|
Deeds |
$205,000 |
WILLIAMS CHARLOTTE R WILLIAMS STEPHANIE R |
STEINKIRCHNER SHELBY KATHLEEN |
|||||
|
2/27/2015 |
|
Deeds |
$200,000 |
RDC HOLDINGS LLC |
WILLIAMS CHARLOTTE R WILLIAMS STEPHANIE R |
|||||
|
5/16/2014 |
|
Deeds |
$98,000 |
THORSON LOWELL T |
RDC HOLDINGS LLC |
|||||
|
1/23/2014 |
|
Deeds |
$0 |
THORSON LOWELL T & REVONDA A |
THORSON LOWELL T |
|||||
| Last Mailed Notice of Value (N.O.V.) Information/History | ||||||||
|---|---|---|---|---|---|---|---|---|
| Year | Date | Market Value | Taxable Market Value | Gross Assessed | Exemption | Net Assessed | ||
|
2026 |
02/23/2026 |
331,500 |
331,500 |
36,465 |
0 |
36,465 |
||
|
2025 |
02/14/2025 |
327,500 |
327,500 |
36,025 |
0 |
36,025 |
||
|
2024 |
02/13/2024 |
321,500 |
321,500 |
35,365 |
0 |
35,365 |
||
|
2023 |
02/14/2023 |
312,000 |
248,613 |
27,347 |
0 |
27,347 |
||
|
2022 |
03/15/2022 |
279,500 |
236,775 |
26,045 |
0 |
26,045 |
||
| Property Building Permit History | |||||||||||
|---|---|---|---|---|---|---|---|---|---|---|---|
| Issued | Permit # | Provided by | Bldg # | Description | Est Construction Cost | Status | |||||
| No Building Permit records returned. | |||||||||||
| Click button on building number to access detailed information: | ||||||
|---|---|---|---|---|---|---|
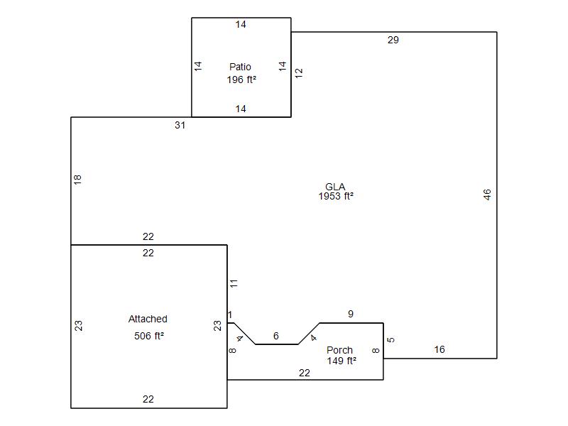
| Bldg # | Vacant/Improved Land | Bldg Description | Year Built | SqFt | # Stories | |
|
1 |
Improved |
Ranch 1 Story |
1960 |
1,953 |
1 Stories |
|