|
|
|
| Larry Stein Oklahoma County Assessor (405) 713-1200 - Public Access System |
|
|
|
|
|
|
| Real Property Display - Screen Produced 4/2/2026 12:41:43 AM | ||||
|---|---|---|---|---|
| Account: R171341820 | Type: Residential | Location: |
6505 ELK CANYON RD |
|
| Building Name/Occupant: |
|
OKLAHOMA CITY |
||
| Owner Name 1: | GREB BOBBY |
Parcel PIN#: |
3912-17-134-1820 |
|
| Owner Name 2: | 1/4 section #: |
3912 |
||
| Owner Name 3: | Parent Acct: |
|
||
| Billing Address: | 6505 ELK CANYON RD | Tax District: |
|
|
| City, State, Zip | OKLAHOMA CITY, OK 73162-6727 | School System: |
Putnam City #1 |
|
|
Country: (If noted) |
Land Size: |
0.1760 Acres |
||
|
Land Value: 34,493 |
|
|||
|
Sect 28-T13N-R4W Qtr NW |
CANYON NORTH SEC 5
Block
037
Lot
016
|
|||
| Full Legal Description: CANYON NORTH SEC 5 037 016 |
| Photo & Sketch (if available) | Comp Sales (ordered by relevancy) |
|
||||||||||||||||||
|
||||||||||||||||||||
| Value History (*The County Treasurer 405-713-1300 posts & collects actual tax amounts. Contact information HERE) | |||||||||||||
|---|---|---|---|---|---|---|---|---|---|---|---|---|---|
| Year | Market Value | Taxable Mkt Value | Gross Assessed | Exemption | Net Assessed | Millage | Est. Tax | Tax Savings | |||||
|
2026 |
214,500 |
214,500 |
23,595 |
0 |
23,595 |
123.17 |
$2,906 |
$0 |
|||||
|
2025 |
216,000 |
216,000 |
23,760 |
0 |
23,760 |
123.17 |
$2,927 |
$0 |
|||||
|
2024 |
207,000 |
181,109 |
19,921 |
0 |
19,921 |
122.30 |
$2,436 |
$348 |
|||||
|
2023 |
202,500 |
172,485 |
18,972 |
0 |
18,972 |
121.91 |
$2,313 |
$403 |
|||||
|
2022 |
173,000 |
164,272 |
18,069 |
0 |
18,069 |
123.41 |
$2,230 |
$118 |
|||||
| Property Account Status/Adjustments/Exemptions | ||
|---|---|---|
| Account # | Exemption Description | Amount |
|
R171341820 |
5% Capped Account |
0 |
| Property Deed Transaction History (Recorded in the County Clerk's Office) | ||||||||||
|---|---|---|---|---|---|---|---|---|---|---|
| Date | Type | Book | Page | Price | Grantor | Grantee | ||||
|
7/11/2024 |
|
Deeds |
$214,000 |
KNUDSEN JOSHUA & CHRISTA |
GREB BOBBY |
|||||
|
10/13/2017 |
|
Deeds |
$148,000 |
JONES JEREMIE & ELISSA E |
KNUDSEN JOSHUA & CHRISTA |
|||||
|
8/11/2014 |
|
Deeds |
$135,000 |
LAWSON NATHAN U & SHEILA |
JONES JEREMIE & ELISSA E |
|||||
|
10/5/2012 |
|
Deeds |
$0 |
LAWSON NATHAN U |
LAWSON NATHAN U & SHEILA |
|||||
|
9/26/2007 |
|
Deeds |
$0 |
LAWSON NATHAN U LAWSON NOBUKO |
LAWSON NATHAN U |
|||||
| Last Mailed Notice of Value (N.O.V.) Information/History | ||||||||
|---|---|---|---|---|---|---|---|---|
| Year | Date | Market Value | Taxable Market Value | Gross Assessed | Exemption | Net Assessed | ||
|
2025 |
02/14/2025 |
216,000 |
216,000 |
23,760 |
0 |
23,760 |
||
|
2024 |
02/13/2024 |
207,000 |
181,109 |
19,921 |
0 |
19,921 |
||
|
2023 |
02/14/2023 |
202,500 |
172,485 |
18,972 |
0 |
18,972 |
||
|
2022 |
03/15/2022 |
244,500 |
164,272 |
18,069 |
0 |
18,069 |
||
|
2021 |
03/19/2021 |
161,500 |
156,450 |
17,209 |
0 |
17,209 |
||
| Property Building Permit History | |||||||||||
|---|---|---|---|---|---|---|---|---|---|---|---|
| Issued | Permit # | Provided by | Bldg # | Description | Est Construction Cost | Status | |||||
| No Building Permit records returned. | |||||||||||
| Click button on building number to access detailed information: | ||||||
|---|---|---|---|---|---|---|
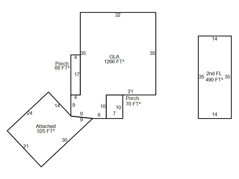
| Bldg # | Vacant/Improved Land | Bldg Description | Year Built | SqFt | # Stories | |
|
1 |
Improved |
1½ Story Fin |
1983 |
1,756 |
1.5 Stories |
|