|
|
|
| Larry Stein Oklahoma County Assessor (405) 713-1200 - Public Access System |
|
|
|
|
|
|
| Real Property Display - Screen Produced 4/2/2026 10:40:57 PM | ||||
|---|---|---|---|---|
| Account: R150107230 | Type: Residential | Location: |
707 W RICKENBACKER DR |
|
| Building Name/Occupant: |
|
MIDWEST CITY |
||
| Owner Name 1: | SHROYER REESE |
Parcel PIN#: |
1440-15-010-7230 |
|
| Owner Name 2: | HOOVER GARY | 1/4 section #: |
1440 |
|
| Owner Name 3: | Parent Acct: |
|
||
| Billing Address: | 707 W RICKENBACKER DR | Tax District: |
|
|
| City, State, Zip | MIDWEST CITY, OK 73110-5652 | School System: |
Mid-Del #52 |
|
|
Country: (If noted) |
Land Size: |
0.1722 Acres |
||
|
Land Value: 21,375 |
|
|||
|
Sect 10-T11N-R2W Qtr NW |
SPECKMAN HEIGHTS ADD
Block
020
Lot
024
|
|||
| Full Legal Description: SPECKMAN HEIGHTS ADD 020 024 |
| Photo & Sketch (if available) | Comp Sales (ordered by relevancy) |
|
||||||||||||||||||
|
||||||||||||||||||||
| Value History (*The County Treasurer 405-713-1300 posts & collects actual tax amounts. Contact information HERE) | |||||||||||||
|---|---|---|---|---|---|---|---|---|---|---|---|---|---|
| Year | Market Value | Taxable Mkt Value | Gross Assessed | Exemption | Net Assessed | Millage | Est. Tax | Tax Savings | |||||
|
2026 |
158,000 |
158,000 |
17,380 |
1,000 |
16,380 |
119.58 |
$1,959 |
$120 |
|||||
|
2025 |
162,000 |
162,000 |
17,820 |
1,000 |
16,820 |
119.58 |
$2,011 |
$120 |
|||||
|
2024 |
113,500 |
113,500 |
12,485 |
0 |
12,485 |
122.51 |
$1,530 |
$0 |
|||||
|
2023 |
98,000 |
79,297 |
8,722 |
0 |
8,722 |
117.71 |
$1,027 |
$242 |
|||||
|
2022 |
89,000 |
75,521 |
8,306 |
0 |
8,306 |
116.64 |
$969 |
$173 |
|||||
| Property Account Status/Adjustments/Exemptions | ||
|---|---|---|
| Account # | Exemption Description | Amount |
|
R150107230 |
3% Cap Homestead |
0 |
|
R150107230 |
Homestead |
1,000 |
| Property Deed Transaction History (Recorded in the County Clerk's Office) | ||||||||||
|---|---|---|---|---|---|---|---|---|---|---|
| Date | Type | Book | Page | Price | Grantor | Grantee | ||||
|
8/14/2024 |
|
Deeds |
$155,000 |
GRADY INVESTMENT & RENTAL PROPERTIES LLC |
SHROYER REESE |
|||||
|
1/17/2024 |
|
Deeds |
$115,000 |
JURASSIC HOLDINGS LLC |
GRADY INVESTMENT & RENTAL PROPERTIES LLC |
|||||
|
12/18/2023 |
|
Deeds |
$85,000 |
GNA PROPERTY MANAGEMENT LLC |
JURASSIC HOLDINGS LLC |
|||||
|
7/22/2016 |
|
Hmstd Off & |
$0 |
AYERS MISTY |
GNA PROPERTY MANAGEMENT LLC |
|||||
|
2/12/2016 |
|
Hmstd Off & |
$0 |
AYERS GARY NEIL & MISTY |
AYERS MISTY |
|||||
| Last Mailed Notice of Value (N.O.V.) Information/History | ||||||||
|---|---|---|---|---|---|---|---|---|
| Year | Date | Market Value | Taxable Market Value | Gross Assessed | Exemption | Net Assessed | ||
|
2025 |
01/31/2025 |
162,000 |
162,000 |
17,820 |
1,000 |
16,820 |
||
|
2024 |
01/22/2024 |
113,500 |
113,500 |
12,485 |
0 |
12,485 |
||
|
2024 |
03/01/2024 |
113,500 |
113,500 |
12,485 |
0 |
12,485 |
||
|
2023 |
01/23/2023 |
98,000 |
79,297 |
8,722 |
0 |
8,722 |
||
|
2022 |
02/22/2022 |
89,000 |
75,521 |
8,306 |
0 |
8,306 |
||
| Property Building Permit History | |||||||||||
|---|---|---|---|---|---|---|---|---|---|---|---|
| Issued | Permit # | Provided by | Bldg # | Description | Est Construction Cost | Status | |||||
| No Building Permit records returned. | |||||||||||
| Click button on building number to access detailed information: | ||||||
|---|---|---|---|---|---|---|
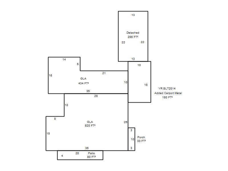
| Bldg # | Vacant/Improved Land | Bldg Description | Year Built | SqFt | # Stories | |
|
1 |
Improved |
Ranch 1 Story |
1947 |
1,254 |
1 Stories |
|