|
|
|
| Larry Stein Oklahoma County Assessor (405) 713-1200 - Public Access System |
|
|
|
|
|
|
| Real Property Display - Screen Produced 4/3/2026 4:57:37 AM | ||||
|---|---|---|---|---|
| Account: R107562760 | Type: Residential | Location: |
2932 DRAKESTONE AVE |
|
| Building Name/Occupant: |
|
OKLAHOMA CITY |
||
| Owner Name 1: | AMUNDSEN MAGUIRE |
Parcel PIN#: |
3942-10-756-2760 |
|
| Owner Name 2: | 1/4 section #: |
3942 |
||
| Owner Name 3: | Parent Acct: |
|
||
| Billing Address: | 2932 DRAKESTONE AVE | Tax District: |
|
|
| City, State, Zip | OKLAHOMA CITY, OK 73120-4310 | School System: |
Oklahoma City #89 |
|
|
Country: (If noted) |
Land Size: |
0.2755 Acres |
||
|
Land Value: 96,000 |
|
|||
|
Sect 36-T13N-R4W Qtr SE |
LAKEHURST
Block
011
Lot
005
|
|||
| Full Legal Description: LAKEHURST 011 005 |
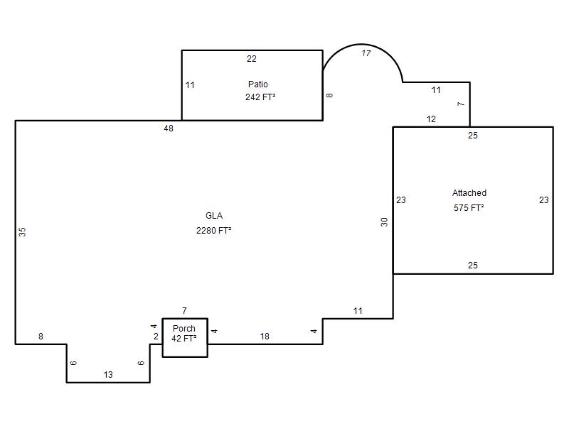
| Photo & Sketch (if available) | Comp Sales (ordered by relevancy) |
|
||||||||||||||||||
|
||||||||||||||||||||
| Value History (*The County Treasurer 405-713-1300 posts & collects actual tax amounts. Contact information HERE) | |||||||||||||
|---|---|---|---|---|---|---|---|---|---|---|---|---|---|
| Year | Market Value | Taxable Mkt Value | Gross Assessed | Exemption | Net Assessed | Millage | Est. Tax | Tax Savings | |||||
|
2026 |
502,500 |
502,500 |
55,275 |
0 |
55,275 |
122.90 |
$6,793 |
$0 |
|||||
|
2025 |
504,500 |
504,500 |
55,495 |
0 |
55,495 |
122.90 |
$6,820 |
$0 |
|||||
|
2024 |
480,500 |
387,737 |
42,650 |
1,000 |
41,650 |
123.89 |
$5,160 |
$1,388 |
|||||
|
2023 |
486,500 |
376,444 |
41,408 |
1,000 |
40,408 |
122.82 |
$4,963 |
$1,610 |
|||||
|
2022 |
400,500 |
365,480 |
40,201 |
1,000 |
39,201 |
117.63 |
$4,611 |
$571 |
|||||
| Property Account Status/Adjustments/Exemptions | ||
|---|---|---|
| Account # | Exemption Description | Amount |
|
R107562760 |
5% Capped Account |
0 |
| Property Deed Transaction History (Recorded in the County Clerk's Office) | ||||||||||
|---|---|---|---|---|---|---|---|---|---|---|
| Date | Type | Book | Page | Price | Grantor | Grantee | ||||
|
10/1/2024 |
|
Deeds |
$410,000 |
OCONNOR TIMOTHY T & MARGARET M TRS |
AMUNDSEN MAGUIRE |
|||||
|
1/29/2020 |
|
Deeds |
$0 |
OCONNOR TIMOTHY T & MARGARET M |
OCONNOR TIMOTHY T & MARGARET M TRS |
|||||
|
8/31/2012 |
|
Deeds |
$289,500 |
NEWCOMB ZELDA MAY |
OCONNOR TIMOTHY T & MARGARET M |
|||||
|
10/25/2007 |
|
Deeds |
$225,000 |
LE BLANC PAULA |
NEWCOMB ZELDA MAY |
|||||
|
8/11/2003 |
|
Hmstd Off & |
$0 |
BEADLES R THOMAS TRS TRIPLE L TRUST |
LE BLANC PAULA |
|||||
| Last Mailed Notice of Value (N.O.V.) Information/History | ||||||||
|---|---|---|---|---|---|---|---|---|
| Year | Date | Market Value | Taxable Market Value | Gross Assessed | Exemption | Net Assessed | ||
|
2025 |
03/28/2025 |
504,500 |
504,500 |
55,495 |
0 |
55,495 |
||
|
2024 |
02/13/2024 |
480,500 |
387,737 |
42,650 |
1,000 |
41,650 |
||
|
2023 |
02/14/2023 |
486,500 |
376,444 |
41,408 |
1,000 |
40,408 |
||
|
2022 |
03/15/2022 |
400,500 |
365,480 |
40,201 |
1,000 |
39,201 |
||
|
2021 |
03/19/2021 |
369,500 |
354,835 |
39,031 |
1,000 |
38,031 |
||
| Property Building Permit History | ||||||
|---|---|---|---|---|---|---|
| Issued | Permit # | Provided by | Bldg # | Description | Est Construction Cost | Status |
|
1/6/1995 |
10202747 |
OKLAHOMA CITY |
1 |
Remodeled |
45,000 |
Inactive |
| Click button on building number to access detailed information: | ||||||
|---|---|---|---|---|---|---|
| Bldg # | Vacant/Improved Land | Bldg Description | Year Built | SqFt | # Stories | |
|
1 |
Improved |
Ranch 1 Story |
1961 |
2,280 |
1 Stories |
|