|
|
|
| Larry Stein Oklahoma County Assessor (405) 713-1200 - Public Access System |
|
|
|
|
|
|
| Real Property Display - Screen Produced 4/5/2026 2:06:35 AM | ||||
|---|---|---|---|---|
| Account: R209241460 | Type: Residential | Location: |
5033 KELLY LAKES DR |
|
| Building Name/Occupant: |
|
EDMOND |
||
| Owner Name 1: | POLHILL BROCK A |
Parcel PIN#: |
4644-20-924-1460 |
|
| Owner Name 2: | POLHILL ANNIKA | 1/4 section #: |
4644 |
|
| Owner Name 3: | Parent Acct: |
4644-16-859-0195 |
||
| Billing Address: | 5033 KELLY LAKES DR | Tax District: |
|
|
| City, State, Zip | EDMOND, OK 73025 | School System: |
Edmond #12 |
|
|
Country: (If noted) |
UNITED STATES |
Land Size: |
0.2409 Acres |
|
|
Land Value: 59,804 |
|
|||
|
Sect 11-T14N-R3W Qtr NW |
KELLY LAKES ESTATES I
Block
005
Lot
013
|
|||
| Full Legal Description: KELLY LAKES ESTATES I 005 013 |
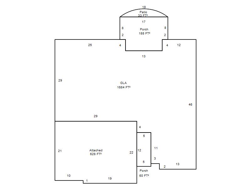
| Photo & Sketch (if available) | Comp Sales (ordered by relevancy) |
|
||||||||||||||||||
|
||||||||||||||||||||
| Value History (*The County Treasurer 405-713-1300 posts & collects actual tax amounts. Contact information HERE) | |||||||||||||
|---|---|---|---|---|---|---|---|---|---|---|---|---|---|
| Year | Market Value | Taxable Mkt Value | Gross Assessed | Exemption | Net Assessed | Millage | Est. Tax | Tax Savings | |||||
|
2026 |
340,500 |
340,500 |
37,455 |
1,000 |
36,455 |
105.16 |
$3,834 |
$105 |
|||||
|
2025 |
340,000 |
340,000 |
37,400 |
1,000 |
36,400 |
105.16 |
$3,828 |
$105 |
|||||
|
2024 |
336,000 |
262,254 |
28,847 |
1,000 |
27,847 |
105.03 |
$2,925 |
$957 |
|||||
|
2023 |
319,500 |
254,616 |
28,007 |
1,000 |
27,007 |
104.24 |
$2,815 |
$848 |
|||||
|
2022 |
282,500 |
247,200 |
27,192 |
1,000 |
26,192 |
104.64 |
$2,741 |
$511 |
|||||
| Property Account Status/Adjustments/Exemptions | ||
|---|---|---|
| Account # | Exemption Description | Amount |
|
R209241460 |
3% Cap Homestead |
0 |
|
R209241460 |
Homestead |
1,000 |
| Property Deed Transaction History (Recorded in the County Clerk's Office) | |||||||
|---|---|---|---|---|---|---|---|
| Date | Type | Book | Page | Price | Grantor | Grantee | |
|
4/10/2024 |
|
Deeds |
$315,000 |
TODD RICHARD E & KAREN S REV TRUST |
POLHILL BROCK A |
||
|
10/15/2013 |
|
Deeds |
$208,000 |
TABER BUILT HOMES LLC |
TODD RICHARD E & KAREN S REV TRUST |
||
|
4/8/2013 |
|
Deeds |
$38,000 |
KELLY LAKES DEVELOPMENT LLC |
TABER BUILT HOMES LLC |
||
| Last Mailed Notice of Value (N.O.V.) Information/History | ||||||||
|---|---|---|---|---|---|---|---|---|
| Year | Date | Market Value | Taxable Market Value | Gross Assessed | Exemption | Net Assessed | ||
|
2026 |
02/06/2026 |
340,500 |
340,500 |
37,455 |
1,000 |
36,455 |
||
|
2025 |
01/31/2025 |
340,000 |
340,000 |
37,400 |
0 |
37,400 |
||
|
2024 |
01/22/2024 |
336,000 |
262,254 |
28,847 |
1,000 |
27,847 |
||
|
2023 |
01/23/2023 |
319,500 |
254,616 |
28,007 |
1,000 |
27,007 |
||
|
2022 |
02/22/2022 |
282,500 |
247,200 |
27,192 |
1,000 |
26,192 |
||
| Property Building Permit History | ||||||
|---|---|---|---|---|---|---|
| Issued | Permit # | Provided by | Bldg # | Description | Est Construction Cost | Status |
|
5/22/2013 |
10451558 |
EDMOND |
1 |
Main Dwellin |
0 |
Inactive |
|
5/9/2013 |
10452680 |
EDMOND |
1 |
Main Dwellin |
207,990 |
Inactive |
| Click button on building number to access detailed information: | ||||||
|---|---|---|---|---|---|---|
| Bldg # | Vacant/Improved Land | Bldg Description | Year Built | SqFt | # Stories | |
|
1 |
Improved |
Ranch 1 Story |
2013 |
1,684 |
1 Stories |
|