|
|
|
| Larry Stein Oklahoma County Assessor (405) 713-1200 - Public Access System |
|
|
|
|
|
|
| Real Property Display - Screen Produced 4/4/2026 2:46:05 PM | ||||
|---|---|---|---|---|
| Account: R123631020 | Type: Residential | Location: |
900 WOODHOLLOW TRL |
|
| Building Name/Occupant: |
|
EDMOND |
||
| Owner Name 1: | WHEAT LIV TRUST |
Parcel PIN#: |
4709-12-363-1020 |
|
| Owner Name 2: | 1/4 section #: |
4709 |
||
| Owner Name 3: | Parent Acct: |
4709-12-911-1170 |
||
| Billing Address: | 900 WOODHOLLOW TRL | Tax District: |
|
|
| City, State, Zip | EDMOND, OK 73012-4325 | School System: |
Edmond #12 |
|
|
Country: (If noted) |
Land Size: |
0.4766 Acres |
||
|
Land Value: 92,382 |
|
|||
|
Sect 28-T14N-R3W Qtr NE |
THE TRAILS 8TH
Block
001
Lot
000
|
|||
| Full Legal Description: THE TRAILS 8TH 001 000 LOT 3 PLUS LOT 18 BLK 1 OF THE ORCHARDS AT THE TRAILS |
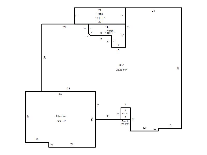
| Photo & Sketch (if available) | Comp Sales (ordered by relevancy) |
|
||||||||||||||||||
|
||||||||||||||||||||
| Value History (*The County Treasurer 405-713-1300 posts & collects actual tax amounts. Contact information HERE) | |||||||||||||
|---|---|---|---|---|---|---|---|---|---|---|---|---|---|
| Year | Market Value | Taxable Mkt Value | Gross Assessed | Exemption | Net Assessed | Millage | Est. Tax | Tax Savings | |||||
|
2026 |
355,500 |
355,500 |
39,105 |
1,000 |
38,105 |
105.16 |
$4,007 |
$105 |
|||||
|
2025 |
356,500 |
277,333 |
30,506 |
30,506 |
0 |
105.16 |
$0 |
$4,124 |
|||||
|
2024 |
348,500 |
269,256 |
29,617 |
29,617 |
0 |
105.03 |
$0 |
$4,026 |
|||||
|
2023 |
337,000 |
261,414 |
28,755 |
28,755 |
0 |
104.24 |
$0 |
$3,864 |
|||||
|
2022 |
294,500 |
253,800 |
27,917 |
27,917 |
0 |
104.64 |
$0 |
$3,390 |
|||||
| Property Account Status/Adjustments/Exemptions | ||
|---|---|---|
| Account # | Exemption Description | Amount |
|
R123631020 |
Freeze Senior Valuation |
0 |
|
R123631020 |
Homestead |
1,000 |
| Property Deed Transaction History (Recorded in the County Clerk's Office) | ||||||||||
|---|---|---|---|---|---|---|---|---|---|---|
| Date | Type | Book | Page | Price | Grantor | Grantee | ||||
|
12/30/2025 |
|
Deeds |
$345,000 |
DAVIS NATHAN DONALD & KIMBERLY ANN |
WHEAT LIV TRUST |
|||||
|
7/28/2017 |
|
Mult Parcel |
$239,500 |
NEWMAN ZACHARY G & RACHEL M |
DAVIS NATHAN DONALD & KIMBERLY ANN |
|||||
|
7/14/2009 |
|
Mult Parcel |
$200,000 |
MCCANN GAIL C TRS MCCANN GAIL C REV TRUST |
NEWMAN ZACHARY G & RACHEL M |
|||||
|
6/14/2000 |
|
Deeds |
$0 |
MCCANN KELLY F JR & GAIL C |
MCCANN GAIL C & KELLY F JR TRS MCCANN GAIL C REV TRUST |
|||||
|
12/19/1994 |
|
Historical |
$139,500 |
PROCAM CONSTRUCTION LLC |
MCCANN KELLY F JR & GAIL C |
|||||
| Last Mailed Notice of Value (N.O.V.) Information/History | ||||||||
|---|---|---|---|---|---|---|---|---|
| Year | Date | Market Value | Taxable Market Value | Gross Assessed | Exemption | Net Assessed | ||
|
2026 |
02/06/2026 |
355,500 |
355,500 |
39,105 |
0 |
39,105 |
||
|
2025 |
01/31/2025 |
356,500 |
277,333 |
30,506 |
30,506 |
0 |
||
|
2024 |
01/22/2024 |
348,500 |
269,256 |
29,617 |
29,617 |
0 |
||
|
2023 |
01/23/2023 |
337,000 |
261,414 |
28,755 |
28,755 |
0 |
||
|
2022 |
02/22/2022 |
294,500 |
253,800 |
27,917 |
27,917 |
0 |
||
| Property Building Permit History | ||||||
|---|---|---|---|---|---|---|
| Issued | Permit # | Provided by | Bldg # | Description | Est Construction Cost | Status |
|
5/1/1995 |
10210293 |
EDMOND |
1 |
Swimming Pool |
14,000 |
Inactive |
|
7/12/1994 |
10210292 |
EDMOND |
1 |
Main Dwellin |
110,000 |
Inactive |
| Click button on building number to access detailed information: | ||||||
|---|---|---|---|---|---|---|
| Bldg # | Vacant/Improved Land | Bldg Description | Year Built | SqFt | # Stories | |
|
1 |
Improved |
Ranch 1 Story |
1994 |
2,323 |
1 Stories |
|