|
|
|
| Larry Stein Oklahoma County Assessor (405) 713-1200 - Public Access System |
|
|
|
|
|
|
| Real Property Display - Screen Produced 4/1/2026 2:25:03 AM | ||||
|---|---|---|---|---|
| Account: R183231320 | Type: Residential | Location: |
2414 COUNTRYWOOD LN |
|
| Building Name/Occupant: |
|
EDMOND |
||
| Owner Name 1: | CHAVEZ CRISTIAN |
Parcel PIN#: |
4730-18-323-1320 |
|
| Owner Name 2: | 1/4 section #: |
4730 |
||
| Owner Name 3: | Parent Acct: |
|
||
| Billing Address: | 2414 COUNTRYWOOD LN | Tax District: |
|
|
| City, State, Zip | EDMOND, OK 73012 | School System: |
Edmond #12 |
|
|
Country: (If noted) |
Land Size: |
0.1671 Acres |
||
|
Land Value: 29,848 |
|
|||
|
Sect 33-T14N-R3W Qtr SE |
THE TRAILS SOUTH 1ST
Block
002
Lot
031
|
|||
| Full Legal Description: THE TRAILS SOUTH 1ST 002 031 |
| Photo & Sketch (if available) | Comp Sales (ordered by relevancy) |
|
||||||||||||||||||
|
||||||||||||||||||||
| Value History (*The County Treasurer 405-713-1300 posts & collects actual tax amounts. Contact information HERE) | |||||||||||||
|---|---|---|---|---|---|---|---|---|---|---|---|---|---|
| Year | Market Value | Taxable Mkt Value | Gross Assessed | Exemption | Net Assessed | Millage | Est. Tax | Tax Savings | |||||
|
2026 |
215,500 |
215,500 |
23,705 |
0 |
23,705 |
105.16 |
$2,493 |
$0 |
|||||
|
2025 |
212,500 |
212,500 |
23,375 |
0 |
23,375 |
105.16 |
$2,458 |
$0 |
|||||
|
2024 |
209,500 |
175,959 |
19,354 |
0 |
19,354 |
105.03 |
$2,033 |
$388 |
|||||
|
2023 |
199,000 |
167,580 |
18,433 |
0 |
18,433 |
104.24 |
$1,922 |
$360 |
|||||
|
2022 |
174,000 |
159,600 |
17,556 |
0 |
17,556 |
104.64 |
$1,837 |
$166 |
|||||
| Property Account Status/Adjustments/Exemptions | ||
|---|---|---|
| Account # | Exemption Description | Amount |
|
R183231320 |
5% Capped Account |
0 |
| Property Deed Transaction History (Recorded in the County Clerk's Office) | ||||||||||
|---|---|---|---|---|---|---|---|---|---|---|
| Date | Type | Book | Page | Price | Grantor | Grantee | ||||
|
8/23/2024 |
|
Deeds |
$225,000 |
HOPKINS CASSIE DENISE |
CHAVEZ CRISTIAN |
|||||
|
8/21/2024 |
|
Hmstd Off & |
$0 |
HOPKINS CASSIE D |
HOPKINS CASSIE DENISE |
|||||
|
3/12/2020 |
|
Deeds |
$157,000 |
REESER RENTALS LLC |
HOPKINS CASSIE D |
|||||
|
4/10/2015 |
|
Deeds |
$110,000 |
KERSH GEOFFREY J & BRITTANY E |
REESER RENTALS LLC |
|||||
|
3/30/2001 |
|
Deeds |
$80,000 |
WHITE DEBRA KAY |
KERSH GEOFFREY J & BRITTANY E |
|||||
| Last Mailed Notice of Value (N.O.V.) Information/History | ||||||||
|---|---|---|---|---|---|---|---|---|
| Year | Date | Market Value | Taxable Market Value | Gross Assessed | Exemption | Net Assessed | ||
|
2026 |
02/06/2026 |
215,500 |
215,500 |
23,705 |
0 |
23,705 |
||
|
2025 |
01/31/2025 |
212,500 |
212,500 |
23,375 |
0 |
23,375 |
||
|
2024 |
01/22/2024 |
209,500 |
175,959 |
19,354 |
0 |
19,354 |
||
|
2023 |
01/23/2023 |
199,000 |
167,580 |
18,433 |
0 |
18,433 |
||
|
2022 |
02/22/2022 |
174,000 |
159,600 |
17,556 |
0 |
17,556 |
||
| Property Building Permit History | ||||||
|---|---|---|---|---|---|---|
| Issued | Permit # | Provided by | Bldg # | Description | Est Construction Cost | Status |
|
11/21/1992 |
10258995 |
EDMOND |
1 |
Burn - Trip |
2,500 |
Inactive |
| Click button on building number to access detailed information: | ||||||
|---|---|---|---|---|---|---|
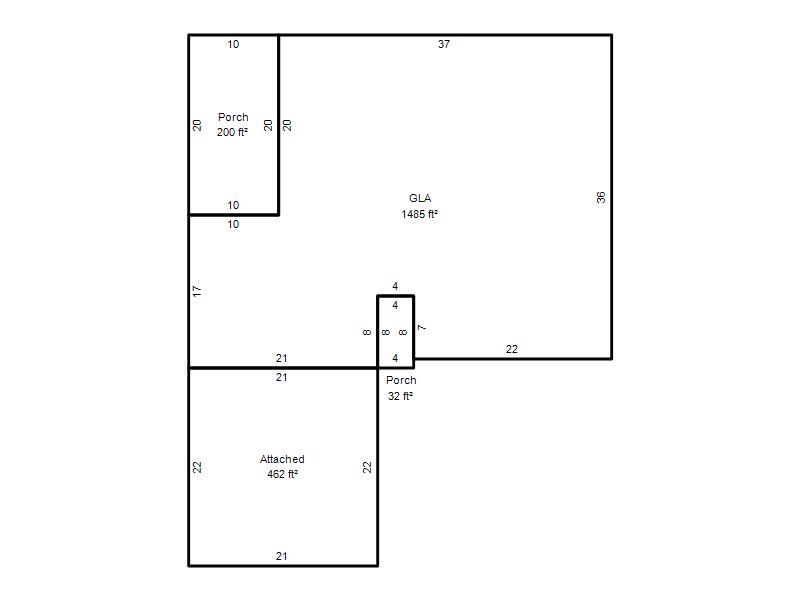
| Bldg # | Vacant/Improved Land | Bldg Description | Year Built | SqFt | # Stories | |
|
1 |
Improved |
Ranch 1 Story |
1980 |
1,485 |
1 Stories |
|