|
|
|
| Larry Stein Oklahoma County Assessor (405) 713-1200 - Public Access System |
|
|
|
|
|
|
| Real Property Display - Screen Produced 4/1/2026 3:36:17 PM | ||||
|---|---|---|---|---|
| Account: R120581130 | Type: Residential | Location: |
23125 BOBWHITE DR |
|
| Building Name/Occupant: |
|
UNINCORPORATED |
||
| Owner Name 1: | RASMUSSON VANESSA MARIE & SPENCER JAMES |
Parcel PIN#: |
4837-12-058-1130 |
|
| Owner Name 2: | 1/4 section #: |
4837 |
||
| Owner Name 3: | Parent Acct: |
|
||
| Billing Address: | 23125 BOB WHITE DR | Tax District: |
|
|
| City, State, Zip | EDMOND, OK 73025-9441 | School System: |
Deer Creek #6 |
|
|
Country: (If noted) |
Land Size: |
1.7500 Acres |
||
|
Land Value: 45,836 |
|
|||
|
Sect 10-T14N-R4W Qtr NE |
QUAIL RIDGE
Block
000
Lot
014
|
|||
| Full Legal Description: QUAIL RIDGE 000 014 |
| Photo & Sketch (if available) | Comp Sales (ordered by relevancy) |
|
||||||||||||||||||
|
||||||||||||||||||||
| Value History (*The County Treasurer 405-713-1300 posts & collects actual tax amounts. Contact information HERE) | |||||||||||||
|---|---|---|---|---|---|---|---|---|---|---|---|---|---|
| Year | Market Value | Taxable Mkt Value | Gross Assessed | Exemption | Net Assessed | Millage | Est. Tax | Tax Savings | |||||
|
2026 |
524,000 |
524,000 |
57,640 |
0 |
57,640 |
114.35 |
$6,591 |
$0 |
|||||
|
2025 |
524,000 |
524,000 |
57,640 |
0 |
57,640 |
114.35 |
$6,591 |
$0 |
|||||
|
2024 |
248,500 |
248,500 |
27,335 |
0 |
27,335 |
116.19 |
$3,176 |
$0 |
|||||
|
2023 |
236,000 |
194,917 |
21,439 |
0 |
21,439 |
116.77 |
$2,504 |
$528 |
|||||
|
2022 |
208,500 |
185,636 |
20,419 |
0 |
20,419 |
114.81 |
$2,344 |
$289 |
|||||
| Property Account Status/Adjustments/Exemptions | ||
|---|---|---|
| Account # | Exemption Description | Amount |
|
R120581130 |
5% Capped Account |
0 |
| Property Deed Transaction History (Recorded in the County Clerk's Office) | |||||||
|---|---|---|---|---|---|---|---|
| Date | Type | Book | Page | Price | Grantor | Grantee | |
|
5/16/2024 |
|
Deeds |
$525,000 |
BMG PROPERTIES LLC |
RASMUSSON VANESSA MARIE & SPENCER JAMES |
||
|
12/14/2023 |
|
Deeds |
$180,000 |
DVILA SHANNON DALE & CINDY MICHELLE |
BMG PROPERTIES LLC |
||
|
4/19/2013 |
|
Deeds |
$154,500 |
BENEDICT WILLIAM II & E A |
DVILA SHANNON DALE & CINDY MICHELLE |
||
|
2/10/1997 |
|
Historical |
$142,500 |
BENTSON NELS S & DONNA M |
BENEDICT WILLIAM II & E A |
||
|
9/1/1984 |
|
Historical |
$0 |
|
BENTSON NELS S & DONNA M |
||
| Last Mailed Notice of Value (N.O.V.) Information/History | ||||||||
|---|---|---|---|---|---|---|---|---|
| Year | Date | Market Value | Taxable Market Value | Gross Assessed | Exemption | Net Assessed | ||
|
2025 |
01/31/2025 |
524,000 |
524,000 |
57,640 |
0 |
57,640 |
||
|
2024 |
01/22/2024 |
248,500 |
248,500 |
27,335 |
0 |
27,335 |
||
|
2023 |
01/23/2023 |
236,000 |
194,917 |
21,439 |
0 |
21,439 |
||
|
2022 |
02/22/2022 |
208,500 |
185,636 |
20,419 |
0 |
20,419 |
||
|
2021 |
02/24/2021 |
181,000 |
176,797 |
19,447 |
0 |
19,447 |
||
| Property Building Permit History | |||||||||||
|---|---|---|---|---|---|---|---|---|---|---|---|
| Issued | Permit # | Provided by | Bldg # | Description | Est Construction Cost | Status | |||||
| No Building Permit records returned. | |||||||||||
| Click button on building number to access detailed information: | ||||||
|---|---|---|---|---|---|---|
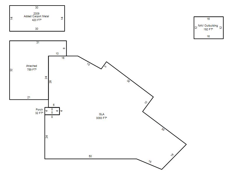
| Bldg # | Vacant/Improved Land | Bldg Description | Year Built | SqFt | # Stories | |
|
1 |
Improved |
Earth Sheltered |
1985 |
3,093 |
1 Stories |
|