|
|
|
| Larry Stein Oklahoma County Assessor (405) 713-1200 - Public Access System |
|
|
|
|
|
|
| Real Property Display - Screen Produced 4/1/2026 3:33:16 PM | ||||
|---|---|---|---|---|
| Account: R257183000 | Type: Residential | Location: |
21209 N BOGIE RD |
|
| Building Name/Occupant: |
|
UNINCORPORATED |
||
| Owner Name 1: | SNELL MATTHEW RYAN |
Parcel PIN#: |
4870-25-718-3000 |
|
| Owner Name 2: | SNELL HAILEY | 1/4 section #: |
4870 |
|
| Owner Name 3: | Parent Acct: |
|
||
| Billing Address: | 21209 BOGIE RD | Tax District: |
|
|
| City, State, Zip | EDMOND, OK 73012-9519 | School System: |
Deer Creek #6 |
|
|
Country: (If noted) |
Land Size: |
5.0300 Acres |
||
|
Land Value: 60,360 |
|
|||
|
Sect 18-T14N-R4W Qtr SE |
DEER CREEK TOWNSHIP
Block
000
Lot
000
|
|||
| Full Legal Description: DEER CREEK TOWNSHIP 000 000 PT SE4 SEC 18 14N 4W BEG 865.10FT E & 759FT S OF NW/C SE4 TH W865.97FT S253FT E866.25FT N253FT TO BEG AKA LOT 28 COUNCIL HEIGHTS NORTH UNREC SUBJ TO ESMTS OF RECORD |
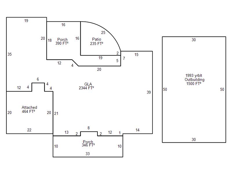
| Photo & Sketch (if available) | Comp Sales (ordered by relevancy) |
|
||||||||||||||||||
|
||||||||||||||||||||
| Value History (*The County Treasurer 405-713-1300 posts & collects actual tax amounts. Contact information HERE) | |||||||||||||
|---|---|---|---|---|---|---|---|---|---|---|---|---|---|
| Year | Market Value | Taxable Mkt Value | Gross Assessed | Exemption | Net Assessed | Millage | Est. Tax | Tax Savings | |||||
|
2026 |
633,500 |
633,500 |
69,685 |
0 |
69,685 |
114.35 |
$7,968 |
$0 |
|||||
|
2025 |
624,500 |
624,500 |
68,695 |
0 |
68,695 |
114.35 |
$7,855 |
$0 |
|||||
|
2024 |
621,000 |
621,000 |
68,310 |
0 |
68,310 |
116.19 |
$7,937 |
$0 |
|||||
|
2023 |
530,000 |
530,000 |
58,300 |
0 |
58,300 |
116.77 |
$6,808 |
$0 |
|||||
|
2022 |
453,000 |
321,331 |
35,345 |
1,000 |
34,345 |
114.81 |
$3,943 |
$1,778 |
|||||
| Property Account Status/Adjustments/Exemptions | ||
|---|---|---|
| Account # | Exemption Description | Amount |
|
R257183000 |
5% Capped Account |
0 |
| Property Deed Transaction History (Recorded in the County Clerk's Office) | ||||||||||
|---|---|---|---|---|---|---|---|---|---|---|
| Date | Type | Book | Page | Price | Grantor | Grantee | ||||
|
12/7/2023 |
|
Deeds |
$625,000 |
HISLE NATALIE |
SNELL MATTHEW RYAN |
|||||
|
4/5/2022 |
|
Mult Parcel |
$595,000 |
KNOX GORDON R & KATHRYN L |
HISLE NATALIE |
|||||
|
10/25/2002 |
|
Deeds |
$0 |
KNOX KATHRYN LEE & GORDON RAY |
KNOX GORDON R & KATHRYN L |
|||||
|
3/17/1999 |
|
Historical |
$0 |
JERLOW KATHRYN LEE |
KNOX KATHRYN LEE & GORDON RAY |
|||||
|
4/11/1994 |
|
Historical |
$0 |
NORTH COUNCIL DEVEL CORP |
JERLOW KATHRYN LEE |
|||||
| Last Mailed Notice of Value (N.O.V.) Information/History | ||||||||
|---|---|---|---|---|---|---|---|---|
| Year | Date | Market Value | Taxable Market Value | Gross Assessed | Exemption | Net Assessed | ||
|
2026 |
02/06/2026 |
633,500 |
633,500 |
69,685 |
0 |
69,685 |
||
|
2025 |
01/31/2025 |
624,500 |
624,500 |
68,695 |
0 |
68,695 |
||
|
2024 |
01/22/2024 |
621,000 |
621,000 |
68,310 |
0 |
68,310 |
||
|
2023 |
03/02/2023 |
530,000 |
530,000 |
58,300 |
0 |
58,300 |
||
|
2022 |
02/22/2022 |
453,000 |
321,331 |
35,345 |
1,000 |
34,345 |
||
| Property Building Permit History | ||||||
|---|---|---|---|---|---|---|
| Issued | Permit # | Provided by | Bldg # | Description | Est Construction Cost | Status |
|
9/8/2022 |
|
|
1 |
Remodeled |
|
Inactive |
|
9/8/2022 |
|
|
1 |
Swimming Pool |
|
Inactive |
|
12/22/1999 |
10277513 |
COUNTY |
1 |
Main Dwellin |
130,000 |
Inactive |
| Click button on building number to access detailed information: | ||||||
|---|---|---|---|---|---|---|
| Bldg # | Vacant/Improved Land | Bldg Description | Year Built | SqFt | # Stories | |
|
1 |
Improved |
Ranch 1 Story |
1999 |
2,344 |
1 Stories |
|