|
|
|
| Larry Stein Oklahoma County Assessor (405) 713-1200 - Public Access System |
|
|
|
|
|
|
| Real Property Display - Screen Produced 4/2/2026 1:50:49 AM | ||||
|---|---|---|---|---|
| Account: R210841260 | Type: Residential | Location: |
15612 BLUE JAY DR |
|
| Building Name/Occupant: |
|
OKLAHOMA CITY |
||
| Owner Name 1: | ORTEGA JOSE OMAR |
Parcel PIN#: |
3622-21-084-1260 |
|
| Owner Name 2: | ORTEGA ALICIA BROOKE | 1/4 section #: |
3622 |
|
| Owner Name 3: | Parent Acct: |
3622-16-851-1875 |
||
| Billing Address: | 15612 BLUE JAY DR | Tax District: |
|
|
| City, State, Zip | EDMOND, OK 73013-1074 | School System: |
Edmond #12 |
|
|
Country: (If noted) |
Land Size: |
0.2094 Acres |
||
|
Land Value: 49,600 |
|
|||
|
Sect 6-T13N-R3W Qtr SE |
ROBIN RIDGE SEC 3
Block
011
Lot
016
|
|||
| Full Legal Description: ROBIN RIDGE SEC 3 011 016 |
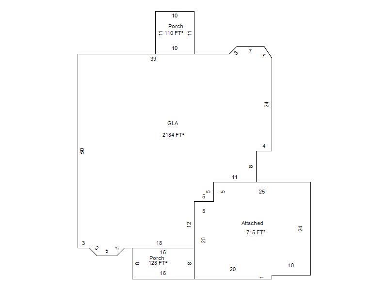
| Photo & Sketch (if available) | Comp Sales (ordered by relevancy) |
|
||||||||||||||||||
|
||||||||||||||||||||
| Value History (*The County Treasurer 405-713-1300 posts & collects actual tax amounts. Contact information HERE) | |||||||||||||
|---|---|---|---|---|---|---|---|---|---|---|---|---|---|
| Year | Market Value | Taxable Mkt Value | Gross Assessed | Exemption | Net Assessed | Millage | Est. Tax | Tax Savings | |||||
|
2026 |
330,000 |
330,000 |
36,300 |
0 |
36,300 |
120.32 |
$4,368 |
$0 |
|||||
|
2025 |
325,000 |
325,000 |
35,750 |
0 |
35,750 |
120.32 |
$4,301 |
$0 |
|||||
|
2024 |
318,000 |
318,000 |
34,980 |
0 |
34,980 |
119.96 |
$4,196 |
$0 |
|||||
|
2023 |
318,000 |
311,850 |
34,303 |
0 |
34,303 |
119.02 |
$4,083 |
$81 |
|||||
|
2022 |
297,000 |
297,000 |
32,670 |
0 |
32,670 |
120.10 |
$3,924 |
$0 |
|||||
| Property Account Status/Adjustments/Exemptions | ||
|---|---|---|
| Account # | Exemption Description | Amount |
|
R210841260 |
5% Capped Account |
0 |
| Property Deed Transaction History (Recorded in the County Clerk's Office) | ||||||||||
|---|---|---|---|---|---|---|---|---|---|---|
| Date | Type | Book | Page | Price | Grantor | Grantee | ||||
|
7/13/2023 |
|
Deeds |
$340,000 |
BIHLAJAMA MATTHEW & LEYINZCA |
ORTEGA JOSE OMAR |
|||||
|
8/25/2021 |
|
Deeds |
$300,000 |
LZ PROPERTY LLC |
BIHLAJAMA MATTHEW & LEYINZCA |
|||||
|
4/24/2021 |
|
Deeds |
$300,000 |
SCHEER CHRISTOPHER & KELLY |
LZ PROPERTY LLC |
|||||
|
9/1/2017 |
|
Deeds |
$235,000 |
ANWER SYED SHIRAZ JAFRI SHAJIYA |
SCHEER CHRISTOPHER & KELLY |
|||||
|
6/27/2013 |
|
Deeds |
$230,000 |
D R HORTON TEXAS LTD |
ANWER SYED SHIRAZ JAFRI SHAJIYA |
|||||
| Last Mailed Notice of Value (N.O.V.) Information/History | ||||||||
|---|---|---|---|---|---|---|---|---|
| Year | Date | Market Value | Taxable Market Value | Gross Assessed | Exemption | Net Assessed | ||
|
2026 |
02/23/2026 |
330,000 |
330,000 |
36,300 |
0 |
36,300 |
||
|
2025 |
02/14/2025 |
325,000 |
325,000 |
35,750 |
0 |
35,750 |
||
|
2024 |
02/13/2024 |
318,000 |
318,000 |
34,980 |
0 |
34,980 |
||
|
2023 |
02/14/2023 |
318,000 |
311,850 |
34,303 |
0 |
34,303 |
||
|
2022 |
03/15/2022 |
297,000 |
297,000 |
32,670 |
0 |
32,670 |
||
| Property Building Permit History | ||||||
|---|---|---|---|---|---|---|
| Issued | Permit # | Provided by | Bldg # | Description | Est Construction Cost | Status |
|
11/20/2012 |
10445797 |
OKLAHOMA CITY |
1 |
Main Dwellin |
207,990 |
Inactive |
| Click button on building number to access detailed information: | ||||||
|---|---|---|---|---|---|---|
| Bldg # | Vacant/Improved Land | Bldg Description | Year Built | SqFt | # Stories | |
|
1 |
Improved |
Ranch 1 Story |
2013 |
2,184 |
1 Stories |
|