|
|
|
| Larry Stein Oklahoma County Assessor (405) 713-1200 - Public Access System |
|
|
|
|
|
|
| Real Property Display - Screen Produced 4/2/2026 12:41:42 AM | ||||
|---|---|---|---|---|
| Account: R212271380 | Type: Residential | Location: |
8101 NW 105TH ST |
|
| Building Name/Occupant: |
|
OKLAHOMA CITY |
||
| Owner Name 1: | KIM ANN |
Parcel PIN#: |
3917-21-227-1380 |
|
| Owner Name 2: | LIU WEIJUN | 1/4 section #: |
3917 |
|
| Owner Name 3: | Parent Acct: |
3917-14-093-3457 |
||
| Billing Address: | 208 SW 166TH ST | Tax District: |
|
|
| City, State, Zip | OKLAHOMA CITY, OK 73170 | School System: |
Putnam City #1 |
|
|
Country: (If noted) |
Land Size: |
0.1586 Acres |
||
|
Land Value: 52,858 |
|
|||
|
Sect 30-T13N-R4W Qtr NE |
LAWSON FARMS
Block
004
Lot
015
|
|||
| Full Legal Description: LAWSON FARMS 004 015 |
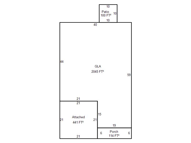
| Photo & Sketch (if available) | Comp Sales (ordered by relevancy) |
|
||||||||||||||||||
|
||||||||||||||||||||
| Value History (*The County Treasurer 405-713-1300 posts & collects actual tax amounts. Contact information HERE) | |||||||||||||
|---|---|---|---|---|---|---|---|---|---|---|---|---|---|
| Year | Market Value | Taxable Mkt Value | Gross Assessed | Exemption | Net Assessed | Millage | Est. Tax | Tax Savings | |||||
|
2026 |
275,500 |
275,500 |
30,305 |
0 |
30,305 |
123.17 |
$3,733 |
$0 |
|||||
|
2025 |
277,500 |
277,500 |
30,525 |
0 |
30,525 |
123.17 |
$3,760 |
$0 |
|||||
|
2024 |
276,500 |
276,500 |
30,415 |
0 |
30,415 |
122.30 |
$3,720 |
$0 |
|||||
|
2023 |
279,500 |
279,500 |
30,745 |
0 |
30,745 |
121.91 |
$3,748 |
$0 |
|||||
|
2022 |
220,000 |
216,300 |
23,793 |
0 |
23,793 |
123.41 |
$2,936 |
$50 |
|||||
| Property Account Status/Adjustments/Exemptions | ||
|---|---|---|
| Account # | Exemption Description | Amount |
|
R212271380 |
5% Capped Account |
0 |
| Property Deed Transaction History (Recorded in the County Clerk's Office) | ||||||||||
|---|---|---|---|---|---|---|---|---|---|---|
| Date | Type | Book | Page | Price | Grantor | Grantee | ||||
|
10/21/2024 |
|
Deeds |
$275,000 |
IPSUS LLC |
KIM ANN |
|||||
|
4/16/2024 |
|
Hmstd Off & |
$0 |
SPRING ROCK BRIDGE PROPERTY OWNER LLC |
IPSUS LLC |
|||||
|
8/8/2023 |
|
Hmstd Off & |
$0 |
ARBELA LLC |
SPRING ROCK BRIDGE PROPERTY OWNER LLC |
|||||
|
6/3/2022 |
|
Deeds |
$278,500 |
SIMON RYAN & ALYSON MAYS |
ARBELA LLC |
|||||
|
9/14/2020 |
|
Deeds |
$0 |
SIMON RYAN |
SIMON RYAN & ALYSON MAYS |
|||||
| Last Mailed Notice of Value (N.O.V.) Information/History | ||||||||
|---|---|---|---|---|---|---|---|---|
| Year | Date | Market Value | Taxable Market Value | Gross Assessed | Exemption | Net Assessed | ||
|
2025 |
02/14/2025 |
277,500 |
277,500 |
30,525 |
0 |
30,525 |
||
|
2023 |
02/14/2023 |
279,500 |
279,500 |
30,745 |
0 |
30,745 |
||
|
2022 |
03/15/2022 |
220,000 |
216,300 |
23,793 |
0 |
23,793 |
||
|
2021 |
03/19/2021 |
206,000 |
206,000 |
22,660 |
0 |
22,660 |
||
|
2019 |
04/02/2019 |
208,500 |
208,500 |
22,935 |
0 |
22,935 |
||
| Property Building Permit History | ||||||
|---|---|---|---|---|---|---|
| Issued | Permit # | Provided by | Bldg # | Description | Est Construction Cost | Status |
|
1/24/2014 |
10458158 |
OKLAHOMA CITY |
1 |
Main Dwellin |
114,190 |
Inactive |
| Click button on building number to access detailed information: | ||||||
|---|---|---|---|---|---|---|
| Bldg # | Vacant/Improved Land | Bldg Description | Year Built | SqFt | # Stories | |
|
1 |
Improved |
Ranch 1 Story |
2014 |
2,045 |
1 Stories |
|