|
|
|
| Larry Stein Oklahoma County Assessor (405) 713-1200 - Public Access System |
|
|
|
|
|
|
| Real Property Display - Screen Produced 4/2/2026 1:50:43 AM | ||||
|---|---|---|---|---|
| Account: R215201970 | Type: Residential | Location: |
7633 PERCHERON RD |
|
| Building Name/Occupant: |
|
OKLAHOMA CITY |
||
| Owner Name 1: | KIM THANG |
Parcel PIN#: |
2821-21-520-1970 |
|
| Owner Name 2: | CING CIANG | 1/4 section #: |
2821 |
|
| Owner Name 3: | Parent Acct: |
2821-16-854-1480 |
||
| Billing Address: | 7633 PERCHERON RD | Tax District: |
|
|
| City, State, Zip | OKLAHOMA CITY, OK 73132-0008 | School System: |
Putnam City #1 |
|
|
Country: (If noted) |
Land Size: |
0.1452 Acres |
||
|
Land Value: 41,113 |
|
|||
|
Sect 6-T12N-R4W Qtr NE |
KENNARD RANCH
Block
004
Lot
023
|
|||
| Full Legal Description: KENNARD RANCH 004 023 |
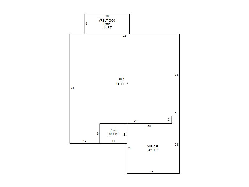
| Photo & Sketch (if available) | Comp Sales (ordered by relevancy) |
|
||||||||||||||||||
|
||||||||||||||||||||
| Value History (*The County Treasurer 405-713-1300 posts & collects actual tax amounts. Contact information HERE) | |||||||||||||
|---|---|---|---|---|---|---|---|---|---|---|---|---|---|
| Year | Market Value | Taxable Mkt Value | Gross Assessed | Exemption | Net Assessed | Millage | Est. Tax | Tax Savings | |||||
|
2026 |
250,000 |
250,000 |
27,500 |
0 |
27,500 |
123.17 |
$3,387 |
$0 |
|||||
|
2025 |
252,000 |
252,000 |
27,720 |
0 |
27,720 |
123.17 |
$3,414 |
$0 |
|||||
|
2024 |
256,000 |
206,635 |
22,729 |
0 |
22,729 |
122.30 |
$2,780 |
$664 |
|||||
|
2023 |
248,500 |
196,796 |
21,646 |
0 |
21,646 |
121.91 |
$2,639 |
$693 |
|||||
|
2022 |
200,000 |
187,425 |
20,616 |
0 |
20,616 |
123.41 |
$2,544 |
$171 |
|||||
| Property Account Status/Adjustments/Exemptions | ||
|---|---|---|
| Account # | Exemption Description | Amount |
|
R215201970 |
5% Capped Account |
0 |
| Property Deed Transaction History (Recorded in the County Clerk's Office) | |||||||
|---|---|---|---|---|---|---|---|
| Date | Type | Book | Page | Price | Grantor | Grantee | |
|
3/15/2024 |
|
Deeds |
$235,000 |
LEN RAU |
KIM THANG |
||
|
4/30/2019 |
|
Deeds |
$165,000 |
RAUSCH COLEMAN HOMES OKC LLC |
LEN RAU |
||
|
10/2/2018 |
|
Mult Parcel |
$1,590,000 |
SEDONA LAKES LLC |
RAUSCH COLEMAN HOMES OKC LLC |
||
| Last Mailed Notice of Value (N.O.V.) Information/History | ||||||||
|---|---|---|---|---|---|---|---|---|
| Year | Date | Market Value | Taxable Market Value | Gross Assessed | Exemption | Net Assessed | ||
|
2025 |
02/14/2025 |
252,000 |
252,000 |
27,720 |
0 |
27,720 |
||
|
2024 |
02/13/2024 |
256,000 |
206,635 |
22,729 |
0 |
22,729 |
||
|
2023 |
02/14/2023 |
248,500 |
196,796 |
21,646 |
0 |
21,646 |
||
|
2022 |
03/15/2022 |
200,000 |
187,425 |
20,616 |
0 |
20,616 |
||
|
2021 |
03/19/2021 |
178,500 |
178,500 |
19,635 |
0 |
19,635 |
||
| Property Building Permit History | ||||||
|---|---|---|---|---|---|---|
| Issued | Permit # | Provided by | Bldg # | Description | Est Construction Cost | Status |
|
11/28/2018 |
|
|
1 |
Main Dwellin |
|
Inactive |
| Click button on building number to access detailed information: | ||||||
|---|---|---|---|---|---|---|
| Bldg # | Vacant/Improved Land | Bldg Description | Year Built | SqFt | # Stories | |
|
1 |
Improved |
Ranch 1 Story |
2019 |
1,671 |
1 Stories |
|