|
|
|
| Larry Stein Oklahoma County Assessor (405) 713-1200 - Public Access System |
|
|
|
|
|
|
| Real Property Display - Screen Produced 4/2/2026 9:18:19 AM | ||||
|---|---|---|---|---|
| Account: R217621660 | Type: Residential | Location: |
1745 OSO AVE |
|
| Building Name/Occupant: |
|
OKLAHOMA CITY |
||
| Owner Name 1: | GRANT MARLA D |
Parcel PIN#: |
1629-21-762-1660 |
|
| Owner Name 2: | 1/4 section #: |
1629 |
||
| Owner Name 3: | Parent Acct: |
1629-13-184-1005 |
||
| Billing Address: | 32155 S 559 RD | Tax District: |
|
|
| City, State, Zip | COOKSON, OK 74427-1903 | School System: |
Oklahoma City #89 |
|
|
Country: (If noted) |
Land Size: |
0.0357 Acres |
||
|
Land Value: 44,911 |
|
|||
|
Sect 8-T11N-R3W Qtr NE |
WHEELER DISTRICT PH 2
Block
009
Lot
002
|
|||
| Full Legal Description: WHEELER DISTRICT PH 2 BLK 009 LOT 002 |
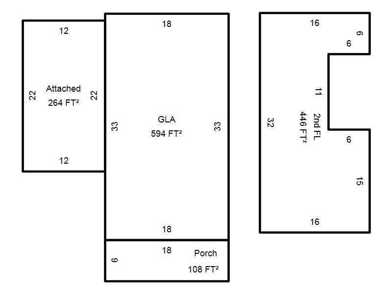
| Photo & Sketch (if available) | Comp Sales (ordered by relevancy) |
|
||||||||||||||||||
|
||||||||||||||||||||
| Value History (*The County Treasurer 405-713-1300 posts & collects actual tax amounts. Contact information HERE) | |||||||||||||
|---|---|---|---|---|---|---|---|---|---|---|---|---|---|
| Year | Market Value | Taxable Mkt Value | Gross Assessed | Exemption | Net Assessed | Millage | Est. Tax | Tax Savings | |||||
|
2026 |
437,500 |
437,500 |
48,125 |
0 |
48,125 |
119.02 |
$5,728 |
$0 |
|||||
|
2025 |
426,000 |
426,000 |
46,860 |
0 |
46,860 |
119.02 |
$5,577 |
$0 |
|||||
|
2024 |
443,000 |
429,975 |
47,297 |
0 |
47,297 |
119.70 |
$5,661 |
$172 |
|||||
|
2023 |
409,500 |
409,500 |
45,045 |
0 |
45,045 |
118.33 |
$5,330 |
$0 |
|||||
|
2022 |
20,295 |
20,295 |
2,232 |
0 |
2,232 |
112.69 |
$252 |
$0 |
|||||
| Property Account Status/Adjustments/Exemptions | ||||||
|---|---|---|---|---|---|---|
| Account # | Exemption Description | Amount | ||||
| No adjustment/exemption records returned. | ||||||
| Property Deed Transaction History (Recorded in the County Clerk's Office) | |||||||
|---|---|---|---|---|---|---|---|
| Date | Type | Book | Page | Price | Grantor | Grantee | |
|
1/23/2025 |
|
Deeds |
$400,000 |
CUMPTON JAMES DEAN SR |
GRANT MARLA D |
||
|
5/20/2024 |
|
Deeds |
$395,000 |
ARENT JACOB RYAN |
CUMPTON JAMES DEAN SR |
||
|
11/18/2022 |
|
Deeds |
$389,000 |
WHEELER HOME LLC |
ARENT JACOB RYAN |
||
|
2/7/2022 |
|
Deeds |
$46,000 |
WHEELER DISTRICT LLC |
WHEELER HOME LLC |
||
|
12/21/2017 |
|
Hmstd Off & |
$0 |
HUMPHREYS PARTNERS 2006 LLC |
HUMPHREYS PARTNERS 2006 LLC |
||
| Last Mailed Notice of Value (N.O.V.) Information/History | ||||||
|---|---|---|---|---|---|---|
| Year | Date | Market Value | Taxable Market Value | Gross Assessed | Exemption | Net Assessed |
|
2026 |
02/06/2026 |
437,500 |
437,500 |
48,125 |
0 |
48,125 |
|
2024 |
01/22/2024 |
443,000 |
429,975 |
47,297 |
0 |
47,297 |
|
2023 |
01/23/2023 |
409,500 |
409,500 |
45,045 |
0 |
45,045 |
|
2021 |
02/24/2021 |
20,295 |
20,295 |
2,232 |
0 |
2,232 |
| Property Building Permit History | ||||||
|---|---|---|---|---|---|---|
| Issued | Permit # | Provided by | Bldg # | Description | Est Construction Cost | Status |
|
5/16/2022 |
BLDR-2022-01308 |
|
|
Main Dwellin |
400,000 |
Inactive |
| Click button on building number to access detailed information: | ||||||
|---|---|---|---|---|---|---|
| Bldg # | Vacant/Improved Land | Bldg Description | Year Built | SqFt | # Stories | |
|
1 |
Improved |
2 Story |
2022 |
1,040 |
2 Stories |
|