|
|
|
| Larry Stein Oklahoma County Assessor (405) 713-1200 - Public Access System |
|
|
|
|
|
|
| Real Property Display - Screen Produced 4/7/2026 12:02:24 PM | ||||
|---|---|---|---|---|
| Account: R217791030 | Type: Residential | Location: |
752 HARBOR TOWN DR |
|
| Building Name/Occupant: |
|
EDMOND |
||
| Owner Name 1: | FARRIS BRANT & KELLY |
Parcel PIN#: |
4512-21-779-1030 |
|
| Owner Name 2: | 1/4 section #: |
4512 |
||
| Owner Name 3: | Parent Acct: |
4512-18-921-6030 |
||
| Billing Address: | 752 HARBOR TOWN DR | Tax District: |
|
|
| City, State, Zip | EDMOND, OK 73034-7532 | School System: |
Edmond #12 |
|
|
Country: (If noted) |
Land Size: |
0.0725 Acres |
||
|
Land Value: 29,518 |
|
|||
|
Sect 28-T14N-R2W Qtr NW |
BUNGALOW HEIGHTS SEC 1
Block
001
Lot
004
|
|||
| Full Legal Description: BUNGALOW HEIGHTS SEC 1 BLK 001 LOT 004 |
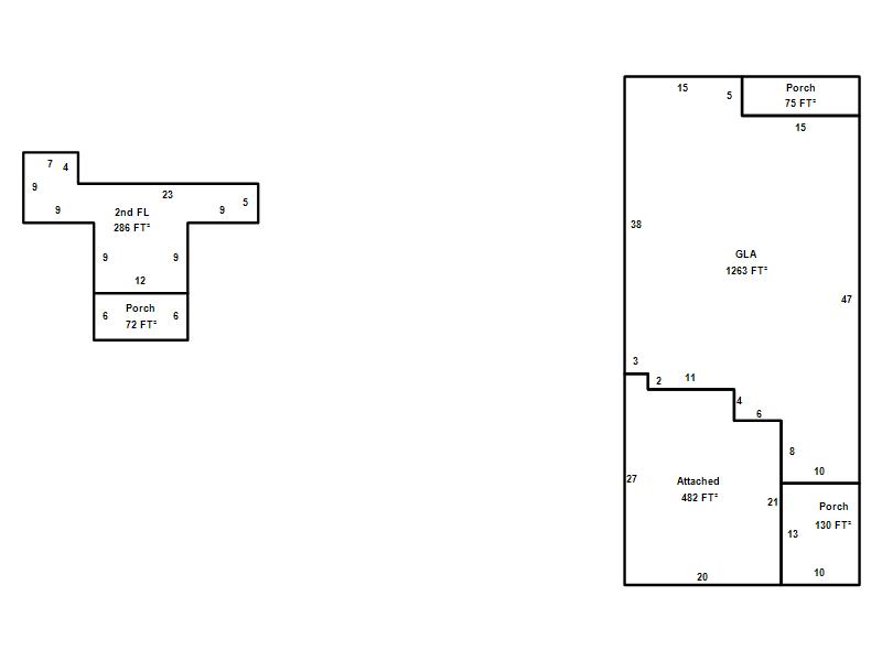
| Photo & Sketch (if available) | Comp Sales (ordered by relevancy) |
|
||||||||||||||||||
|
||||||||||||||||||||
| Value History (*The County Treasurer 405-713-1300 posts & collects actual tax amounts. Contact information HERE) | |||||||||||||
|---|---|---|---|---|---|---|---|---|---|---|---|---|---|
| Year | Market Value | Taxable Mkt Value | Gross Assessed | Exemption | Net Assessed | Millage | Est. Tax | Tax Savings | |||||
|
2026 |
385,000 |
385,000 |
42,350 |
1,000 |
41,350 |
105.16 |
$4,348 |
$105 |
|||||
|
2025 |
396,000 |
385,323 |
42,385 |
0 |
42,385 |
105.16 |
$4,457 |
$124 |
|||||
|
2024 |
393,500 |
366,975 |
40,367 |
0 |
40,367 |
105.03 |
$4,240 |
$306 |
|||||
|
2023 |
349,500 |
349,500 |
38,445 |
0 |
38,445 |
104.24 |
$4,008 |
$0 |
|||||
|
2022 |
17,069 |
17,069 |
1,877 |
0 |
1,877 |
104.64 |
$196 |
$0 |
|||||
| Property Account Status/Adjustments/Exemptions | ||
|---|---|---|
| Account # | Exemption Description | Amount |
|
R217791030 |
Homestead |
1,000 |
| Property Deed Transaction History (Recorded in the County Clerk's Office) | |||||||
|---|---|---|---|---|---|---|---|
| Date | Type | Book | Page | Price | Grantor | Grantee | |
|
10/23/2025 |
|
Deeds |
$376,000 |
MERKLIN ROXY ANN TRS |
FARRIS BRANT & KELLY |
||
|
4/20/2022 |
|
Deeds |
$334,000 |
MCCALEB HOMES INC |
MERKLIN ROXY ANN TRS |
||
|
11/20/2020 |
|
Deeds |
$53,000 |
RAPTOR DEVELOPMENT GROUP LLC |
MCCALEB HOMES INC |
||
|
1/17/2019 |
|
Deeds |
$1,413,000 |
SUMMIT PROPERTY DEVELOPMENT LLC |
RAPTOR DEVELOPMENT GROUP LLC |
||
| Last Mailed Notice of Value (N.O.V.) Information/History | ||||||
|---|---|---|---|---|---|---|
| Year | Date | Market Value | Taxable Market Value | Gross Assessed | Exemption | Net Assessed |
|
2025 |
01/31/2025 |
396,000 |
385,323 |
42,385 |
0 |
42,385 |
|
2024 |
01/22/2024 |
393,500 |
366,975 |
40,367 |
0 |
40,367 |
|
2023 |
01/23/2023 |
349,500 |
349,500 |
38,445 |
0 |
38,445 |
|
2021 |
02/24/2021 |
17,069 |
17,069 |
1,877 |
0 |
1,877 |
| Property Building Permit History | ||||||
|---|---|---|---|---|---|---|
| Issued | Permit # | Provided by | Bldg # | Description | Est Construction Cost | Status |
|
11/24/2021 |
|
|
|
Main Dwellin |
|
Inactive |
| Click button on building number to access detailed information: | ||||||
|---|---|---|---|---|---|---|
| Bldg # | Vacant/Improved Land | Bldg Description | Year Built | SqFt | # Stories | |
|
1 |
Improved |
Townhouse One half Story |
2021 |
1,549 |
1.5 Stories |
|