|
|
|
| Larry Stein Oklahoma County Assessor (405) 713-1200 - Public Access System |
|
|
|
|
|
|
| Real Property Display - Screen Produced 4/2/2026 9:02:28 AM | ||||
|---|---|---|---|---|
| Account: R217891220 | Type: Residential | Location: |
3200 WINDY HILL LN |
|
| Building Name/Occupant: |
|
EDMOND |
||
| Owner Name 1: | BRADY JEREMY & SHAINA |
Parcel PIN#: |
4468-21-789-1220 |
|
| Owner Name 2: | 1/4 section #: |
4468 |
||
| Owner Name 3: | Parent Acct: |
4468-16-863-1440 |
||
| Billing Address: | 3200 WINDY HILL LN | Tax District: |
|
|
| City, State, Zip | EDMOND, OK 73034-6192 | School System: |
Edmond #12 |
|
|
Country: (If noted) |
Land Size: |
0.2089 Acres |
||
|
Land Value: 121,030 |
|
|||
|
Sect 17-T14N-R2W Qtr NW |
STONE HILL AT IRON HORSE RANCH PH 1
Block
001
Lot
023
|
|||
| Full Legal Description: STONE HILL AT IRON HORSE RANCH PH 1 BLK 001 LOT 023 |
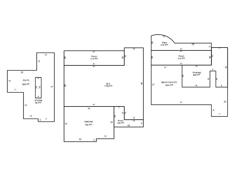
| Photo & Sketch (if available) | Comp Sales (ordered by relevancy) |
|
||||||||||||||||||
|
||||||||||||||||||||
| Value History (*The County Treasurer 405-713-1300 posts & collects actual tax amounts. Contact information HERE) | |||||||||||||
|---|---|---|---|---|---|---|---|---|---|---|---|---|---|
| Year | Market Value | Taxable Mkt Value | Gross Assessed | Exemption | Net Assessed | Millage | Est. Tax | Tax Savings | |||||
|
2026 |
989,000 |
989,000 |
108,790 |
0 |
108,790 |
105.16 |
$11,440 |
$0 |
|||||
|
2025 |
989,000 |
989,000 |
108,790 |
0 |
108,790 |
105.16 |
$11,440 |
$0 |
|||||
|
2024 |
989,000 |
989,000 |
108,790 |
0 |
108,790 |
105.03 |
$11,426 |
$0 |
|||||
|
2023 |
13,627 |
13,627 |
1,498 |
0 |
1,498 |
104.24 |
$156 |
$0 |
|||||
|
2022 |
13,627 |
13,627 |
1,498 |
0 |
1,498 |
104.64 |
$157 |
$0 |
|||||
| Property Account Status/Adjustments/Exemptions | ||
|---|---|---|
| Account # | Exemption Description | Amount |
|
R217891220 |
5% Capped Account |
0 |
| Property Deed Transaction History (Recorded in the County Clerk's Office) | |||||||
|---|---|---|---|---|---|---|---|
| Date | Type | Book | Page | Price | Grantor | Grantee | |
|
10/30/2023 |
|
Deeds |
$990,000 |
MASSAROSSA LUXURY HOMES LLC |
BRADY JEREMY & SHAINA |
||
|
4/14/2022 |
|
Deeds |
$110,000 |
IHRE LAND COMPANY LLC |
MASSAROSSA LUXURY HOMES LLC |
||
|
3/10/2014 |
|
Deeds |
$2,400,000 |
IHRE LAND COMPANY LLC |
IHRE LAND COMPANY LLC |
||
| Last Mailed Notice of Value (N.O.V.) Information/History | ||||||
|---|---|---|---|---|---|---|
| Year | Date | Market Value | Taxable Market Value | Gross Assessed | Exemption | Net Assessed |
|
2024 |
01/22/2024 |
989,000 |
989,000 |
108,790 |
0 |
108,790 |
|
2021 |
02/24/2021 |
13,627 |
13,627 |
1,498 |
0 |
1,498 |
| Property Building Permit History | ||||||
|---|---|---|---|---|---|---|
| Issued | Permit # | Provided by | Bldg # | Description | Est Construction Cost | Status |
|
6/1/2022 |
B22-00245 |
|
1 |
Main Dwellin |
790,000 |
Inactive |
| Click button on building number to access detailed information: | ||||||
|---|---|---|---|---|---|---|
| Bldg # | Vacant/Improved Land | Bldg Description | Year Built | SqFt | # Stories | |
|
1 |
Improved |
1½ Story Fin |
2022 |
2,753 |
1.5 Stories |
|