|
|
|
| Larry Stein Oklahoma County Assessor (405) 713-1200 - Public Access System |
|
|
|
|
|
|
| Real Property Display - Screen Produced 4/5/2026 6:02:52 PM | ||||
|---|---|---|---|---|
| Account: R218931380 | Type: Residential | Location: |
4509 MAPLE RIDGE DR |
|
| Building Name/Occupant: |
|
EDMOND |
||
| Owner Name 1: | KENT JOHN S IV |
Parcel PIN#: |
4442-21-893-1380 |
|
| Owner Name 2: | KENT JEANNIE L | 1/4 section #: |
4442 |
|
| Owner Name 3: | Parent Acct: |
4442-16-863-1315 |
||
| Billing Address: | 4509 MAPLE RIDGE DR | Tax District: |
|
|
| City, State, Zip | EDMOND, OK 73034-4382 | School System: |
Edmond #12 |
|
|
Country: (If noted) |
Land Size: |
0.2618 Acres |
||
|
Land Value: 97,504 |
|
|||
|
Sect 11-T14N-R2W Qtr SE |
RIDGE CREEK II
Block
008
Lot
014
|
|||
| Full Legal Description: RIDGE CREEK II BLK 008 LOT 014 |
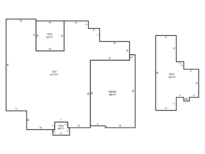
| Photo & Sketch (if available) | Comp Sales (ordered by relevancy) |
|
||||||||||||||||||
|
||||||||||||||||||||
| Value History (*The County Treasurer 405-713-1300 posts & collects actual tax amounts. Contact information HERE) | ||||||||
|---|---|---|---|---|---|---|---|---|
| Year | Market Value | Taxable Mkt Value | Gross Assessed | Exemption | Net Assessed | Millage | Est. Tax | Tax Savings |
|
2026 |
738,500 |
738,500 |
81,235 |
1,000 |
80,235 |
105.16 |
$8,438 |
$105 |
|
2025 |
10,578 |
10,578 |
1,163 |
0 |
1,163 |
105.16 |
$122 |
$0 |
|
2024 |
10,578 |
10,578 |
1,163 |
0 |
1,163 |
105.03 |
$122 |
$0 |
|
2023 |
10,578 |
10,578 |
1,163 |
0 |
1,163 |
104.24 |
$121 |
$0 |
| Property Account Status/Adjustments/Exemptions | ||
|---|---|---|
| Account # | Exemption Description | Amount |
|
R218931380 |
Homestead |
1,000 |
| Property Deed Transaction History (Recorded in the County Clerk's Office) | |||||||
|---|---|---|---|---|---|---|---|
| Date | Type | Book | Page | Price | Grantor | Grantee | |
|
2/10/2025 |
|
Deeds |
$739,500 |
COLDWATER CREEK HOMES LLC |
KENT JOHN S IV |
||
|
5/15/2024 |
|
Deeds |
$125,000 |
LIFETIME HOMES LLC |
COLDWATER CREEK HOMES LLC |
||
|
8/10/2022 |
|
Mult Parcel |
$570,000 |
STK DEVELOPMENTS LLC |
LIFETIME HOMES LLC |
||
|
6/28/2022 |
|
Hmstd Off & |
$0 |
STK FINANCIAL LLC |
STK DEVELOPMENTS LLC |
||
| Last Mailed Notice of Value (N.O.V.) Information/History | ||||||
|---|---|---|---|---|---|---|
| Year | Date | Market Value | Taxable Market Value | Gross Assessed | Exemption | Net Assessed |
|
2026 |
02/06/2026 |
738,500 |
738,500 |
81,235 |
0 |
81,235 |
|
2023 |
01/23/2023 |
10,578 |
10,578 |
1,163 |
0 |
1,163 |
| Property Building Permit History | ||||||
|---|---|---|---|---|---|---|
| Issued | Permit # | Provided by | Bldg # | Description | Est Construction Cost | Status |
|
7/24/2024 |
B24-00702 |
|
|
Main Dwellin |
560,000 |
Inactive |
| Click button on building number to access detailed information: | ||||||
|---|---|---|---|---|---|---|
| Bldg # | Vacant/Improved Land | Bldg Description | Year Built | SqFt | # Stories | |
|
1 |
Improved |
1½ Story Fin |
2024 |
3,119 |
1.5 Stories |
|