|
|
|
| Larry Stein Oklahoma County Assessor (405) 713-1200 - Public Access System |
|
|
|
|
|
|
| Real Property Display - Screen Produced 4/5/2026 12:38:40 AM | ||||
|---|---|---|---|---|
| Account: R218651180 | Type: Residential | Location: |
10505 CATTAIL TER |
|
| Building Name/Occupant: |
|
MIDWEST CITY |
||
| Owner Name 1: | HERRERA JOHN MICHAEL JR |
Parcel PIN#: |
1226-21-865-1180 |
|
| Owner Name 2: | 1/4 section #: |
1226 |
||
| Owner Name 3: | Parent Acct: |
1226-16-852-1450 |
||
| Billing Address: | 10505 CATTAIL TER | Tax District: |
|
|
| City, State, Zip | MIDWEST CITY, OK 73130 | School System: |
Choctaw #4 |
|
|
Country: (If noted) |
UNITED STATES |
Land Size: |
0.1742 Acres |
|
|
Land Value: 65,257 |
|
|||
|
Sect 7-T11N-R1W Qtr SE |
REPLAT ASPEN RIDGE SEC 3
Block
013
Lot
003
|
|||
| Full Legal Description: ASPEN RIDGE SEC 3 REPLT BLK 013 LOT 003 |
| Photo & Sketch (if available) | Comp Sales (ordered by relevancy) |
|
||||||||||||||||||
|
||||||||||||||||||||
| Value History (*The County Treasurer 405-713-1300 posts & collects actual tax amounts. Contact information HERE) | ||||||||
|---|---|---|---|---|---|---|---|---|
| Year | Market Value | Taxable Mkt Value | Gross Assessed | Exemption | Net Assessed | Millage | Est. Tax | Tax Savings |
|
2026 |
321,500 |
320,330 |
35,236 |
35,236 |
0 |
127.03 |
$0 |
$4,492 |
|
2025 |
311,000 |
311,000 |
34,210 |
34,210 |
0 |
127.03 |
$0 |
$4,346 |
|
2024 |
2,817 |
2,817 |
309 |
0 |
309 |
127.00 |
$39 |
$0 |
|
2023 |
2,817 |
2,817 |
309 |
0 |
309 |
128.50 |
$40 |
$0 |
| Property Account Status/Adjustments/Exemptions | ||
|---|---|---|
| Account # | Exemption Description | Amount |
|
R218651180 |
3% Cap Homestead |
0 |
|
R218651180 |
100% DAV Exemption |
100 |
|
R218651180 |
DAV Homestead |
0 |
| Property Deed Transaction History (Recorded in the County Clerk's Office) | |||||||
|---|---|---|---|---|---|---|---|
| Date | Type | Book | Page | Price | Grantor | Grantee | |
|
1/31/2024 |
|
Deeds |
$280,000 |
TURTLEWOOD PROPERTIES LLC |
HERRERA JOHN MICHAEL JR |
||
|
8/9/2022 |
|
Hmstd Off & |
$0 |
SAHZ INVESTMENT INC |
FARZANEH DEVELOPMENT LLLP |
||
|
5/14/2021 |
|
Hmstd Off & |
$0 |
FARZANEH DEVELOPMENT LLLP |
TURTLEWOOD PROPERTIES LLC |
||
| Last Mailed Notice of Value (N.O.V.) Information/History | ||||||
|---|---|---|---|---|---|---|
| Year | Date | Market Value | Taxable Market Value | Gross Assessed | Exemption | Net Assessed |
|
2026 |
02/06/2026 |
321,500 |
320,330 |
35,236 |
35,236 |
0 |
|
2025 |
01/31/2025 |
311,000 |
311,000 |
34,210 |
34,210 |
0 |
|
2023 |
01/23/2023 |
2,817 |
2,817 |
309 |
0 |
309 |
| Property Building Permit History | ||||||
|---|---|---|---|---|---|---|
| Issued | Permit # | Provided by | Bldg # | Description | Est Construction Cost | Status |
|
4/6/2023 |
B-23-0408 |
|
|
Main Dwellin |
216,500 |
Inactive |
| Click button on building number to access detailed information: | ||||||
|---|---|---|---|---|---|---|
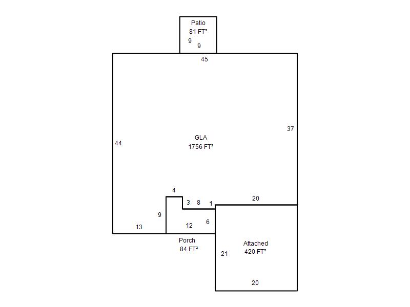
| Bldg # | Vacant/Improved Land | Bldg Description | Year Built | SqFt | # Stories | |
|
1 |
Improved |
Ranch 1 Story |
2023 |
1,756 |
1 Stories |
|