|
|
|
| Larry Stein Oklahoma County Assessor (405) 713-1200 - Public Access System |
|
|
|
|
|
|
| Real Property Display - Screen Produced 4/4/2026 2:25:32 PM | ||||
|---|---|---|---|---|
| Account: R142843270 | Type: Residential | Location: |
4613 SE 48TH ST |
|
| Building Name/Occupant: |
|
OKLAHOMA CITY |
||
| Owner Name 1: | LARSON TITUS & ALYSSE NOELLE |
Parcel PIN#: |
1480-14-284-3270 |
|
| Owner Name 2: | 1/4 section #: |
1480 |
||
| Owner Name 3: | Parent Acct: |
|
||
| Billing Address: | 4613 SE 48TH ST | Tax District: |
|
|
| City, State, Zip | OKLAHOMA CITY, OK 73135-3215 | School System: |
Mid-Del #52 |
|
|
Country: (If noted) |
Land Size: |
0.2030 Acres |
||
|
Land Value: 26,355 |
|
|||
|
Sect 20-T11N-R2W Qtr NW |
LEONHARDTS CHERRY HILL
Block
013
Lot
013
|
|||
| Full Legal Description: LEONHARDTS CHERRY HILL 013 013 |
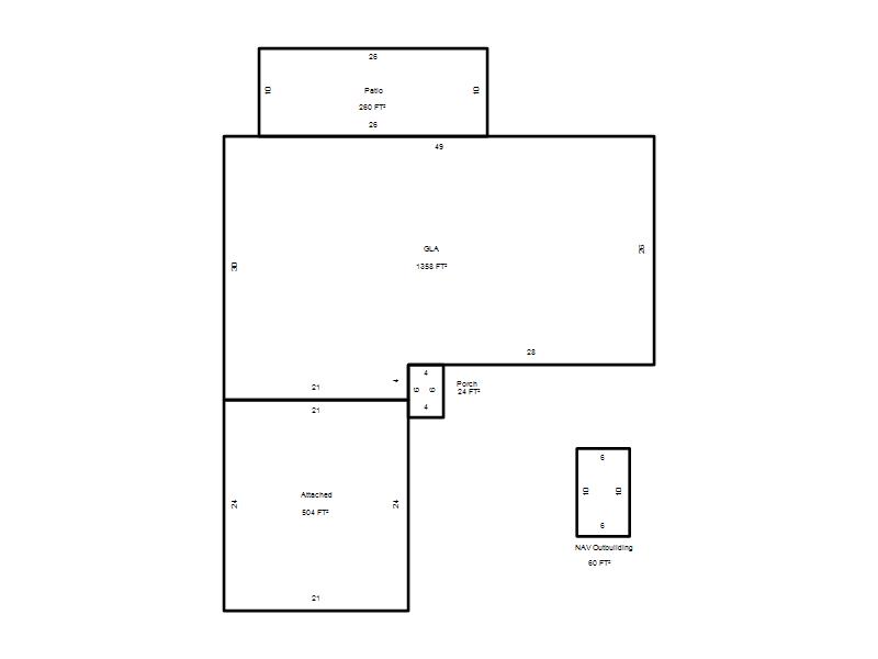
| Photo & Sketch (if available) | Comp Sales (ordered by relevancy) |
|
||||||||||||||||||
|
||||||||||||||||||||
| Value History (*The County Treasurer 405-713-1300 posts & collects actual tax amounts. Contact information HERE) | |||||||||||||
|---|---|---|---|---|---|---|---|---|---|---|---|---|---|
| Year | Market Value | Taxable Mkt Value | Gross Assessed | Exemption | Net Assessed | Millage | Est. Tax | Tax Savings | |||||
|
2026 |
165,500 |
165,500 |
18,205 |
0 |
18,205 |
126.46 |
$2,302 |
$0 |
|||||
|
2025 |
164,500 |
164,500 |
18,095 |
0 |
18,095 |
126.46 |
$2,288 |
$0 |
|||||
|
2024 |
151,500 |
108,048 |
11,885 |
1,000 |
10,885 |
128.51 |
$1,399 |
$743 |
|||||
|
2023 |
137,000 |
104,901 |
11,539 |
1,000 |
10,539 |
122.94 |
$1,296 |
$557 |
|||||
|
2022 |
124,500 |
101,846 |
11,202 |
1,000 |
10,202 |
122.11 |
$1,246 |
$426 |
|||||
| Property Account Status/Adjustments/Exemptions | ||||||
|---|---|---|---|---|---|---|
| Account # | Exemption Description | Amount | ||||
| No adjustment/exemption records returned. | ||||||
| Property Deed Transaction History (Recorded in the County Clerk's Office) | |||||||
|---|---|---|---|---|---|---|---|
| Date | Type | Book | Page | Price | Grantor | Grantee | |
|
6/17/2025 |
|
Deeds |
$178,000 |
MORTON JOANN K |
LARSON TITUS & ALYSSE NOELLE |
||
|
8/28/2024 |
|
Deeds |
$161,000 |
MORTON JOANN K |
OPENDOOR PROPERTY TRUST I |
||
|
8/24/2024 |
|
Deeds |
$0 |
MORTON WILLIAM W & JOANN K |
MORTON JOANN K |
||
|
4/1/1976 |
|
Historical |
$0 |
|
MORTON WILLIAM W & JOANN K |
||
| Last Mailed Notice of Value (N.O.V.) Information/History | ||||||||
|---|---|---|---|---|---|---|---|---|
| Year | Date | Market Value | Taxable Market Value | Gross Assessed | Exemption | Net Assessed | ||
|
2026 |
02/06/2026 |
165,500 |
165,500 |
18,205 |
0 |
18,205 |
||
|
2025 |
01/31/2025 |
164,500 |
164,500 |
18,095 |
0 |
18,095 |
||
|
2024 |
01/22/2024 |
151,500 |
108,048 |
11,885 |
1,000 |
10,885 |
||
|
2023 |
01/23/2023 |
137,000 |
104,901 |
11,539 |
1,000 |
10,539 |
||
|
2022 |
02/22/2022 |
124,500 |
101,846 |
11,202 |
1,000 |
10,202 |
||
| Property Building Permit History | |||||||||||
|---|---|---|---|---|---|---|---|---|---|---|---|
| Issued | Permit # | Provided by | Bldg # | Description | Est Construction Cost | Status | |||||
| No Building Permit records returned. | |||||||||||
| Click button on building number to access detailed information: | ||||||
|---|---|---|---|---|---|---|
| Bldg # | Vacant/Improved Land | Bldg Description | Year Built | SqFt | # Stories | |
|
1 |
Improved |
Ranch 1 Story |
1975 |
1,358 |
1 Stories |
|