|
|
|
| Larry Stein Oklahoma County Assessor (405) 713-1200 - Public Access System |
|
|
|
|
|
|
| Real Property Display - Screen Produced 4/7/2026 5:41:55 PM | ||||
|---|---|---|---|---|
| Account: R220101020 | Type: Residential | Location: |
729 MONTAUK WAY |
|
| Building Name/Occupant: |
|
EDMOND |
||
| Owner Name 1: | DEEP FORK PARK LLC |
Parcel PIN#: |
4512-22-010-1020 |
|
| Owner Name 2: | 1/4 section #: |
4512 |
||
| Owner Name 3: | Parent Acct: |
4512-18-921-6030 |
||
| Billing Address: | 809 E 33RD ST | Tax District: |
|
|
| City, State, Zip | EDMOND, OK 73013-5407 | School System: |
Edmond #12 |
|
|
Country: (If noted) |
Land Size: |
0.0520 Acres |
||
|
Land Value: 21,187 |
|
|||
|
Sect 28-T14N-R2W Qtr NW |
BUNGALOW HEIGHTS SEC 2
Block
011
Lot
003
|
|||
| Full Legal Description: BUNGALOW HEIGHTS SEC 2 BLK 011 LOT 003 |
| Photo & Sketch (if available) | Comp Sales (ordered by relevancy) |
|
||||||||||||||||||
|
||||||||||||||||||||
| Value History (*The County Treasurer 405-713-1300 posts & collects actual tax amounts. Contact information HERE) | ||||||||
|---|---|---|---|---|---|---|---|---|
| Year | Market Value | Taxable Mkt Value | Gross Assessed | Exemption | Net Assessed | Millage | Est. Tax | Tax Savings |
|
2026 |
353,500 |
353,500 |
38,885 |
1,000 |
37,885 |
105.16 |
$3,984 |
$105 |
|
2025 |
352,500 |
352,500 |
38,775 |
1,000 |
37,775 |
105.16 |
$3,972 |
$105 |
| Property Account Status/Adjustments/Exemptions | ||
|---|---|---|
| Account # | Exemption Description | Amount |
|
R220101020 |
3% Cap Homestead |
0 |
|
R220101020 |
Homestead |
1,000 |
| Property Deed Transaction History (Recorded in the County Clerk's Office) | |||||||
|---|---|---|---|---|---|---|---|
| Date | Type | Book | Page | Price | Grantor | Grantee | |
|
2/12/2026 |
|
Deeds |
$310,000 |
CASSELL FRANK & MELISSA |
DEEP FORK PARK LLC |
||
|
12/2/2024 |
|
Deeds |
$380,000 |
MCCALEB HOMES LLC |
CASSELL FRANK & MELISSA |
||
|
3/27/2024 |
|
Deeds |
$49,500 |
RAPTOR DEVELOPMENT GROUP LLC |
MCCALEB HOMES LLC |
||
|
1/17/2019 |
|
Deeds |
$1,413,000 |
SUMMIT PROPERTY DEVELOPMENT LLC |
RAPTOR DEVELOPMENT GROUP LLC |
||
| Last Mailed Notice of Value (N.O.V.) Information/History | ||||||
|---|---|---|---|---|---|---|
| Year | Date | Market Value | Taxable Market Value | Gross Assessed | Exemption | Net Assessed |
|
2026 |
02/06/2026 |
353,500 |
353,500 |
38,885 |
1,000 |
37,885 |
|
2026 |
03/30/2026 |
353,500 |
353,500 |
38,885 |
1,000 |
37,885 |
|
2025 |
03/28/2025 |
352,500 |
352,500 |
38,775 |
0 |
38,775 |
| Property Building Permit History | ||||||
|---|---|---|---|---|---|---|
| Issued | Permit # | Provided by | Bldg # | Description | Est Construction Cost | Status |
|
5/21/2024 |
B24-00414 |
|
|
Main Dwellin |
385,000 |
Inactive |
| Click button on building number to access detailed information: | ||||||
|---|---|---|---|---|---|---|
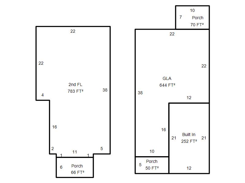
| Bldg # | Vacant/Improved Land | Bldg Description | Year Built | SqFt | # Stories | |
|
1 |
Improved |
Townhouse Multiple Story |
2024 |
1,427 |
2 Stories |
|