|
|
|
| Larry Stein Oklahoma County Assessor (405) 713-1200 - Public Access System |
|
|
|
|
|
|
| Real Property Display - Screen Produced 4/7/2026 5:41:55 PM | ||||
|---|---|---|---|---|
| Account: R220101160 | Type: Residential | Location: |
612 MONTAUK WAY |
|
| Building Name/Occupant: |
|
EDMOND |
||
| Owner Name 1: | PAWNEE SDI LAND COMPANY LLC |
Parcel PIN#: |
4512-22-010-1160 |
|
| Owner Name 2: | 1/4 section #: |
4512 |
||
| Owner Name 3: | Parent Acct: |
4512-18-921-6030 |
||
| Billing Address: | 336 ALVAR CIR | Tax District: |
|
|
| City, State, Zip | SAINT JOHNS, FL 32259-4002 | School System: |
Edmond #12 |
|
|
Country: (If noted) |
Land Size: |
0.0520 Acres |
||
|
Land Value: 21,187 |
|
|||
|
Sect 28-T14N-R2W Qtr NW |
BUNGALOW HEIGHTS SEC 2
Block
014
Lot
003
|
|||
| Full Legal Description: BUNGALOW HEIGHTS SEC 2 BLK 014 LOT 003 |
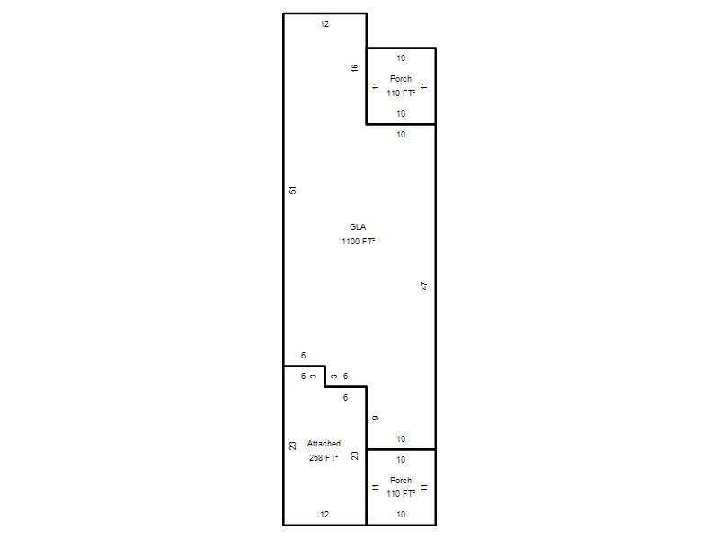
| Photo & Sketch (if available) | Comp Sales (ordered by relevancy) |
|
||||||||||||||||||
|
||||||||||||||||||||
| Value History (*The County Treasurer 405-713-1300 posts & collects actual tax amounts. Contact information HERE) | ||||||||
|---|---|---|---|---|---|---|---|---|
| Year | Market Value | Taxable Mkt Value | Gross Assessed | Exemption | Net Assessed | Millage | Est. Tax | Tax Savings |
|
2026 |
301,500 |
301,500 |
33,165 |
0 |
33,165 |
105.16 |
$3,488 |
$0 |
|
2025 |
8,040 |
8,040 |
884 |
0 |
884 |
105.16 |
$93 |
$0 |
| Property Account Status/Adjustments/Exemptions | ||||||
|---|---|---|---|---|---|---|
| Account # | Exemption Description | Amount | ||||
| No adjustment/exemption records returned. | ||||||
| Property Deed Transaction History (Recorded in the County Clerk's Office) | |||||||
|---|---|---|---|---|---|---|---|
| Date | Type | Book | Page | Price | Grantor | Grantee | |
|
5/20/2025 |
|
Deeds |
$314,000 |
MCCALEB HOMES LLC |
PAWNEE SDI LAND COMPANY LLC |
||
|
4/25/2024 |
|
Deeds |
$49,500 |
RAPTOR DEVELOPMENT GROUP LLC |
MCCALEB HOMES LLC |
||
|
1/17/2019 |
|
Deeds |
$1,413,000 |
SUMMIT PROPERTY DEVELOPMENT LLC |
RAPTOR DEVELOPMENT GROUP LLC |
||
| Last Mailed Notice of Value (N.O.V.) Information/History | ||||||
|---|---|---|---|---|---|---|
| Year | Date | Market Value | Taxable Market Value | Gross Assessed | Exemption | Net Assessed |
|
2026 |
02/06/2026 |
301,500 |
301,500 |
33,165 |
0 |
33,165 |
|
2025 |
03/28/2025 |
8,040 |
8,040 |
884 |
0 |
884 |
| Property Building Permit History | ||||||
|---|---|---|---|---|---|---|
| Issued | Permit # | Provided by | Bldg # | Description | Est Construction Cost | Status |
|
5/21/2024 |
B24-00467 |
|
|
Main Dwellin |
385,000 |
Inactive |
| Click button on building number to access detailed information: | ||||||
|---|---|---|---|---|---|---|
| Bldg # | Vacant/Improved Land | Bldg Description | Year Built | SqFt | # Stories | |
|
1 |
Improved |
Townhouse One Story |
2024 |
1,100 |
1 Stories |
|