|
|
|
| Larry Stein Oklahoma County Assessor (405) 713-1200 - Public Access System |
|
|
|
|
|
|
| Real Property Display - Screen Produced 4/5/2026 1:39:02 AM | ||||
|---|---|---|---|---|
| Account: R113418986 | Type: Residential | Location: |
2829 SW 52ND ST |
|
| Building Name/Occupant: |
|
OKLAHOMA CITY |
||
| Owner Name 1: | SIGNATURE PROPERTY GROUP LLC |
Parcel PIN#: |
1675-11-341-8986 |
|
| Owner Name 2: | 1/4 section #: |
1675 |
||
| Owner Name 3: | Parent Acct: |
|
||
| Billing Address: | 10828 WILD HORSE CREEK DR | Tax District: |
|
|
| City, State, Zip | YUKON, OK 73099-8293 | School System: |
Oklahoma City #89 |
|
|
Country: (If noted) |
Land Size: |
0.1488 Acres |
||
|
Land Value: 21,384 |
|
|||
|
Sect 19-T11N-R3W Qtr SW |
KNOB HILL ADDITION
Block
032
Lot
020
|
|||
| Full Legal Description: KNOB HILL ADDITION 032 020 |
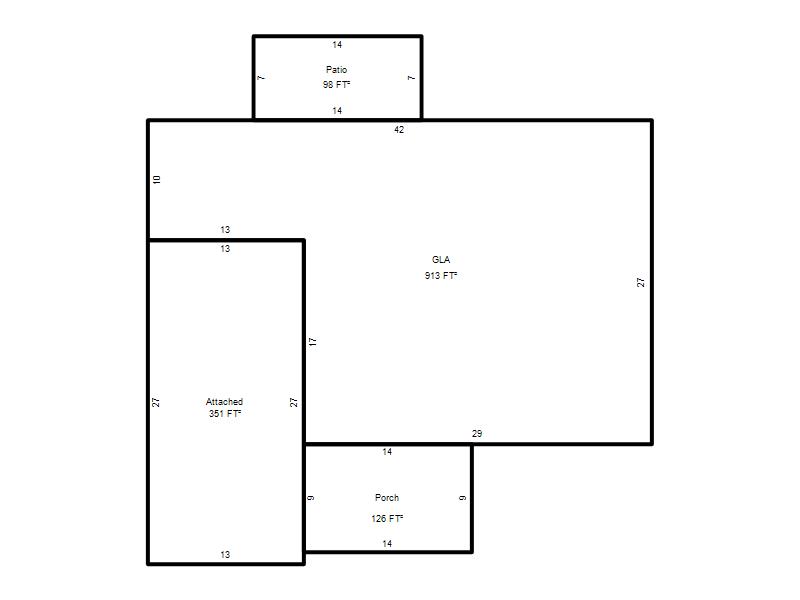
| Photo & Sketch (if available) | Comp Sales (ordered by relevancy) |
|
||||||||||||||||||
|
||||||||||||||||||||
| Value History (*The County Treasurer 405-713-1300 posts & collects actual tax amounts. Contact information HERE) | |||||||||||||
|---|---|---|---|---|---|---|---|---|---|---|---|---|---|
| Year | Market Value | Taxable Mkt Value | Gross Assessed | Exemption | Net Assessed | Millage | Est. Tax | Tax Savings | |||||
|
2026 |
98,000 |
98,000 |
10,780 |
0 |
10,780 |
119.02 |
$1,283 |
$0 |
|||||
|
2025 |
99,000 |
59,038 |
6,493 |
0 |
6,493 |
119.02 |
$773 |
$523 |
|||||
|
2024 |
93,500 |
56,227 |
6,184 |
0 |
6,184 |
119.70 |
$740 |
$491 |
|||||
|
2023 |
84,500 |
53,550 |
5,890 |
0 |
5,890 |
118.33 |
$697 |
$403 |
|||||
|
2022 |
51,000 |
51,000 |
5,610 |
0 |
5,610 |
112.69 |
$632 |
$0 |
|||||
| Property Account Status/Adjustments/Exemptions | ||||||
|---|---|---|---|---|---|---|
| Account # | Exemption Description | Amount | ||||
| No adjustment/exemption records returned. | ||||||
| Property Deed Transaction History (Recorded in the County Clerk's Office) | ||||||||||
|---|---|---|---|---|---|---|---|---|---|---|
| Date | Type | Book | Page | Price | Grantor | Grantee | ||||
|
8/20/2025 |
|
Deeds |
$100,000 |
AMG RENTALS II LLC 2829 SW 52ND STREET SERIES |
SIGNATURE PROPERTY GROUP LLC |
|||||
|
3/24/2021 |
|
Hmstd Off & |
$ |
AMG RENTALS LLC |
AMG RENTALS II LLC 2829 SW 52ND STREET SERIES |
|||||
|
11/18/2020 |
|
Deeds |
$49,000 |
TRACEY KIM E |
AMG RENTALS LLC |
|||||
|
3/20/2015 |
|
Deeds |
$0 |
TRACEY RONNIE JR & KIM ELIZABETH |
TRACEY KIM E |
|||||
|
5/29/2002 |
|
Deeds |
$0 |
ADAMS KIM ELIZABETH TRACEY RONNIE R JR |
TRACEY RONNIE JR & KIM ELIZABETH |
|||||
| Last Mailed Notice of Value (N.O.V.) Information/History | ||||||||
|---|---|---|---|---|---|---|---|---|
| Year | Date | Market Value | Taxable Market Value | Gross Assessed | Exemption | Net Assessed | ||
|
2026 |
02/06/2026 |
98,000 |
98,000 |
10,780 |
0 |
10,780 |
||
|
2025 |
01/31/2025 |
99,000 |
59,038 |
6,493 |
0 |
6,493 |
||
|
2024 |
01/22/2024 |
93,500 |
56,227 |
6,184 |
0 |
6,184 |
||
|
2023 |
01/23/2023 |
84,500 |
53,550 |
5,890 |
0 |
5,890 |
||
|
2019 |
02/26/2019 |
59,500 |
57,680 |
6,345 |
1,000 |
5,345 |
||
| Property Building Permit History | |||||||||||
|---|---|---|---|---|---|---|---|---|---|---|---|
| Issued | Permit # | Provided by | Bldg # | Description | Est Construction Cost | Status | |||||
| No Building Permit records returned. | |||||||||||
| Click button on building number to access detailed information: | ||||||
|---|---|---|---|---|---|---|
| Bldg # | Vacant/Improved Land | Bldg Description | Year Built | SqFt | # Stories | |
|
1 |
Improved |
Ranch 1 Story |
1956 |
913 |
1 Stories |
|