|
|
|
| Larry Stein Oklahoma County Assessor (405) 713-1200 - Public Access System |
|
|
|
|
|
|
| Real Property Display - Screen Produced 4/1/2026 8:51:13 PM | ||||
|---|---|---|---|---|
| Account: R113374725 | Type: Residential | Location: |
7125 S LINN AVE |
|
| Building Name/Occupant: |
|
OKLAHOMA CITY |
||
| Owner Name 1: | PONCE ARTEMIO |
Parcel PIN#: |
1719-11-337-4725 |
|
| Owner Name 2: | 1/4 section #: |
1719 |
||
| Owner Name 3: | Parent Acct: |
|
||
| Billing Address: | 7125 S LINN AVE | Tax District: |
|
|
| City, State, Zip | OKLAHOMA CITY, OK 73159-2715 | School System: |
Oklahoma City #89 |
|
|
Country: (If noted) |
Land Size: |
0.2784 Acres |
||
|
Land Value: 39,413 |
|
|||
|
Sect 30-T11N-R3W Qtr SW |
HILLCREST HEIGHTS ADD
Block
071
Lot
044
|
|||
| Full Legal Description: HILLCREST HEIGHTS ADD 071 044 |
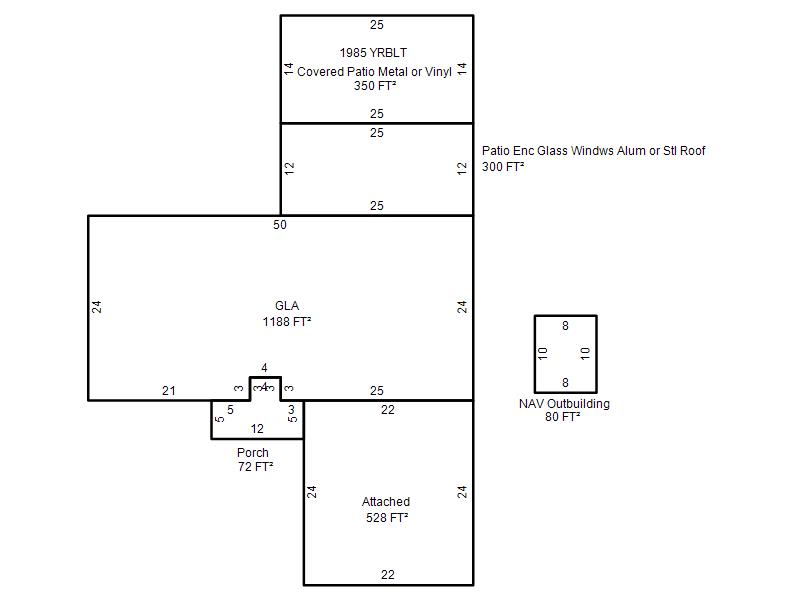
| Photo & Sketch (if available) | Comp Sales (ordered by relevancy) |
|
||||||||||||||||||
|
||||||||||||||||||||
| Value History (*The County Treasurer 405-713-1300 posts & collects actual tax amounts. Contact information HERE) | |||||||||||||
|---|---|---|---|---|---|---|---|---|---|---|---|---|---|
| Year | Market Value | Taxable Mkt Value | Gross Assessed | Exemption | Net Assessed | Millage | Est. Tax | Tax Savings | |||||
|
2026 |
168,500 |
168,500 |
18,535 |
0 |
18,535 |
119.02 |
$2,206 |
$0 |
|||||
|
2025 |
171,000 |
78,239 |
8,606 |
1,000 |
7,606 |
119.02 |
$905 |
$1,333 |
|||||
|
2024 |
163,500 |
78,239 |
8,606 |
1,000 |
7,606 |
119.70 |
$910 |
$1,242 |
|||||
|
2023 |
146,000 |
78,239 |
8,606 |
1,000 |
7,606 |
118.33 |
$900 |
$1,000 |
|||||
|
2022 |
132,000 |
78,239 |
8,606 |
1,000 |
7,606 |
112.69 |
$857 |
$779 |
|||||
| Property Account Status/Adjustments/Exemptions | ||||||
|---|---|---|---|---|---|---|
| Account # | Exemption Description | Amount | ||||
| No adjustment/exemption records returned. | ||||||
| Property Deed Transaction History (Recorded in the County Clerk's Office) | |||||||
|---|---|---|---|---|---|---|---|
| Date | Type | Book | Page | Price | Grantor | Grantee | |
|
11/25/2025 |
|
Deeds |
$185,000 |
GREENWAY BETTY B TRS |
PONCE ARTEMIO |
||
|
8/25/2010 |
|
Deeds |
$0 |
GREENWAY BETTY B |
GREENWAY BETTY B TRS |
||
|
8/11/2010 |
|
Deeds |
$0 |
GREENWAY RICHARD D & BETTY |
GREENWAY BETTY B |
||
|
11/11/1911 |
|
Historical |
$0 |
|
GREENWAY RICHARD D & BETTY |
||
| Last Mailed Notice of Value (N.O.V.) Information/History | ||||||||
|---|---|---|---|---|---|---|---|---|
| Year | Date | Market Value | Taxable Market Value | Gross Assessed | Exemption | Net Assessed | ||
|
2026 |
02/06/2026 |
168,500 |
168,500 |
18,535 |
0 |
18,535 |
||
|
2025 |
01/31/2025 |
171,000 |
78,239 |
8,606 |
1,000 |
7,606 |
||
|
2024 |
01/22/2024 |
163,500 |
78,239 |
8,606 |
1,000 |
7,606 |
||
|
2023 |
01/23/2023 |
146,000 |
78,239 |
8,606 |
1,000 |
7,606 |
||
|
2022 |
02/22/2022 |
132,000 |
78,239 |
8,606 |
1,000 |
7,606 |
||
| Property Building Permit History | ||||||
|---|---|---|---|---|---|---|
| Issued | Permit # | Provided by | Bldg # | Description | Est Construction Cost | Status |
|
4/2/1996 |
10204990 |
OKLAHOMA CITY |
1 |
Add On |
12,000 |
Inactive |
| Click button on building number to access detailed information: | ||||||
|---|---|---|---|---|---|---|
| Bldg # | Vacant/Improved Land | Bldg Description | Year Built | SqFt | # Stories | |
|
1 |
Improved |
Ranch 1 Story |
1964 |
1,188 |
1 Stories |
|