|
|
|
| Larry Stein Oklahoma County Assessor (405) 713-1200 - Public Access System |
|
|
|
|
|
|
| Real Property Display - Screen Produced 4/3/2026 6:00:15 AM | ||||
|---|---|---|---|---|
| Account: R192011180 | Type: Residential | Location: |
342 N PEEBLY RD |
|
| Building Name/Occupant: |
|
HARRAH |
||
| Owner Name 1: | LEVY DORIS D |
Parcel PIN#: |
2131-19-201-1180 |
|
| Owner Name 2: | BUSSEY RICHARD J II | 1/4 section #: |
2131 |
|
| Owner Name 3: | Parent Acct: |
|
||
| Billing Address: | 17700 SE 91ST ST | Tax District: |
|
|
| City, State, Zip | NEWALLA, OK 74857-8193 | School System: |
Choctaw #4 |
|
|
Country: (If noted) |
Land Size: |
1.7000 Acres |
||
|
Land Value: 55,080 |
|
|||
|
Sect 33-T12N-R1E Qtr SW |
BILLINGS RIDGEWOOD ESTATES
Block
001
Lot
019
|
|||
| Full Legal Description: BILLINGS RIDGEWOOD ESTATES 001 019 |
| Photo & Sketch (if available) | Comp Sales (ordered by relevancy) |
|
||||||||||||||||||
|
||||||||||||||||||||
| Value History (*The County Treasurer 405-713-1300 posts & collects actual tax amounts. Contact information HERE) | |||||||||||||
|---|---|---|---|---|---|---|---|---|---|---|---|---|---|
| Year | Market Value | Taxable Mkt Value | Gross Assessed | Exemption | Net Assessed | Millage | Est. Tax | Tax Savings | |||||
|
2026 |
326,000 |
326,000 |
35,860 |
0 |
35,860 |
117.21 |
$4,203 |
$0 |
|||||
|
2025 |
308,500 |
308,500 |
33,935 |
0 |
33,935 |
117.21 |
$3,978 |
$0 |
|||||
|
2024 |
260,000 |
207,850 |
22,862 |
0 |
22,862 |
116.35 |
$2,660 |
$667 |
|||||
|
2023 |
262,500 |
197,953 |
21,773 |
0 |
21,773 |
117.10 |
$2,550 |
$831 |
|||||
|
2022 |
243,000 |
188,527 |
20,737 |
0 |
20,737 |
115.17 |
$2,388 |
$690 |
|||||
| Property Account Status/Adjustments/Exemptions | ||||||
|---|---|---|---|---|---|---|
| Account # | Exemption Description | Amount | ||||
| No adjustment/exemption records returned. | ||||||
| Property Deed Transaction History (Recorded in the County Clerk's Office) | ||||||||||
|---|---|---|---|---|---|---|---|---|---|---|
| Date | Type | Book | Page | Price | Grantor | Grantee | ||||
|
4/24/2025 |
|
Deeds |
$336,000 |
WORLD CLASS HOMEBUYERS LLC |
LEVY DORIS D |
|||||
|
10/3/2024 |
|
Deeds |
$175,000 |
FULLAGAR MARK T |
WORLD CLASS HOMEBUYERS LLC |
|||||
|
1/18/2022 |
|
Deeds |
$0 |
FULLAGAR MARK T & REBECCA C |
FULLAGAR MARK T |
|||||
|
11/4/1992 |
|
Historical |
$73,000 |
BOLIN JAMES A & SANDRA L |
FULLAGAR MARK T & REBECCA C |
|||||
|
9/1/1986 |
|
Historical |
$65,000 |
FEDERAL NATIONAL |
BOLIN JAMES A & SANDRA L |
|||||
| Last Mailed Notice of Value (N.O.V.) Information/History | ||||||||
|---|---|---|---|---|---|---|---|---|
| Year | Date | Market Value | Taxable Market Value | Gross Assessed | Exemption | Net Assessed | ||
|
2026 |
02/06/2026 |
326,000 |
326,000 |
35,860 |
0 |
35,860 |
||
|
2025 |
01/31/2025 |
308,500 |
308,500 |
33,935 |
0 |
33,935 |
||
|
2024 |
01/22/2024 |
260,000 |
207,850 |
22,862 |
0 |
22,862 |
||
|
2023 |
01/23/2023 |
262,500 |
197,953 |
21,773 |
0 |
21,773 |
||
|
2022 |
02/22/2022 |
243,000 |
188,527 |
20,737 |
0 |
20,737 |
||
| Property Building Permit History | |||||||||||
|---|---|---|---|---|---|---|---|---|---|---|---|
| Issued | Permit # | Provided by | Bldg # | Description | Est Construction Cost | Status | |||||
| No Building Permit records returned. | |||||||||||
| Click button on building number to access detailed information: | ||||||
|---|---|---|---|---|---|---|
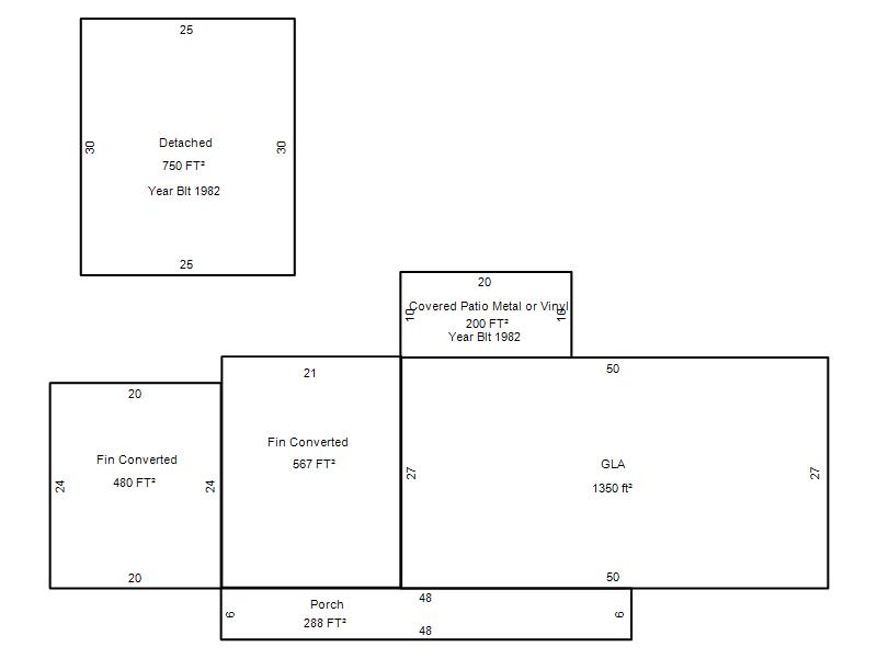
| Bldg # | Vacant/Improved Land | Bldg Description | Year Built | SqFt | # Stories | |
|
1 |
Improved |
Ranch 1 Story |
1977 |
1,350 |
1 Stories |
|