|
|
|
| Larry Stein Oklahoma County Assessor (405) 713-1200 - Public Access System |
|
|
|
|
|
|
| Real Property Display - Screen Produced 4/4/2026 1:54:47 PM | ||||
|---|---|---|---|---|
| Account: R149811315 | Type: Residential | Location: |
6029 N STONEWALL AVE |
|
| Building Name/Occupant: |
|
OKLAHOMA CITY |
||
| Owner Name 1: | CUDJOE CEDRIC L & ADELL T |
Parcel PIN#: |
2644-14-981-1315 |
|
| Owner Name 2: | 1/4 section #: |
2644 |
||
| Owner Name 3: | Parent Acct: |
|
||
| Billing Address: | 6029 N STONEWALL AVE | Tax District: |
|
|
| City, State, Zip | OKLAHOMA CITY, OK 73111-7430 | School System: |
Millwood #37 |
|
|
Country: (If noted) |
Land Size: |
0.4827 Acres |
||
|
Land Value: 22,000 |
|
|||
|
Sect 11-T12N-R3W Qtr NW |
RICHARDSONS WILDEWOOD MANOR
Block
002
Lot
000
|
|||
| Full Legal Description: RICHARDSONS WILDEWOOD MANOR 002 000 LOT 9 EX A PT ON NLY SIDE BEING 130FT ON WLY SIDE 10.91FT ON NELY SIDE 150FT ON ELY SIDE & 112.29FT ON SLY SIDE |
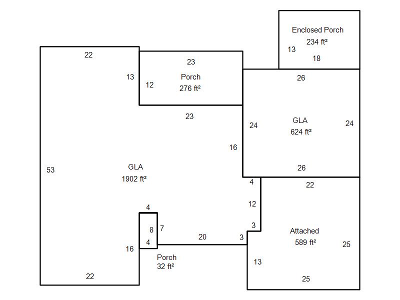
| Photo & Sketch (if available) | Comp Sales (ordered by relevancy) |
|
||||||||||||||||||
|
||||||||||||||||||||
| Value History (*The County Treasurer 405-713-1300 posts & collects actual tax amounts. Contact information HERE) | |||||||||||||
|---|---|---|---|---|---|---|---|---|---|---|---|---|---|
| Year | Market Value | Taxable Mkt Value | Gross Assessed | Exemption | Net Assessed | Millage | Est. Tax | Tax Savings | |||||
|
2026 |
236,000 |
147,435 |
16,217 |
1,000 |
15,217 |
131.17 |
$1,996 |
$1,409 |
|||||
|
2025 |
235,500 |
143,141 |
15,744 |
1,000 |
14,744 |
131.17 |
$1,934 |
$1,464 |
|||||
|
2024 |
236,500 |
138,972 |
15,286 |
1,000 |
14,286 |
132.60 |
$1,894 |
$1,555 |
|||||
|
2023 |
203,500 |
134,925 |
14,841 |
1,000 |
13,841 |
134.52 |
$1,862 |
$1,149 |
|||||
|
2022 |
171,000 |
130,996 |
14,408 |
1,000 |
13,408 |
129.77 |
$1,740 |
$701 |
|||||
| Property Account Status/Adjustments/Exemptions | ||
|---|---|---|
| Account # | Exemption Description | Amount |
|
R149811315 |
3% Cap Homestead |
0 |
|
R149811315 |
Homestead |
1,000 |
| Property Deed Transaction History (Recorded in the County Clerk's Office) | |||||||
|---|---|---|---|---|---|---|---|
| Date | Type | Book | Page | Price | Grantor | Grantee | |
|
5/1/1974 |
|
Historical |
$0 |
|
CUDJOE CEDRIC L & ADELL T |
||
| Last Mailed Notice of Value (N.O.V.) Information/History | ||||||||
|---|---|---|---|---|---|---|---|---|
| Year | Date | Market Value | Taxable Market Value | Gross Assessed | Exemption | Net Assessed | ||
|
2026 |
02/23/2026 |
236,000 |
147,435 |
16,217 |
1,000 |
15,217 |
||
|
2025 |
02/14/2025 |
235,500 |
143,141 |
15,744 |
1,000 |
14,744 |
||
|
2024 |
02/13/2024 |
236,500 |
138,972 |
15,286 |
1,000 |
14,286 |
||
|
2023 |
02/14/2023 |
203,500 |
134,925 |
14,841 |
1,000 |
13,841 |
||
|
2022 |
03/15/2022 |
171,000 |
130,996 |
14,408 |
1,000 |
13,408 |
||
| Property Building Permit History | |||||||||||
|---|---|---|---|---|---|---|---|---|---|---|---|
| Issued | Permit # | Provided by | Bldg # | Description | Est Construction Cost | Status | |||||
| No Building Permit records returned. | |||||||||||
| Click button on building number to access detailed information: | ||||||
|---|---|---|---|---|---|---|
| Bldg # | Vacant/Improved Land | Bldg Description | Year Built | SqFt | # Stories | |
|
1 |
Improved |
Ranch 1 Story |
1959 |
2,526 |
1 Stories |
|