|
|
|
| Larry Stein Oklahoma County Assessor (405) 713-1200 - Public Access System |
|
|
|
|
|
|
| Real Property Display - Screen Produced 4/10/2026 9:01:51 AM | ||||
|---|---|---|---|---|
| Account: R049480660 | Type: Residential | Location: |
840 NW 42ND ST |
|
| Building Name/Occupant: |
|
OKLAHOMA CITY |
||
| Owner Name 1: | COYLE LIV TRUST |
Parcel PIN#: |
2663-04-948-0660 |
|
| Owner Name 2: | 1/4 section #: |
2663 |
||
| Owner Name 3: | Parent Acct: |
|
||
| Billing Address: | 840 NW 42ND ST | Tax District: |
|
|
| City, State, Zip | OKLAHOMA CITY, OK 73118 | School System: |
Oklahoma City #89 |
|
|
Country: (If noted) |
UNITED STATES |
Land Size: |
0.1907 Acres |
|
|
Land Value: 94,262 |
|
|||
|
Sect 16-T12N-R3W Qtr SW |
CROWN HEIGHTS ADD
Block
003
Lot
011
|
|||
| Full Legal Description: CROWN HEIGHTS ADD 003 011 |
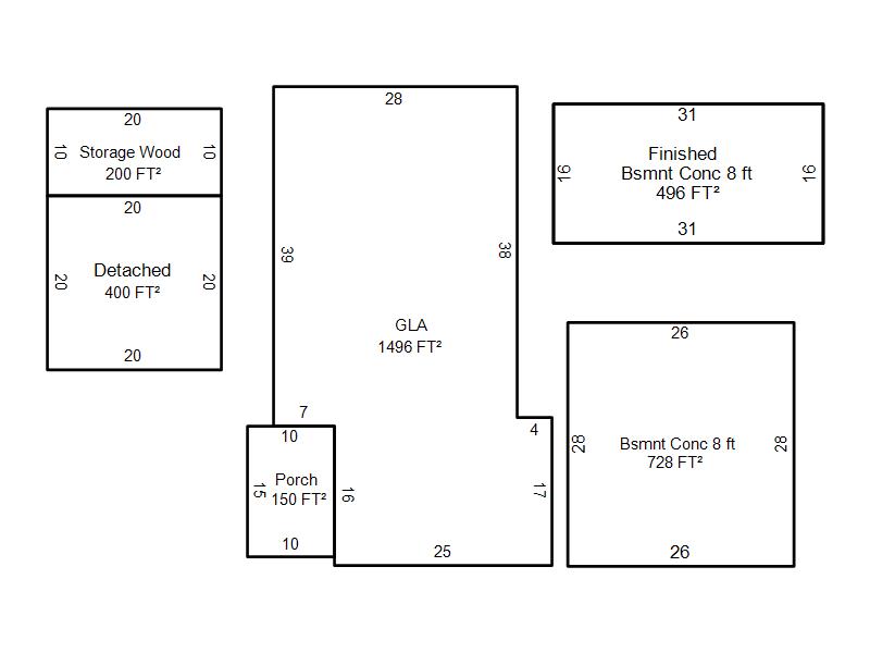
| Photo & Sketch (if available) | Comp Sales (ordered by relevancy) |
|
||||||||||||||||||
|
||||||||||||||||||||
| Value History (*The County Treasurer 405-713-1300 posts & collects actual tax amounts. Contact information HERE) | |||||||||||||
|---|---|---|---|---|---|---|---|---|---|---|---|---|---|
| Year | Market Value | Taxable Mkt Value | Gross Assessed | Exemption | Net Assessed | Millage | Est. Tax | Tax Savings | |||||
|
2026 |
328,000 |
328,000 |
36,080 |
1,000 |
35,080 |
122.90 |
$4,311 |
$123 |
|||||
|
2025 |
405,000 |
341,923 |
37,611 |
0 |
37,611 |
122.90 |
$4,622 |
$853 |
|||||
|
2024 |
393,500 |
325,641 |
35,819 |
0 |
35,819 |
123.89 |
$4,438 |
$925 |
|||||
|
2023 |
349,000 |
310,135 |
34,114 |
0 |
34,114 |
122.82 |
$4,190 |
$525 |
|||||
|
2022 |
309,500 |
295,367 |
32,489 |
0 |
32,489 |
117.63 |
$3,822 |
$183 |
|||||
| Property Account Status/Adjustments/Exemptions | ||
|---|---|---|
| Account # | Exemption Description | Amount |
|
R049480660 |
Homestead |
1,000 |
| Property Deed Transaction History (Recorded in the County Clerk's Office) | ||||||||||
|---|---|---|---|---|---|---|---|---|---|---|
| Date | Type | Book | Page | Price | Grantor | Grantee | ||||
|
12/2/2025 |
|
Deeds |
$327,500 |
KINTSEL JOEL & NANCY |
COYLE LIV TRUST |
|||||
|
1/11/2006 |
|
Deeds |
$217,000 |
VAN OVEN BRIAN & ABBEY O |
KINTSEL JOEL & NANCY |
|||||
|
6/23/2004 |
|
Deeds |
$168,000 |
SCHNEIDER JOHN P FAULKNER LUCILLE ANN |
VAN OVEN BRIAN & ABBEY O |
|||||
|
6/19/1995 |
|
Historical |
$0 |
VOSBURGH CRAIG L & KIMBERLIE A |
SCHNEIDER JOHN P |
|||||
|
5/16/1991 |
|
Historical |
$0 |
DIACON GLEN E JR & SHERRY A |
VOSBURGH CRAIG L & KIMBERLIE A |
|||||
| Last Mailed Notice of Value (N.O.V.) Information/History | ||||||||
|---|---|---|---|---|---|---|---|---|
| Year | Date | Market Value | Taxable Market Value | Gross Assessed | Exemption | Net Assessed | ||
|
2026 |
02/23/2026 |
414,000 |
414,000 |
45,540 |
0 |
45,540 |
||
|
2025 |
02/14/2025 |
405,000 |
341,923 |
37,611 |
0 |
37,611 |
||
|
2024 |
02/13/2024 |
393,500 |
325,641 |
35,819 |
0 |
35,819 |
||
|
2023 |
02/14/2023 |
349,000 |
310,135 |
34,114 |
0 |
34,114 |
||
|
2022 |
03/15/2022 |
309,500 |
295,367 |
32,489 |
0 |
32,489 |
||
| Property Building Permit History | |||||||||||
|---|---|---|---|---|---|---|---|---|---|---|---|
| Issued | Permit # | Provided by | Bldg # | Description | Est Construction Cost | Status | |||||
| No Building Permit records returned. | |||||||||||
| Click button on building number to access detailed information: | ||||||
|---|---|---|---|---|---|---|
| Bldg # | Vacant/Improved Land | Bldg Description | Year Built | SqFt | # Stories | |
|
1 |
Improved |
Ranch 1 Story |
1936 |
1,496 |
1 Stories |
|