|
|
|
| Larry Stein Oklahoma County Assessor (405) 713-1200 - Public Access System |
|
|
|
|
|
|
| Real Property Display - Screen Produced 4/10/2026 9:01:51 AM | ||||
|---|---|---|---|---|
| Account: R049483040 | Type: Residential | Location: |
1008 NW 39TH ST |
|
| Building Name/Occupant: |
|
OKLAHOMA CITY |
||
| Owner Name 1: | JOHNSON DEBRA Z |
Parcel PIN#: |
2663-04-948-3040 |
|
| Owner Name 2: | 1/4 section #: |
2663 |
||
| Owner Name 3: | Parent Acct: |
|
||
| Billing Address: | 1008 NW 39TH ST | Tax District: |
|
|
| City, State, Zip | OKLAHOMA CITY, OK 73118-7124 | School System: |
Oklahoma City #89 |
|
|
Country: (If noted) |
Land Size: |
0.2159 Acres |
||
|
Land Value: 130,730 |
|
|||
|
Sect 16-T12N-R3W Qtr SW |
CROWN HEIGHTS ADD
Block
006
Lot
018
|
|||
| Full Legal Description: CROWN HEIGHTS ADD 006 018 |
| Photo & Sketch (if available) | Comp Sales (ordered by relevancy) |
|
||||||||||||||||||
|
||||||||||||||||||||
| Value History (*The County Treasurer 405-713-1300 posts & collects actual tax amounts. Contact information HERE) | |||||||||||||
|---|---|---|---|---|---|---|---|---|---|---|---|---|---|
| Year | Market Value | Taxable Mkt Value | Gross Assessed | Exemption | Net Assessed | Millage | Est. Tax | Tax Savings | |||||
|
2026 |
406,000 |
406,000 |
44,660 |
0 |
44,660 |
122.90 |
$5,489 |
$0 |
|||||
|
2025 |
396,500 |
396,500 |
43,615 |
0 |
43,615 |
122.90 |
$5,360 |
$0 |
|||||
|
2024 |
391,500 |
234,576 |
25,803 |
1,000 |
24,803 |
123.89 |
$3,073 |
$2,262 |
|||||
|
2023 |
343,000 |
234,576 |
25,803 |
1,000 |
24,803 |
122.82 |
$3,046 |
$1,588 |
|||||
|
2022 |
320,500 |
234,576 |
25,803 |
1,000 |
24,803 |
117.63 |
$2,918 |
$1,229 |
|||||
| Property Account Status/Adjustments/Exemptions | ||
|---|---|---|
| Account # | Exemption Description | Amount |
|
R049483040 |
5% Capped Account |
0 |
| Property Deed Transaction History (Recorded in the County Clerk's Office) | |||||||
|---|---|---|---|---|---|---|---|
| Date | Type | Book | Page | Price | Grantor | Grantee | |
|
6/24/2024 |
|
Deeds |
$450,000 |
GOLD BILL R & SALLY K |
JOHNSON DEBRA Z |
||
|
12/15/2011 |
|
Deeds |
$234,500 |
PARRISH MARY RANDLE |
GOLD BILL R & SALLY K |
||
|
2/18/2003 |
|
Hmstd Off & |
$0 |
BERRY JOYCE P |
PARRISH MARY RANDLE |
||
|
12/27/1993 |
|
Historical |
$0 |
SANDERS JOYCE P |
BERRY JOYCE P |
||
|
11/11/1911 |
|
Historical |
$0 |
|
SANDERS JOYCE P |
||
| Last Mailed Notice of Value (N.O.V.) Information/History | ||||||||
|---|---|---|---|---|---|---|---|---|
| Year | Date | Market Value | Taxable Market Value | Gross Assessed | Exemption | Net Assessed | ||
|
2026 |
02/23/2026 |
406,000 |
406,000 |
44,660 |
0 |
44,660 |
||
|
2025 |
02/14/2025 |
396,500 |
396,500 |
43,615 |
0 |
43,615 |
||
|
2024 |
02/13/2024 |
391,500 |
234,576 |
25,803 |
1,000 |
24,803 |
||
|
2023 |
02/14/2023 |
343,000 |
234,576 |
25,803 |
1,000 |
24,803 |
||
|
2022 |
03/15/2022 |
320,500 |
234,576 |
25,803 |
1,000 |
24,803 |
||
| Property Building Permit History | |||||||||||
|---|---|---|---|---|---|---|---|---|---|---|---|
| Issued | Permit # | Provided by | Bldg # | Description | Est Construction Cost | Status | |||||
| No Building Permit records returned. | |||||||||||
| Click button on building number to access detailed information: | ||||||
|---|---|---|---|---|---|---|
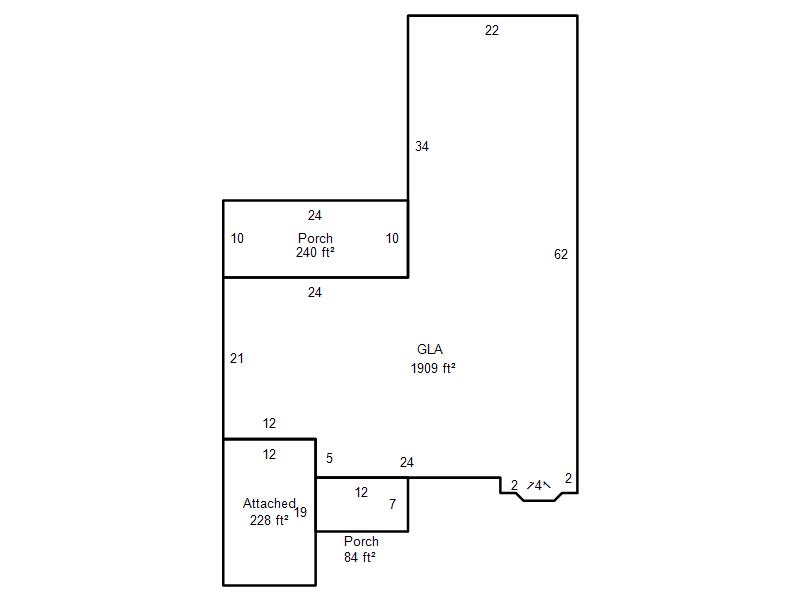
| Bldg # | Vacant/Improved Land | Bldg Description | Year Built | SqFt | # Stories | |
|
1 |
Improved |
Ranch 1 Story |
1935 |
1,909 |
1 Stories |
|