|
|
|
| Larry Stein Oklahoma County Assessor (405) 713-1200 - Public Access System |
|
|
|
|
|
|
| Real Property Display - Screen Produced 4/10/2026 9:00:34 AM | ||||
|---|---|---|---|---|
| Account: R049486160 | Type: Residential | Location: |
504 NW 41ST ST |
|
| Building Name/Occupant: |
|
OKLAHOMA CITY |
||
| Owner Name 1: | THROWER STEVE |
Parcel PIN#: |
2663-04-948-6160 |
|
| Owner Name 2: | 1/4 section #: |
2663 |
||
| Owner Name 3: | Parent Acct: |
|
||
| Billing Address: | PO BOX 2037 | Tax District: |
|
|
| City, State, Zip | OKLAHOMA CITY, OK 73101-2037 | School System: |
Oklahoma City #89 |
|
|
Country: (If noted) |
Land Size: |
0.1850 Acres |
||
|
Land Value: 91,481 |
|
|||
|
Sect 16-T12N-R3W Qtr SW |
CROWN HEIGHTS ADD
Block
014
Lot
002
|
|||
| Full Legal Description: CROWN HEIGHTS ADD 014 002 |
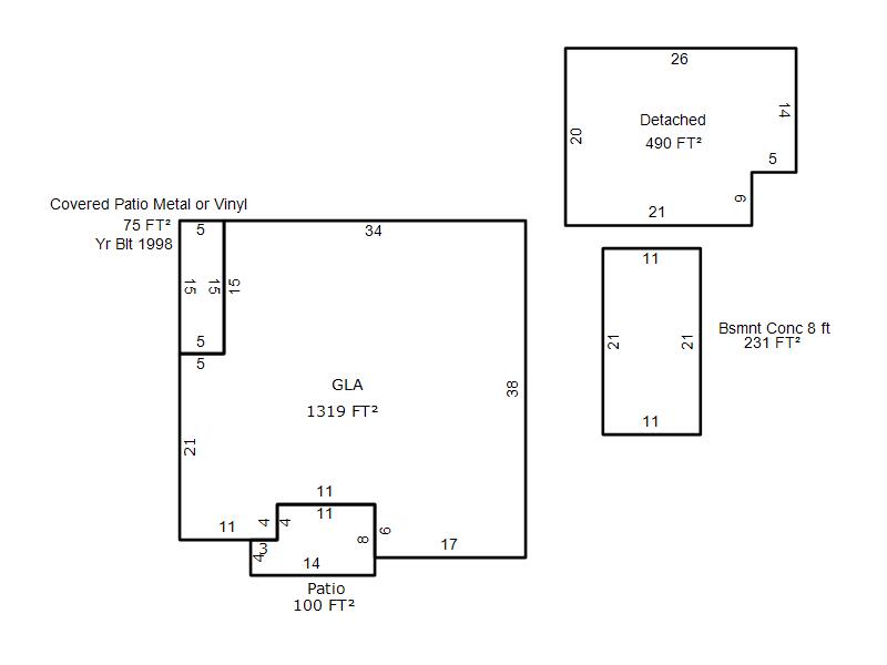
| Photo & Sketch (if available) | Comp Sales (ordered by relevancy) |
|
||||||||||||||||||
|
||||||||||||||||||||
| Value History (*The County Treasurer 405-713-1300 posts & collects actual tax amounts. Contact information HERE) | |||||||||||||
|---|---|---|---|---|---|---|---|---|---|---|---|---|---|
| Year | Market Value | Taxable Mkt Value | Gross Assessed | Exemption | Net Assessed | Millage | Est. Tax | Tax Savings | |||||
|
2026 |
338,000 |
260,652 |
28,671 |
1,000 |
27,671 |
122.90 |
$3,401 |
$1,169 |
|||||
|
2025 |
326,500 |
253,061 |
27,836 |
1,000 |
26,836 |
122.90 |
$3,298 |
$1,116 |
|||||
|
2024 |
327,500 |
245,691 |
27,025 |
1,000 |
26,025 |
123.89 |
$3,224 |
$1,239 |
|||||
|
2023 |
285,500 |
238,535 |
26,238 |
1,000 |
25,238 |
122.82 |
$3,100 |
$757 |
|||||
|
2022 |
256,500 |
231,588 |
25,473 |
1,000 |
24,473 |
117.63 |
$2,879 |
$440 |
|||||
| Property Account Status/Adjustments/Exemptions | ||
|---|---|---|
| Account # | Exemption Description | Amount |
|
R049486160 |
Freeze Senior Valuation |
0 |
|
R049486160 |
Homestead |
1,000 |
|
R049486160 |
3% Cap Homestead |
0 |
| Property Deed Transaction History (Recorded in the County Clerk's Office) | ||||||||||
|---|---|---|---|---|---|---|---|---|---|---|
| Date | Type | Book | Page | Price | Grantor | Grantee | ||||
|
11/16/2012 |
|
Deeds |
$147,500 |
LEE STEVEN A |
THROWER STEVE |
|||||
|
11/12/2002 |
|
Deeds |
$140,500 |
PEMBERTON JAMES TRAVIS |
LEE STEVEN A |
|||||
|
2/23/2001 |
|
Deeds |
$134,000 |
WHEELINGTON TIFFANY C |
PEMBERTON JAMES TRAVIS |
|||||
|
7/11/1996 |
|
Historical |
$109,000 |
PINZON ANABEL G |
WHEELINGTON TIFFANY C |
|||||
|
2/27/1995 |
|
Historical |
$0 |
PINZON ANABELL |
PINZON ANABEL G |
|||||
| Last Mailed Notice of Value (N.O.V.) Information/History | ||||||||
|---|---|---|---|---|---|---|---|---|
| Year | Date | Market Value | Taxable Market Value | Gross Assessed | Exemption | Net Assessed | ||
|
2026 |
02/23/2026 |
338,000 |
260,652 |
28,671 |
1,000 |
27,671 |
||
|
2025 |
02/14/2025 |
326,500 |
253,061 |
27,836 |
1,000 |
26,836 |
||
|
2024 |
02/13/2024 |
327,500 |
245,691 |
27,025 |
1,000 |
26,025 |
||
|
2023 |
02/14/2023 |
285,500 |
238,535 |
26,238 |
1,000 |
25,238 |
||
|
2022 |
03/15/2022 |
256,500 |
231,588 |
25,473 |
1,000 |
24,473 |
||
| Property Building Permit History | ||||||
|---|---|---|---|---|---|---|
| Issued | Permit # | Provided by | Bldg # | Description | Est Construction Cost | Status |
|
11/13/1997 |
10191132 |
OKLAHOMA CITY |
1 |
Add On |
20,000 |
Inactive |
| Click button on building number to access detailed information: | ||||||
|---|---|---|---|---|---|---|
| Bldg # | Vacant/Improved Land | Bldg Description | Year Built | SqFt | # Stories | |
|
1 |
Improved |
Ranch 1 Story |
1936 |
1,319 |
1 Stories |
|