|
|
|
| Larry Stein Oklahoma County Assessor (405) 713-1200 - Public Access System |
|
|
|
|
|
|
| Real Property Display - Screen Produced 4/10/2026 9:00:34 AM | ||||
|---|---|---|---|---|
| Account: R049488680 | Type: Residential | Location: |
508 NW 36TH TER |
|
| Building Name/Occupant: |
|
OKLAHOMA CITY |
||
| Owner Name 1: | FERGUSON LANDON & BETHANY |
Parcel PIN#: |
2663-04-948-8680 |
|
| Owner Name 2: | 1/4 section #: |
2663 |
||
| Owner Name 3: | Parent Acct: |
|
||
| Billing Address: | 508 NW 36TH TER | Tax District: |
|
|
| City, State, Zip | OKLAHOMA CITY, OK 73118 | School System: |
Oklahoma City #89 |
|
|
Country: (If noted) |
Land Size: |
0.1708 Acres |
||
|
Land Value: 65,100 |
|
|||
|
Sect 16-T12N-R3W Qtr SW |
CROWN HEIGHTS ADD
Block
018
Lot
003
|
|||
| Full Legal Description: CROWN HEIGHTS ADD 018 003 |
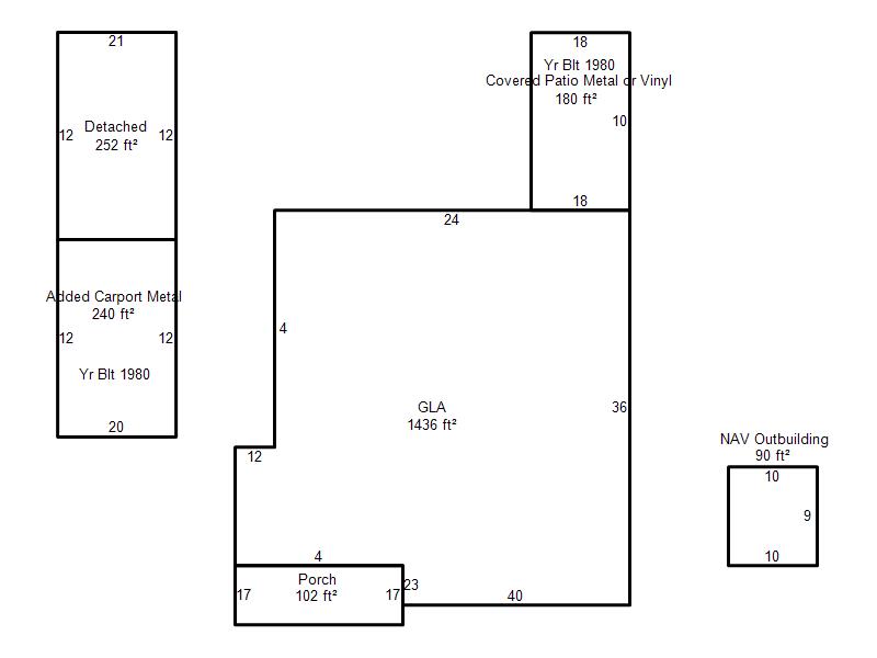
| Photo & Sketch (if available) | Comp Sales (ordered by relevancy) |
|
||||||||||||||||||
|
||||||||||||||||||||
| Value History (*The County Treasurer 405-713-1300 posts & collects actual tax amounts. Contact information HERE) | |||||||||||||
|---|---|---|---|---|---|---|---|---|---|---|---|---|---|
| Year | Market Value | Taxable Mkt Value | Gross Assessed | Exemption | Net Assessed | Millage | Est. Tax | Tax Savings | |||||
|
2026 |
321,000 |
307,521 |
33,826 |
0 |
33,826 |
122.90 |
$4,157 |
$182 |
|||||
|
2025 |
318,500 |
292,878 |
32,216 |
0 |
32,216 |
122.90 |
$3,959 |
$346 |
|||||
|
2024 |
323,000 |
278,932 |
30,682 |
0 |
30,682 |
123.89 |
$3,801 |
$601 |
|||||
|
2023 |
276,500 |
265,650 |
29,221 |
0 |
29,221 |
122.82 |
$3,589 |
$147 |
|||||
|
2022 |
253,000 |
253,000 |
27,830 |
0 |
27,830 |
117.63 |
$3,274 |
$0 |
|||||
| Property Account Status/Adjustments/Exemptions | ||
|---|---|---|
| Account # | Exemption Description | Amount |
|
R049488680 |
5% Capped Account |
0 |
| Property Deed Transaction History (Recorded in the County Clerk's Office) | ||||||||||
|---|---|---|---|---|---|---|---|---|---|---|
| Date | Type | Book | Page | Price | Grantor | Grantee | ||||
|
10/23/2020 |
|
Deeds |
$238,000 |
MEARS SHARON K |
FERGUSON LANDON & BETHANY |
|||||
|
11/6/2012 |
|
Deeds |
$179,000 |
ANSHUTZ JASON HOWARD |
MEARS SHARON K |
|||||
|
1/14/2011 |
|
Deeds |
$145,000 |
VANGREVENHOF JEFFREY A & JANI |
ANSHUTZ JASON HOWARD |
|||||
|
7/31/1998 |
|
Historical |
$83,500 |
THOMAS TAMI L |
VANGREVENHOF JEFFREY A & JANI |
|||||
|
3/28/1991 |
|
Historical |
$0 |
BELL JAMES MALCOLM |
THOMAS TAMI L |
|||||
| Last Mailed Notice of Value (N.O.V.) Information/History | ||||||||
|---|---|---|---|---|---|---|---|---|
| Year | Date | Market Value | Taxable Market Value | Gross Assessed | Exemption | Net Assessed | ||
|
2026 |
02/23/2026 |
321,000 |
307,521 |
33,826 |
0 |
33,826 |
||
|
2025 |
02/14/2025 |
318,500 |
292,878 |
32,216 |
0 |
32,216 |
||
|
2024 |
02/13/2024 |
323,000 |
278,932 |
30,682 |
0 |
30,682 |
||
|
2023 |
02/14/2023 |
276,500 |
265,650 |
29,221 |
0 |
29,221 |
||
|
2022 |
03/15/2022 |
253,000 |
253,000 |
27,830 |
0 |
27,830 |
||
| Property Building Permit History | |||||||||||
|---|---|---|---|---|---|---|---|---|---|---|---|
| Issued | Permit # | Provided by | Bldg # | Description | Est Construction Cost | Status | |||||
| No Building Permit records returned. | |||||||||||
| Click button on building number to access detailed information: | ||||||
|---|---|---|---|---|---|---|
| Bldg # | Vacant/Improved Land | Bldg Description | Year Built | SqFt | # Stories | |
|
1 |
Improved |
Ranch 1 Story |
1945 |
1,436 |
1 Stories |
|