|
|
|
| Larry Stein Oklahoma County Assessor (405) 713-1200 - Public Access System |
|
|
|
|
|
|
| Real Property Display - Screen Produced 4/8/2026 3:14:20 PM | ||||
|---|---|---|---|---|
| Account: R038112450 | Type: Residential | Location: |
1905 NE 25TH ST |
|
| Building Name/Occupant: |
|
OKLAHOMA CITY |
||
| Owner Name 1: | GDS HOLDING LLC SERIES 2016 TAX SALE |
Parcel PIN#: |
2690-03-811-2450 |
|
| Owner Name 2: | 1/4 section #: |
2690 |
||
| Owner Name 3: | Parent Acct: |
|
||
| Billing Address: | 2000 NW 39TH ST | Tax District: |
|
|
| City, State, Zip | OKLAHOMA CITY, OK 73118-2614 | School System: |
Oklahoma City #89 |
|
|
Country: (If noted) |
Land Size: |
0.1550 Acres |
||
|
Land Value: 6,413 |
|
|||
|
Sect 23-T12N-R3W Qtr SE |
WALLACE ADKINS ADD
Block
001
Lot
000
|
|||
| Full Legal Description: WALLACE ADKINS ADD 001 000 LOTS 27 & 28 |
| Photo & Sketch (if available) | Comp Sales (ordered by relevancy) |
|
||||||||||||||||||
|
||||||||||||||||||||
| Value History (*The County Treasurer 405-713-1300 posts & collects actual tax amounts. Contact information HERE) | |||||||||||||
|---|---|---|---|---|---|---|---|---|---|---|---|---|---|
| Year | Market Value | Taxable Mkt Value | Gross Assessed | Exemption | Net Assessed | Millage | Est. Tax | Tax Savings | |||||
|
2026 |
91,000 |
45,059 |
4,956 |
0 |
4,956 |
122.90 |
$609 |
$621 |
|||||
|
2025 |
82,500 |
42,914 |
4,719 |
0 |
4,719 |
122.90 |
$580 |
$535 |
|||||
|
2024 |
79,000 |
40,871 |
4,495 |
0 |
4,495 |
123.89 |
$557 |
$520 |
|||||
|
2023 |
67,500 |
38,925 |
4,280 |
0 |
4,280 |
122.82 |
$526 |
$386 |
|||||
|
2022 |
65,000 |
37,072 |
4,076 |
0 |
4,076 |
117.63 |
$480 |
$361 |
|||||
| Property Account Status/Adjustments/Exemptions | ||
|---|---|---|
| Account # | Exemption Description | Amount |
|
R038112450 |
5% Capped Account |
0 |
| Property Deed Transaction History (Recorded in the County Clerk's Office) | |||||||
|---|---|---|---|---|---|---|---|
| Date | Type | Book | Page | Price | Grantor | Grantee | |
|
11/28/2016 |
|
Hmstd Off & |
$0 |
CAMBOR TAMMIE WADE ADM OF THE ESTATE OF TERRIE WADE CAMBOR |
GDS HOLDINGS LLC |
||
|
6/13/2016 |
|
Other |
$0 |
MOORE RAY |
GDS HOLDING LLC SERIES 2016 TAX SALE |
||
|
10/29/1998 |
|
Historical |
$0 |
MOORE RAY & COSTELLA |
MOORE RAY |
||
|
11/11/1911 |
|
Historical |
$0 |
|
MOORE RAY & COSTELLA |
||
| Last Mailed Notice of Value (N.O.V.) Information/History | ||||||||
|---|---|---|---|---|---|---|---|---|
| Year | Date | Market Value | Taxable Market Value | Gross Assessed | Exemption | Net Assessed | ||
|
2026 |
02/23/2026 |
91,000 |
45,059 |
4,956 |
0 |
4,956 |
||
|
2025 |
02/14/2025 |
82,500 |
42,914 |
4,719 |
0 |
4,719 |
||
|
2024 |
02/13/2024 |
79,000 |
40,871 |
4,495 |
0 |
4,495 |
||
|
2023 |
02/14/2023 |
67,500 |
38,925 |
4,280 |
0 |
4,280 |
||
|
2022 |
03/15/2022 |
65,000 |
37,072 |
4,076 |
0 |
4,076 |
||
| Property Building Permit History | |||||||||||
|---|---|---|---|---|---|---|---|---|---|---|---|
| Issued | Permit # | Provided by | Bldg # | Description | Est Construction Cost | Status | |||||
| No Building Permit records returned. | |||||||||||
| Click button on building number to access detailed information: | ||||||
|---|---|---|---|---|---|---|
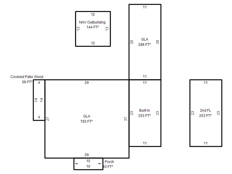
| Bldg # | Vacant/Improved Land | Bldg Description | Year Built | SqFt | # Stories | |
|
1 |
Improved |
1½ Story Fin |
1948 |
1,322 |
1.5 Stories |
|