|
|
|
| Larry Stein Oklahoma County Assessor (405) 713-1200 - Public Access System |
|
|
|
|
|
|
| Real Property Display - Screen Produced 4/8/2026 3:13:08 PM | ||||
|---|---|---|---|---|
| Account: R038116300 | Type: Residential | Location: |
1920 NE 25TH ST |
|
| Building Name/Occupant: |
|
OKLAHOMA CITY |
||
| Owner Name 1: | HILL SOLOMON R |
Parcel PIN#: |
2690-03-811-6300 |
|
| Owner Name 2: | SAMUELS CYNTHIA ANN | 1/4 section #: |
2690 |
|
| Owner Name 3: | Parent Acct: |
|
||
| Billing Address: | 1920 NE 25TH ST | Tax District: |
|
|
| City, State, Zip | OKLAHOMA CITY, OK 73111-3344 | School System: |
Oklahoma City #89 |
|
|
Country: (If noted) |
Land Size: |
0.1550 Acres |
||
|
Land Value: 6,413 |
|
|||
|
Sect 23-T12N-R3W Qtr SE |
WALLACE ADKINS ADD
Block
002
Lot
000
|
|||
| Full Legal Description: WALLACE ADKINS ADD 002 000 LOTS 13 & 14 |
| Photo & Sketch (if available) | Comp Sales (ordered by relevancy) |
|
||||||||||||||||||
|
||||||||||||||||||||
| Value History (*The County Treasurer 405-713-1300 posts & collects actual tax amounts. Contact information HERE) | |||||||||||||
|---|---|---|---|---|---|---|---|---|---|---|---|---|---|
| Year | Market Value | Taxable Mkt Value | Gross Assessed | Exemption | Net Assessed | Millage | Est. Tax | Tax Savings | |||||
|
2026 |
86,000 |
25,639 |
2,820 |
1,000 |
1,820 |
122.90 |
$224 |
$939 |
|||||
|
2025 |
76,500 |
24,893 |
2,737 |
1,000 |
1,737 |
122.90 |
$214 |
$821 |
|||||
|
2024 |
74,000 |
24,168 |
2,658 |
1,000 |
1,658 |
123.89 |
$205 |
$803 |
|||||
|
2023 |
62,500 |
23,465 |
2,581 |
1,000 |
1,581 |
122.82 |
$194 |
$650 |
|||||
|
2022 |
60,000 |
22,782 |
2,504 |
1,000 |
1,504 |
117.63 |
$177 |
$599 |
|||||
| Property Account Status/Adjustments/Exemptions | ||
|---|---|---|
| Account # | Exemption Description | Amount |
|
R038116300 |
3% Cap Homestead |
0 |
|
R038116300 |
Homestead |
1,000 |
| Property Deed Transaction History (Recorded in the County Clerk's Office) | |||||||
|---|---|---|---|---|---|---|---|
| Date | Type | Book | Page | Price | Grantor | Grantee | |
|
10/22/2013 |
|
Deeds |
$0 |
HILL SOLOMON RANDALL |
HILL SOLOMON R |
||
|
12/28/2011 |
|
Deeds |
$0 |
HILL SOLOMON RANDALL HILL OTIS A |
HILL SOLOMON RANDALL |
||
|
4/28/2004 |
|
Deeds |
$0 |
HILL ERMA JEAN HILL OTIS A |
HILL SOLOMON RANDALL HILL OTIS A |
||
|
1/21/2004 |
|
Deeds |
$0 |
HILL ERMA JEAN |
HILL ERMA JEAN HILL OTIS A |
||
|
11/11/1911 |
|
Historical |
$0 |
|
HILL ERMA JEAN |
||
| Last Mailed Notice of Value (N.O.V.) Information/History | ||||||||
|---|---|---|---|---|---|---|---|---|
| Year | Date | Market Value | Taxable Market Value | Gross Assessed | Exemption | Net Assessed | ||
|
2026 |
02/23/2026 |
86,000 |
25,639 |
2,820 |
1,000 |
1,820 |
||
|
2025 |
02/14/2025 |
76,500 |
24,893 |
2,737 |
1,000 |
1,737 |
||
|
2024 |
02/13/2024 |
74,000 |
24,168 |
2,658 |
1,000 |
1,658 |
||
|
2023 |
02/14/2023 |
62,500 |
23,465 |
2,581 |
1,000 |
1,581 |
||
|
2022 |
03/15/2022 |
60,000 |
22,782 |
2,504 |
1,000 |
1,504 |
||
| Property Building Permit History | |||||||||||
|---|---|---|---|---|---|---|---|---|---|---|---|
| Issued | Permit # | Provided by | Bldg # | Description | Est Construction Cost | Status | |||||
| No Building Permit records returned. | |||||||||||
| Click button on building number to access detailed information: | ||||||
|---|---|---|---|---|---|---|
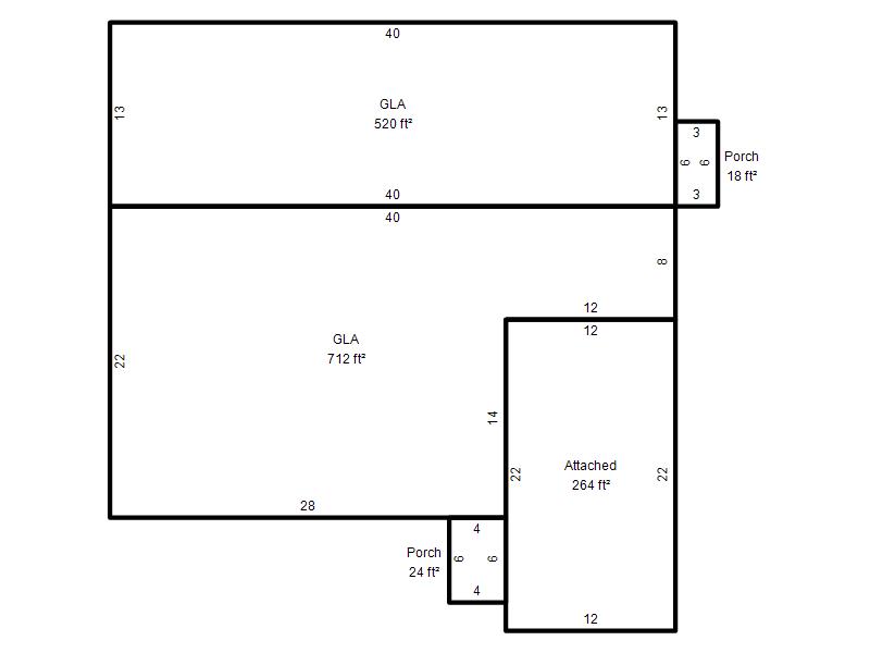
| Bldg # | Vacant/Improved Land | Bldg Description | Year Built | SqFt | # Stories | |
|
1 |
Improved |
Ranch 1 Story |
1952 |
1,232 |
1 Stories |
|