|
|
|
| Larry Stein Oklahoma County Assessor (405) 713-1200 - Public Access System |
|
|
|
|
|
|
| Real Property Display - Screen Produced 4/8/2026 3:34:29 PM | ||||
|---|---|---|---|---|
| Account: R070171125 | Type: Residential | Location: |
1920 NE 28TH ST |
|
| Building Name/Occupant: |
|
OKLAHOMA CITY |
||
| Owner Name 1: | LEAKE JOHNNY |
Parcel PIN#: |
2690-07-017-1125 |
|
| Owner Name 2: | 1/4 section #: |
2690 |
||
| Owner Name 3: | Parent Acct: |
|
||
| Billing Address: | 613 BATH CIR | Tax District: |
|
|
| City, State, Zip | OKLAHOMA CITY, OK 73117 | School System: |
Oklahoma City #89 |
|
|
Country: (If noted) |
Land Size: |
0.1174 Acres |
||
|
Land Value: 4,859 |
|
|||
|
Sect 23-T12N-R3W Qtr SE |
LYON SUB ADDITION
Block
001
Lot
006
|
|||
| Full Legal Description: LYON SUB ADDITION 001 006 |
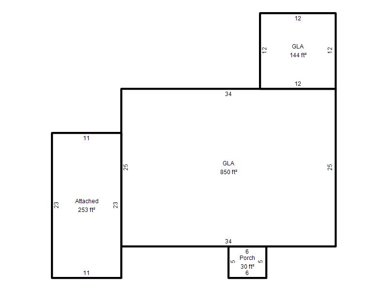
| Photo & Sketch (if available) | Comp Sales (ordered by relevancy) |
|
||||||||||||||||||
|
||||||||||||||||||||
| Value History (*The County Treasurer 405-713-1300 posts & collects actual tax amounts. Contact information HERE) | |||||||||||||
|---|---|---|---|---|---|---|---|---|---|---|---|---|---|
| Year | Market Value | Taxable Mkt Value | Gross Assessed | Exemption | Net Assessed | Millage | Est. Tax | Tax Savings | |||||
|
2026 |
75,000 |
26,281 |
2,890 |
0 |
2,890 |
122.90 |
$355 |
$659 |
|||||
|
2025 |
68,000 |
25,030 |
2,753 |
0 |
2,753 |
122.90 |
$338 |
$581 |
|||||
|
2024 |
65,000 |
23,839 |
2,621 |
0 |
2,621 |
123.89 |
$325 |
$561 |
|||||
|
2023 |
55,500 |
22,704 |
2,496 |
0 |
2,496 |
122.82 |
$307 |
$443 |
|||||
|
2022 |
39,500 |
21,623 |
2,377 |
0 |
2,377 |
117.63 |
$280 |
$231 |
|||||
| Property Account Status/Adjustments/Exemptions | ||
|---|---|---|
| Account # | Exemption Description | Amount |
|
R070171125 |
5% Capped Account |
0 |
| Property Deed Transaction History (Recorded in the County Clerk's Office) | |||||||
|---|---|---|---|---|---|---|---|
| Date | Type | Book | Page | Price | Grantor | Grantee | |
|
2/21/2017 |
|
Deeds |
$0 |
STEVENSON DELOIS LEAKE JOHNNY |
LEAKE JOHNNY |
||
|
12/18/2002 |
|
Hmstd Off & |
$0 |
LEAKE MINNIE PEARL |
LEAKE ALFREDA LEAKE ALFREEMAN |
||
|
12/17/2002 |
|
Hmstd Off & |
$0 |
LEAKE ALFREDA LEAKE ALFREEMAN |
LEAKE ALFREDA STEVENSON DELOIS |
||
|
4/14/2001 |
|
Deeds |
$0 |
LEAKE VIRGINIA & MINNIE P |
LEAKE MINNIE PEARL |
||
|
11/11/1911 |
|
Historical |
$0 |
|
LEAKE VIRGINIA & MINNIE P |
||
| Last Mailed Notice of Value (N.O.V.) Information/History | ||||||||
|---|---|---|---|---|---|---|---|---|
| Year | Date | Market Value | Taxable Market Value | Gross Assessed | Exemption | Net Assessed | ||
|
2026 |
02/23/2026 |
75,000 |
26,281 |
2,890 |
0 |
2,890 |
||
|
2025 |
02/14/2025 |
68,000 |
25,030 |
2,753 |
0 |
2,753 |
||
|
2024 |
02/13/2024 |
65,000 |
23,839 |
2,621 |
0 |
2,621 |
||
|
2023 |
02/14/2023 |
55,500 |
22,704 |
2,496 |
0 |
2,496 |
||
|
2022 |
03/15/2022 |
39,500 |
21,623 |
2,377 |
0 |
2,377 |
||
| Property Building Permit History | |||||||||||
|---|---|---|---|---|---|---|---|---|---|---|---|
| Issued | Permit # | Provided by | Bldg # | Description | Est Construction Cost | Status | |||||
| No Building Permit records returned. | |||||||||||
| Click button on building number to access detailed information: | ||||||
|---|---|---|---|---|---|---|
| Bldg # | Vacant/Improved Land | Bldg Description | Year Built | SqFt | # Stories | |
|
1 |
Improved |
Ranch 1 Story |
1948 |
994 |
1 Stories |
|