|
|
|
| Larry Stein Oklahoma County Assessor (405) 713-1200 - Public Access System |
|
|
|
|
|
|
| Real Property Display - Screen Produced 4/8/2026 3:37:04 PM | ||||
|---|---|---|---|---|
| Account: R073722400 | Type: Residential | Location: |
2208 NE 24TH ST |
|
| Building Name/Occupant: |
|
OKLAHOMA CITY |
||
| Owner Name 1: | BAHREINI AHMAD |
Parcel PIN#: |
2695-07-372-2400 |
|
| Owner Name 2: | 1/4 section #: |
2695 |
||
| Owner Name 3: | Parent Acct: |
|
||
| Billing Address: | 14501 N WESTERN AVE | Tax District: |
|
|
| City, State, Zip | EDMOND, OK 73013-1828 | School System: |
Oklahoma City #89 |
|
|
Country: (If noted) |
Land Size: |
0.1538 Acres |
||
|
Land Value: 2,010 |
|
|||
|
Sect 24-T12N-R3W Qtr SW |
LAIN HILLS ADDITION
Block
003
Lot
004
|
|||
| Full Legal Description: LAIN HILLS ADDITION 003 004 |
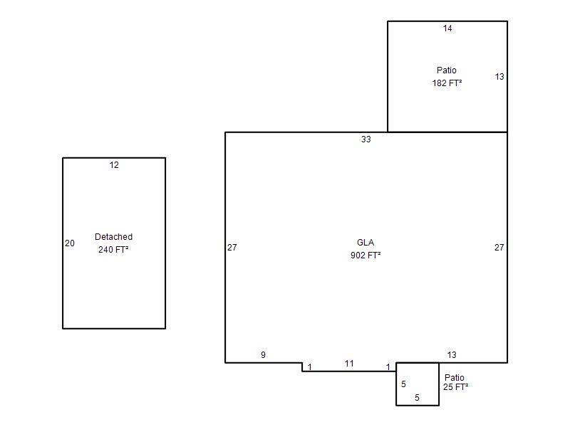
| Photo & Sketch (if available) | Comp Sales (ordered by relevancy) |
|
||||||||||||||||||
|
||||||||||||||||||||
| Value History (*The County Treasurer 405-713-1300 posts & collects actual tax amounts. Contact information HERE) | |||||||||||||
|---|---|---|---|---|---|---|---|---|---|---|---|---|---|
| Year | Market Value | Taxable Mkt Value | Gross Assessed | Exemption | Net Assessed | Millage | Est. Tax | Tax Savings | |||||
|
2026 |
73,500 |
31,758 |
3,493 |
0 |
3,493 |
122.90 |
$429 |
$564 |
|||||
|
2025 |
66,500 |
30,246 |
3,326 |
0 |
3,326 |
122.90 |
$409 |
$490 |
|||||
|
2024 |
63,500 |
28,806 |
3,167 |
0 |
3,167 |
123.89 |
$393 |
$473 |
|||||
|
2023 |
77,000 |
27,435 |
3,017 |
0 |
3,017 |
122.82 |
$371 |
$670 |
|||||
|
2022 |
54,500 |
26,129 |
2,873 |
0 |
2,873 |
117.63 |
$338 |
$367 |
|||||
| Property Account Status/Adjustments/Exemptions | ||
|---|---|---|
| Account # | Exemption Description | Amount |
|
R073722400 |
5% Capped Account |
0 |
| Property Deed Transaction History (Recorded in the County Clerk's Office) | |||||||
|---|---|---|---|---|---|---|---|
| Date | Type | Book | Page | Price | Grantor | Grantee | |
|
7/17/2020 |
|
Hmstd Off & |
$0 |
MARTIN GARRY ETAL |
BAHREINI AHMAD |
||
|
6/8/2015 |
|
Other |
$0 |
ROCKWELL BETTYE |
BAHREINI AHMAD |
||
|
11/11/1911 |
|
Historical |
$0 |
|
ROCKWELL BETTYE |
||
| Last Mailed Notice of Value (N.O.V.) Information/History | ||||||||
|---|---|---|---|---|---|---|---|---|
| Year | Date | Market Value | Taxable Market Value | Gross Assessed | Exemption | Net Assessed | ||
|
2026 |
02/23/2026 |
73,500 |
31,758 |
3,493 |
0 |
3,493 |
||
|
2025 |
02/14/2025 |
66,500 |
30,246 |
3,326 |
0 |
3,326 |
||
|
2024 |
02/13/2024 |
63,500 |
28,806 |
3,167 |
0 |
3,167 |
||
|
2023 |
02/14/2023 |
77,000 |
27,435 |
3,017 |
0 |
3,017 |
||
|
2022 |
03/15/2022 |
54,500 |
26,129 |
2,873 |
0 |
2,873 |
||
| Property Building Permit History | |||||||||||
|---|---|---|---|---|---|---|---|---|---|---|---|
| Issued | Permit # | Provided by | Bldg # | Description | Est Construction Cost | Status | |||||
| No Building Permit records returned. | |||||||||||
| Click button on building number to access detailed information: | ||||||
|---|---|---|---|---|---|---|
| Bldg # | Vacant/Improved Land | Bldg Description | Year Built | SqFt | # Stories | |
|
1 |
Improved |
Ranch 1 Story |
1948 |
902 |
1 Stories |
|