|
|
|
| Larry Stein Oklahoma County Assessor (405) 713-1200 - Public Access System |
|
|
|
|
|
|
| Real Property Display - Screen Produced 4/12/2026 6:30:43 PM | ||||
|---|---|---|---|---|
| Account: R045163000 | Type: Residential | Location: |
1520 NW 18TH ST |
|
| Building Name/Occupant: |
|
OKLAHOMA CITY |
||
| Owner Name 1: | ROSE DAVID & ANNA FAYE TRUST |
Parcel PIN#: |
2713-04-516-3000 |
|
| Owner Name 2: | 1/4 section #: |
2713 |
||
| Owner Name 3: | Parent Acct: |
|
||
| Billing Address: | PO BOX 322 | Tax District: |
|
|
| City, State, Zip | OKLAHOMA CITY , OK 73101 | School System: |
Oklahoma City #89 |
|
|
Country: (If noted) |
Land Size: |
0.1802 Acres |
||
|
Land Value: 43,568 |
|
|||
|
Sect 29-T12N-R3W Qtr NE |
NICHOLS UNIV PLACE
Block
002
Lot
006
|
|||
| Full Legal Description: NICHOLS UNIV PLACE 002 006 |
| Photo & Sketch (if available) | Comp Sales (ordered by relevancy) |
|
||||||||||||||||||
|
||||||||||||||||||||
| Value History (*The County Treasurer 405-713-1300 posts & collects actual tax amounts. Contact information HERE) | |||||||||||||
|---|---|---|---|---|---|---|---|---|---|---|---|---|---|
| Year | Market Value | Taxable Mkt Value | Gross Assessed | Exemption | Net Assessed | Millage | Est. Tax | Tax Savings | |||||
|
2026 |
452,500 |
193,413 |
21,274 |
1,000 |
20,274 |
122.90 |
$2,492 |
$3,625 |
|||||
|
2025 |
465,500 |
187,780 |
20,655 |
1,000 |
19,655 |
122.90 |
$2,416 |
$3,877 |
|||||
|
2024 |
457,000 |
182,311 |
20,054 |
1,000 |
19,054 |
123.89 |
$2,361 |
$3,867 |
|||||
|
2023 |
454,000 |
177,001 |
19,470 |
1,000 |
18,470 |
122.82 |
$2,268 |
$3,865 |
|||||
|
2022 |
407,500 |
171,846 |
18,902 |
1,000 |
17,902 |
117.63 |
$2,106 |
$3,167 |
|||||
| Property Account Status/Adjustments/Exemptions | ||
|---|---|---|
| Account # | Exemption Description | Amount |
|
R045163000 |
3% Cap Homestead |
0 |
|
R045163000 |
Homestead |
1,000 |
| Property Deed Transaction History (Recorded in the County Clerk's Office) | ||||||||||
|---|---|---|---|---|---|---|---|---|---|---|
| Date | Type | Book | Page | Price | Grantor | Grantee | ||||
|
1/17/2018 |
|
Deeds |
$0 |
ROSE DAVID B & ANNA FAYE |
ROSE DAVID & ANNA FAYE TRUST |
|||||
|
6/16/2004 |
|
Deeds |
$58,000 |
POPLIN L GREGORY |
ROSE DAVID B & ANNA FAYE |
|||||
|
5/11/2004 |
|
Deeds |
$42,000 |
MCDONNON CECILIA |
POPLIN L GREGORY |
|||||
|
4/30/2004 |
|
Deeds |
$21,500 |
AMERICREST BANK |
MCDONNON CECILIA |
|||||
|
11/3/2003 |
|
Hmstd Off & |
$0 |
GILLIAM KATHRYN A |
AMERICREST BANK |
|||||
| Last Mailed Notice of Value (N.O.V.) Information/History | ||||||||
|---|---|---|---|---|---|---|---|---|
| Year | Date | Market Value | Taxable Market Value | Gross Assessed | Exemption | Net Assessed | ||
|
2026 |
02/23/2026 |
452,500 |
193,413 |
21,274 |
1,000 |
20,274 |
||
|
2025 |
02/14/2025 |
465,500 |
187,780 |
20,655 |
1,000 |
19,655 |
||
|
2024 |
02/13/2024 |
457,000 |
182,311 |
20,054 |
1,000 |
19,054 |
||
|
2023 |
02/14/2023 |
454,000 |
177,001 |
19,470 |
1,000 |
18,470 |
||
|
2022 |
03/15/2022 |
407,500 |
171,846 |
18,902 |
1,000 |
17,902 |
||
| Property Building Permit History | ||||||
|---|---|---|---|---|---|---|
| Issued | Permit # | Provided by | Bldg # | Description | Est Construction Cost | Status |
|
7/1/2004 |
10294061 |
OKLAHOMA CITY |
1 |
Remodeled |
25,000 |
Inactive |
| Click button on building number to access detailed information: | ||||||
|---|---|---|---|---|---|---|
| Bldg # | Vacant/Improved Land | Bldg Description | Year Built | SqFt | # Stories | |
|
1 |
Improved |
Ranch 1 Story |
1925 |
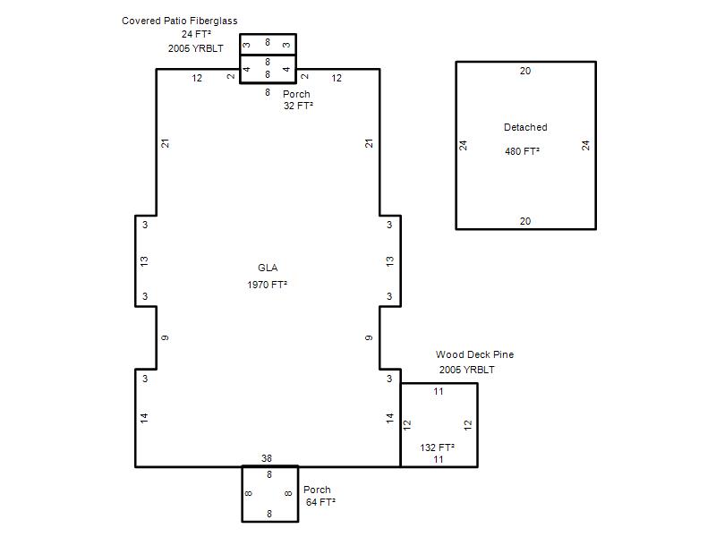
1,970 |
1 Stories |
|