|
|
|
| Larry Stein Oklahoma County Assessor (405) 713-1200 - Public Access System |
|
|
|
|
|
|
| Real Property Display - Screen Produced 4/15/2026 4:39:26 AM | ||||
|---|---|---|---|---|
| Account: R062141200 | Type: Residential | Location: |
1318 NW 21ST ST |
|
| Building Name/Occupant: |
|
OKLAHOMA CITY |
||
| Owner Name 1: | SCHRADER PAMELA |
Parcel PIN#: |
2713-06-214-1200 |
|
| Owner Name 2: | 1/4 section #: |
2713 |
||
| Owner Name 3: | Parent Acct: |
|
||
| Billing Address: | 1318 NW 21ST ST | Tax District: |
|
|
| City, State, Zip | OKLAHOMA CITY, OK 73106-4020 | School System: |
Oklahoma City #89 |
|
|
Country: (If noted) |
Land Size: |
0.1894 Acres |
||
|
Land Value: 50,325 |
|
|||
|
Sect 29-T12N-R3W Qtr NE |
UNIVERSITY PLACE ADD
Block
002
Lot
000
|
|||
| Full Legal Description: UNIVERSITY PLACE ADD 002 000 E55FT OF LOT 3 |
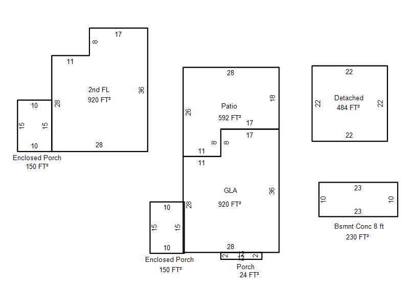
| Photo & Sketch (if available) | Comp Sales (ordered by relevancy) |
|
||||||||||||||||||
|
||||||||||||||||||||
| Value History (*The County Treasurer 405-713-1300 posts & collects actual tax amounts. Contact information HERE) | |||||||||||||
|---|---|---|---|---|---|---|---|---|---|---|---|---|---|
| Year | Market Value | Taxable Mkt Value | Gross Assessed | Exemption | Net Assessed | Millage | Est. Tax | Tax Savings | |||||
|
2026 |
343,000 |
161,219 |
17,734 |
1,000 |
16,734 |
122.90 |
$2,057 |
$2,580 |
|||||
|
2025 |
337,000 |
161,219 |
17,734 |
1,000 |
16,734 |
122.90 |
$2,057 |
$2,499 |
|||||
|
2024 |
321,500 |
161,219 |
17,734 |
1,000 |
16,734 |
123.89 |
$2,073 |
$2,308 |
|||||
|
2023 |
319,500 |
161,219 |
17,733 |
1,000 |
16,733 |
122.82 |
$2,055 |
$2,261 |
|||||
|
2022 |
291,000 |
156,524 |
17,216 |
1,000 |
16,216 |
117.63 |
$1,908 |
$1,858 |
|||||
| Property Account Status/Adjustments/Exemptions | ||
|---|---|---|
| Account # | Exemption Description | Amount |
|
R062141200 |
Freeze Senior Valuation |
0 |
|
R062141200 |
3% Cap Homestead |
0 |
|
R062141200 |
Homestead |
1,000 |
| Property Deed Transaction History (Recorded in the County Clerk's Office) | ||||||||||
|---|---|---|---|---|---|---|---|---|---|---|
| Date | Type | Book | Page | Price | Grantor | Grantee | ||||
|
3/3/2015 |
|
Deeds |
$0 |
SCHRADER PAMELA SCHRADER MARIE |
SCHRADER PAMELA |
|||||
|
3/31/2012 |
|
Deeds |
$0 |
SCHRADER PAMELA |
SCHRADER PAMELA SCHRADER MARIE |
|||||
|
2/28/2012 |
|
Deeds |
$0 |
SCHRADER PAMELA SCHRADER MARIE E |
SCHRADER PAMELA |
|||||
|
8/3/2010 |
|
Deeds |
$0 |
SCHRADER PAMELA |
SCHRADER PAMELA SCHRADER MARIE E |
|||||
|
7/6/2010 |
|
Deeds |
$0 |
SCHRADER PAMELA SCHRADER MARIE E |
SCHRADER PAMELA |
|||||
| Last Mailed Notice of Value (N.O.V.) Information/History | ||||||||
|---|---|---|---|---|---|---|---|---|
| Year | Date | Market Value | Taxable Market Value | Gross Assessed | Exemption | Net Assessed | ||
|
2026 |
02/23/2026 |
343,000 |
161,219 |
17,734 |
1,000 |
16,734 |
||
|
2025 |
02/14/2025 |
337,000 |
161,219 |
17,734 |
1,000 |
16,734 |
||
|
2024 |
02/13/2024 |
321,500 |
161,219 |
17,734 |
1,000 |
16,734 |
||
|
2023 |
02/14/2023 |
319,500 |
161,219 |
17,733 |
1,000 |
16,733 |
||
|
2022 |
03/15/2022 |
291,000 |
156,524 |
17,216 |
1,000 |
16,216 |
||
| Property Building Permit History | |||||||||||
|---|---|---|---|---|---|---|---|---|---|---|---|
| Issued | Permit # | Provided by | Bldg # | Description | Est Construction Cost | Status | |||||
| No Building Permit records returned. | |||||||||||
| Click button on building number to access detailed information: | ||||||
|---|---|---|---|---|---|---|
| Bldg # | Vacant/Improved Land | Bldg Description | Year Built | SqFt | # Stories | |
|
1 |
Improved |
1½ Story Fin |
1921 |
1,840 |
1.5 Stories |
|