|
|
|
| Larry Stein Oklahoma County Assessor (405) 713-1200 - Public Access System |
|
|
|
|
|
|
| Real Property Display - Screen Produced 4/12/2026 9:52:26 PM | ||||
|---|---|---|---|---|
| Account: R063666400 | Type: Residential | Location: |
2316 N CROSS AVE |
|
| Building Name/Occupant: |
|
OKLAHOMA CITY |
||
| Owner Name 1: | LEHMAN DAVID C & CRYSTAL D |
Parcel PIN#: |
2717-06-366-6400 |
|
| Owner Name 2: | 1/4 section #: |
2717 |
||
| Owner Name 3: | Parent Acct: |
|
||
| Billing Address: | PO BOX 57244 | Tax District: |
|
|
| City, State, Zip | OKLAHOMA CITY, OK 73157 | School System: |
Oklahoma City #89 |
|
|
Country: (If noted) |
Land Size: |
0.1607 Acres |
||
|
Land Value: 30,450 |
|
|||
|
Sect 30-T12N-R3W Qtr NE |
DAUGHERTY SUB AURORA
Block
001
Lot
016
|
|||
| Full Legal Description: DAUGHERTY SUB AURORA 001 016 |
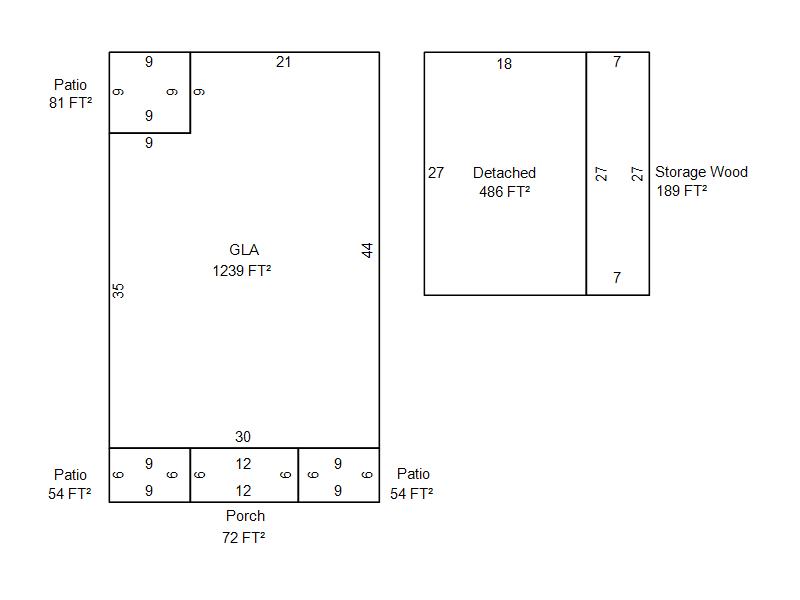
| Photo & Sketch (if available) | Comp Sales (ordered by relevancy) |
|
||||||||||||||||||
|
||||||||||||||||||||
| Value History (*The County Treasurer 405-713-1300 posts & collects actual tax amounts. Contact information HERE) | |||||||||||||
|---|---|---|---|---|---|---|---|---|---|---|---|---|---|
| Year | Market Value | Taxable Mkt Value | Gross Assessed | Exemption | Net Assessed | Millage | Est. Tax | Tax Savings | |||||
|
2026 |
183,000 |
106,690 |
11,735 |
0 |
11,735 |
122.90 |
$1,442 |
$1,032 |
|||||
|
2025 |
184,000 |
101,610 |
11,176 |
0 |
11,176 |
122.90 |
$1,374 |
$1,114 |
|||||
|
2024 |
175,500 |
96,772 |
10,644 |
0 |
10,644 |
123.89 |
$1,319 |
$1,073 |
|||||
|
2023 |
169,500 |
92,164 |
10,137 |
0 |
10,137 |
122.82 |
$1,245 |
$1,045 |
|||||
|
2022 |
132,000 |
87,776 |
9,653 |
0 |
9,653 |
117.63 |
$1,136 |
$572 |
|||||
| Property Account Status/Adjustments/Exemptions | ||
|---|---|---|
| Account # | Exemption Description | Amount |
|
R063666400 |
5% Capped Account |
0 |
| Property Deed Transaction History (Recorded in the County Clerk's Office) | ||||||||||
|---|---|---|---|---|---|---|---|---|---|---|
| Date | Type | Book | Page | Price | Grantor | Grantee | ||||
|
9/29/2003 |
|
Hmstd Off & |
$0 |
RUSSELL BARBARA J |
LEHMAN DAVID C & CRYSTAL D |
|||||
|
9/17/1996 |
|
Historical |
$0 |
RUSSELL HAROLD H JR & BARBARA |
RUSSELL BARBARA J |
|||||
|
9/30/1994 |
|
Historical |
$30,000 |
TAYLOR JOE A & MARGARUIETTE A |
RUSSELL HAROLD H & BARBARA J |
|||||
|
3/22/1994 |
|
Historical |
$19,000 |
WHITAKER GENEVA EVELYN |
TAYLOR JOE A & MARGARUIETTE A |
|||||
|
4/16/1993 |
|
Historical |
$0 |
WHITAKER A J H & GENEVA E |
WHITAKER GENEVA EVELYN |
|||||
| Last Mailed Notice of Value (N.O.V.) Information/History | ||||||||
|---|---|---|---|---|---|---|---|---|
| Year | Date | Market Value | Taxable Market Value | Gross Assessed | Exemption | Net Assessed | ||
|
2026 |
02/23/2026 |
183,000 |
106,690 |
11,735 |
0 |
11,735 |
||
|
2025 |
02/14/2025 |
184,000 |
101,610 |
11,176 |
0 |
11,176 |
||
|
2024 |
02/13/2024 |
175,500 |
96,772 |
10,644 |
0 |
10,644 |
||
|
2023 |
02/14/2023 |
169,500 |
92,164 |
10,137 |
0 |
10,137 |
||
|
2022 |
03/15/2022 |
132,000 |
87,776 |
9,653 |
0 |
9,653 |
||
| Property Building Permit History | |||||||||||
|---|---|---|---|---|---|---|---|---|---|---|---|
| Issued | Permit # | Provided by | Bldg # | Description | Est Construction Cost | Status | |||||
| No Building Permit records returned. | |||||||||||
| Click button on building number to access detailed information: | ||||||
|---|---|---|---|---|---|---|
| Bldg # | Vacant/Improved Land | Bldg Description | Year Built | SqFt | # Stories | |
|
1 |
Improved |
Ranch 1 Story |
1933 |
1,239 |
1 Stories |
|