|
|
|
| Larry Stein Oklahoma County Assessor (405) 713-1200 - Public Access System |
|
|
|
|
|
|
| Real Property Display - Screen Produced 4/12/2026 12:50:43 PM | ||||
|---|---|---|---|---|
| Account: R063741080 | Type: Residential | Location: |
2413 NW 21ST ST |
|
| Building Name/Occupant: |
|
OKLAHOMA CITY |
||
| Owner Name 1: | LOFTIS JEFFREY LYNN |
Parcel PIN#: |
2717-06-374-1080 |
|
| Owner Name 2: | 1/4 section #: |
2717 |
||
| Owner Name 3: | Parent Acct: |
|
||
| Billing Address: | 2413 NW 21ST ST | Tax District: |
|
|
| City, State, Zip | OKLAHOMA CITY, OK 73107 | School System: |
Oklahoma City #89 |
|
|
Country: (If noted) |
Land Size: |
0.1722 Acres |
||
|
Land Value: 32,625 |
|
|||
|
Sect 30-T12N-R3W Qtr NE |
AURORA ADDITION
Block
004
Lot
000
|
|||
| Full Legal Description: AURORA ADDITION 004 000 E50FT OF W300FT OF S150FT |
| Photo & Sketch (if available) | Comp Sales (ordered by relevancy) |
|
||||||||||||||||||
|
||||||||||||||||||||
| Value History (*The County Treasurer 405-713-1300 posts & collects actual tax amounts. Contact information HERE) | |||||||||||||
|---|---|---|---|---|---|---|---|---|---|---|---|---|---|
| Year | Market Value | Taxable Mkt Value | Gross Assessed | Exemption | Net Assessed | Millage | Est. Tax | Tax Savings | |||||
|
2026 |
161,500 |
123,460 |
13,579 |
0 |
13,579 |
122.90 |
$1,669 |
$514 |
|||||
|
2025 |
158,000 |
117,581 |
12,933 |
0 |
12,933 |
122.90 |
$1,590 |
$546 |
|||||
|
2024 |
154,000 |
111,982 |
12,317 |
0 |
12,317 |
123.89 |
$1,526 |
$573 |
|||||
|
2023 |
152,000 |
106,650 |
11,730 |
0 |
11,730 |
122.82 |
$1,441 |
$613 |
|||||
|
2022 |
119,000 |
101,572 |
11,172 |
0 |
11,172 |
117.63 |
$1,314 |
$226 |
|||||
| Property Account Status/Adjustments/Exemptions | ||
|---|---|---|
| Account # | Exemption Description | Amount |
|
R063741080 |
5% Capped Account |
0 |
| Property Deed Transaction History (Recorded in the County Clerk's Office) | |||||||
|---|---|---|---|---|---|---|---|
| Date | Type | Book | Page | Price | Grantor | Grantee | |
|
4/22/2014 |
|
Hmstd Off & |
$0 |
MARTIN ANNA COLLEEN LOFTIS JEFFREY LYNN |
LOFTIS JEFFREY LYNN |
||
|
8/21/1992 |
|
Historical |
$12,000 |
GENTRY CAROLE A |
MARTIN ANNA COLLEEN |
||
|
5/27/1987 |
|
Historical |
$0 |
MEEKER MARIE GRACE |
GENTRY CAROLE A |
||
|
2/20/1987 |
|
Historical |
$0 |
HOPPER HESTER D |
MEEKER MARIE GRACE |
||
|
11/11/1911 |
|
Historical |
$0 |
|
HOPPER HESTER D |
||
| Last Mailed Notice of Value (N.O.V.) Information/History | ||||||||
|---|---|---|---|---|---|---|---|---|
| Year | Date | Market Value | Taxable Market Value | Gross Assessed | Exemption | Net Assessed | ||
|
2026 |
02/23/2026 |
161,500 |
123,460 |
13,579 |
0 |
13,579 |
||
|
2025 |
02/14/2025 |
158,000 |
117,581 |
12,933 |
0 |
12,933 |
||
|
2024 |
02/13/2024 |
154,000 |
111,982 |
12,317 |
0 |
12,317 |
||
|
2023 |
02/14/2023 |
152,000 |
106,650 |
11,730 |
0 |
11,730 |
||
|
2022 |
03/15/2022 |
119,000 |
101,572 |
11,172 |
0 |
11,172 |
||
| Property Building Permit History | ||||||
|---|---|---|---|---|---|---|
| Issued | Permit # | Provided by | Bldg # | Description | Est Construction Cost | Status |
|
4/22/1999 |
10193928 |
OKLAHOMA CITY |
1 |
Demolish |
200 |
Inactive |
| Click button on building number to access detailed information: | ||||||
|---|---|---|---|---|---|---|
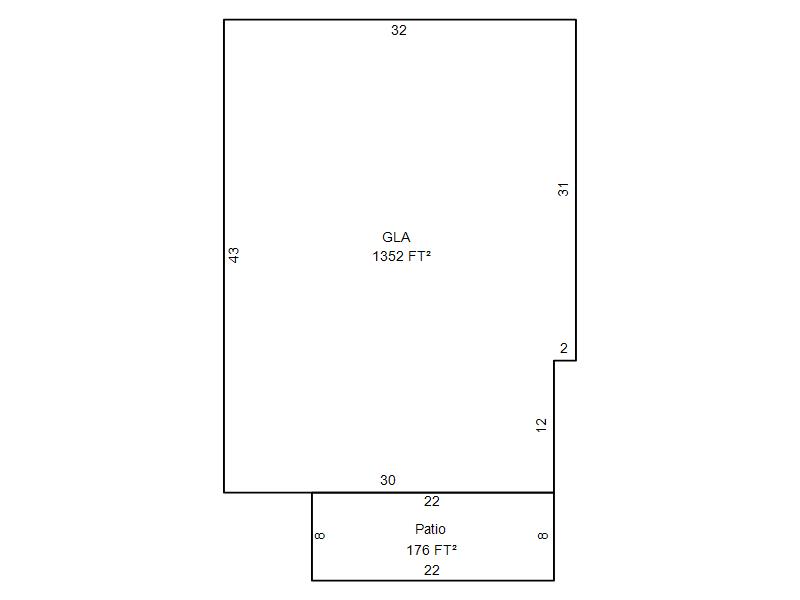
| Bldg # | Vacant/Improved Land | Bldg Description | Year Built | SqFt | # Stories | |
|
1 |
Improved |
Ranch 1 Story |
1930 |
1,352 |
1 Stories |
|