|
|
|
| Larry Stein Oklahoma County Assessor (405) 713-1200 - Public Access System |
|
|
|
|
|
|
| Real Property Display - Screen Produced 4/12/2026 12:50:42 PM | ||||
|---|---|---|---|---|
| Account: R063741470 | Type: Residential | Location: |
2347 NW 21ST ST |
|
| Building Name/Occupant: |
|
OKLAHOMA CITY |
||
| Owner Name 1: | WILLSON SARAH MIRANDA |
Parcel PIN#: |
2717-06-374-1470 |
|
| Owner Name 2: | NOWICKI LANA K | 1/4 section #: |
2717 |
|
| Owner Name 3: | Parent Acct: |
|
||
| Billing Address: | 2115 N BILLEN AVE | Tax District: |
|
|
| City, State, Zip | OKLAHOMA CITY, OK 73107-3225 | School System: |
Oklahoma City #89 |
|
|
Country: (If noted) |
Land Size: |
0.1791 Acres |
||
|
Land Value: 33,930 |
|
|||
|
Sect 30-T12N-R3W Qtr NE |
AURORA ADDITION
Block
005
Lot
000
|
|||
| Full Legal Description: AURORA ADDITION 005 000 W52FT OF E208FT OF S 1/2 |
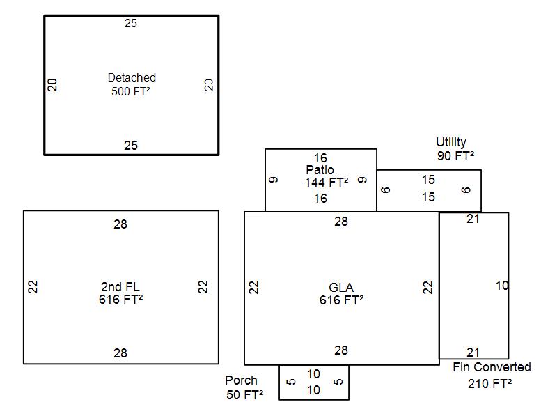
| Photo & Sketch (if available) | Comp Sales (ordered by relevancy) |
|
||||||||||||||||||
|
||||||||||||||||||||
| Value History (*The County Treasurer 405-713-1300 posts & collects actual tax amounts. Contact information HERE) | |||||||||||||
|---|---|---|---|---|---|---|---|---|---|---|---|---|---|
| Year | Market Value | Taxable Mkt Value | Gross Assessed | Exemption | Net Assessed | Millage | Est. Tax | Tax Savings | |||||
|
2026 |
182,500 |
136,661 |
15,031 |
0 |
15,031 |
122.90 |
$1,848 |
$620 |
|||||
|
2025 |
177,000 |
130,154 |
14,316 |
0 |
14,316 |
122.90 |
$1,760 |
$633 |
|||||
|
2024 |
171,500 |
123,957 |
13,635 |
0 |
13,635 |
123.89 |
$1,689 |
$648 |
|||||
|
2023 |
168,500 |
118,055 |
12,985 |
0 |
12,985 |
122.82 |
$1,595 |
$682 |
|||||
|
2022 |
129,500 |
112,434 |
12,365 |
0 |
12,365 |
117.63 |
$1,455 |
$221 |
|||||
| Property Account Status/Adjustments/Exemptions | ||
|---|---|---|
| Account # | Exemption Description | Amount |
|
R063741470 |
5% Capped Account |
0 |
| Property Deed Transaction History (Recorded in the County Clerk's Office) | ||||||||||
|---|---|---|---|---|---|---|---|---|---|---|
| Date | Type | Book | Page | Price | Grantor | Grantee | ||||
|
7/10/2024 |
|
Hmstd Off & |
$0 |
NOWICKI LANA K |
WILLSON SARAH MIRANDA |
|||||
|
4/19/1996 |
|
Historical |
$42,000 |
MONTOYA NESTOR S & GLADYS F |
NOWICKI LANA K |
|||||
|
6/27/1994 |
|
Historical |
$12,000 |
EVANS BILLYE JUNE |
MONTOYA NESTOR S & GLADYS F |
|||||
|
6/9/1994 |
|
Historical |
$0 |
SAENZ JOSE N |
EVANS BILLYE JUNE |
|||||
|
10/21/1992 |
|
Historical |
$43,500 |
RODRIGUEZ URBANO |
SAENZ JOSE N |
|||||
| Last Mailed Notice of Value (N.O.V.) Information/History | ||||||||
|---|---|---|---|---|---|---|---|---|
| Year | Date | Market Value | Taxable Market Value | Gross Assessed | Exemption | Net Assessed | ||
|
2026 |
02/23/2026 |
182,500 |
136,661 |
15,031 |
0 |
15,031 |
||
|
2025 |
02/14/2025 |
177,000 |
130,154 |
14,316 |
0 |
14,316 |
||
|
2024 |
02/13/2024 |
171,500 |
123,957 |
13,635 |
0 |
13,635 |
||
|
2023 |
02/14/2023 |
168,500 |
118,055 |
12,985 |
0 |
12,985 |
||
|
2022 |
03/15/2022 |
129,500 |
112,434 |
12,365 |
0 |
12,365 |
||
| Property Building Permit History | |||||||||||
|---|---|---|---|---|---|---|---|---|---|---|---|
| Issued | Permit # | Provided by | Bldg # | Description | Est Construction Cost | Status | |||||
| No Building Permit records returned. | |||||||||||
| Click button on building number to access detailed information: | ||||||
|---|---|---|---|---|---|---|
| Bldg # | Vacant/Improved Land | Bldg Description | Year Built | SqFt | # Stories | |
|
1 |
Improved |
2 Story |
1929 |
1,232 |
2 Stories |
|